City Pearl

Eladó családi ház
Királyszentistván, Rózsadomb utca

+ 17 kép 1/20
99 000 000 Ft99 M Ft 1 237 500 Ft/m2
4 szoba
80 m²
építés éve:2026

Részletes adatok

Telekméret: 417 m2
Fűtés: Egyéb
Parkolás: Kocsibeálló
Közmű: Víz, Villany, Csatorna
Komfort: Összkomfortos
Energetikai besorolás: A+

Az OTP Bank lakáshitel ajánlataFizetett hirdetés

+36 20 460
Csordás János
CSORDÁSINGATLAN

Érdekel az OTP Bank kedvezményes lakáshitel ajánlata? *

* A kérdésre „Igen” válasz bejelölése esetén, az „Üzenet küldése” gombra kattintva kijelentem, hogy az OTP Bank Nyrt. Adatkezelési tájékoztatójának tartalmát megismertem és tudomásul vettem.

Eladó családi ház leírása

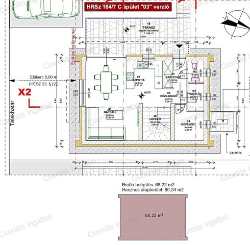
ÚJ ÉPÍTÉSŰ, ENERGIA TAKARÉKOS, tetőteres családi ház eladó Királyszentistvánon.
A MODERN, 80,34 m2-es hasznos alapterületű, bruttó 134,34 nm-es, tetőtér beépítéses családi ház külön utcáról megközelíthető, 417 m²-es telken valósul meg. Kulcsrakész átadása 2027. tavaszra várható. A kiváló tájolású telekről körbe tekintve POMPÁS PANORÁMÁBAN gyönyörködhetünk a bakonyi dombokra és a Balatonra egyaránt.
A házba belépve egy kényelmes méretű előszobába érkezünk. Az előtérből nyílik egy külön WC kézmosóval. Jobbra egy IGAZÁN TÁGAS NAPPALI KONYHA-ÉTKEZŐVEL egy légtérben, ahonnan közvetlenül léphetünk ki a TÁGAS, 22 M2-NYI, NYUGATI FEKVÉSŰ, BURKOLT TERASZRA. A konyhával szemben a tőtérbe vezető lépcső érhető el. A közlekedő végéből nyílik egy tároló helyiség, mellette a háztartási helyiség, melyben a gépészet kap helyet.
A tetőtérbe felérve jobbra az egyik, VALÓBAN TÁGAS SZOBA van, balra pedig a másik JÓL BÚTOROZHATÓ, SZINTÉN KÉNYELMESEN NAGY SZOBA található. A baloldali szobából közvetlenül léphetünk ki a hozzá tartozó ERKÉLYRE, ahonnan kitekintve még PAZARABB PANORÁMÁBAN gyönyörködhetünk. A két szoba között egy fürdőszoba WC-vel és egy GARDRÓBKÉNT is használható tároló helyiség van.
Az ENERGIATAKARÉKOS HÁZ korszerű műszaki tartalommal és szerkezettel épül:
- 30 cm-es Ytong falazat
- 15 cm-es homlokzati hőszigetelés
- 30 cm-es kőzetgyapot födémszigetelés
- 15 cm-es hőszigetelés az aljzatban
- Cserép fedésű tető
- Hőszivattyús padlófűtésű rendszer
- Háromrétegű műanyag nyílászárók, a redőnyökhöz elektromos előkészítéssel
- Hideg- és meleg burkolatok egyedi kiválasztási lehetőséggel
- (meleg burkolat 8.000 Ft/m², hidegburkolat 11.000 Ft/m²)
- Beltéri ajtók 70.000ft-/db áron szerepelnek az árban
- tartalmazza az 5kW teljesítményű, sziget rendszerű napelem rendszert
- 1 db 3,5kw hűtő-fűtő klíma
Igény esetén lehetőség van garázs vagy féltető megvalósítására is, illetve a belső térkialakítás személyre szabására külön megállapodás alapján.
HIBÁTLAN VÁLASZTÁS ez a RENDKÍVÜL ALACSONY REZSIVEL rendelkező, modern családi otthon.
HÍVJON, hogy Öné legyen ez a remek adottságú ingatlan!
A kivitelező két évtizedes építési tapasztalattal rendelkezik, így megbízható, rugalmas és magas minőségű kivitelezést biztosít.
A vásárláshoz CSOK PLUSZ, FALUSI CSOK, ILLETÉKMENTESSÉG, OTTHON START HITEL igényelhető.
Bankfüggetlen INGYENES hitelügyintézés, INGYENES CSOK ügyintézés. Ön csak kitalálja, mire keres megoldást és nyugodtan hátra dőlhet, a többit elintézzük.

Hirdetés feltöltve: 2026. 02. 21. Utoljára módosítva: 2026. 05. 12.

4 szobás családi házak ára Királyszentistvánon

Ebből az összehasonlításból megtudhatod, hogyan viszonyul a lakás ára a környékbeli családi házak átlagos árához. Ez nem azt jelenti, hogy ennyivel olcsóbb vagy drágább, mint amennyit a lakás ér, hanem hogy ennyivel tér el a környékbeli átlagtól.

Ennek a m² ára
Királyszentistván m² ár
1238 e Ft
1058 e Ft -17%
Ennek az ára
Királyszentistván átlagár
99 M Ft m Ft
90.3 m Ft -10%

Az ingatlan elhelyezkedése

Cím: Királyszentistván, Rózsadomb utca

Eladó családi házak a környékről

Királyszentistván
Eladó családi ház

Királyszentistván

92 M Ft
3 szoba
88 m²
Monoszló
Eladó családi ház

Monoszló

1762.677 M Ft
9 szoba
2250 m²
Királyszentistván
Eladó családi ház

Királyszentistván

83.6 M Ft
1 + 3 szoba
80 m²
Veszprém
Eladó családi ház

Veszprém

149 M Ft
6 + 1 szoba
243 m²
Monoszló
Eladó családi ház

Monoszló

1762.677 M Ft
9 szoba
2250 m²
Dörgicse
Eladó családi ház

Dörgicse

39.9 M Ft
2 + 1 szoba
66 m²
Királyszentistván
Eladó családi ház

Királyszentistván

83.6 M Ft
4 szoba
80 m²
Monoszló
Eladó családi ház

Monoszló

1762.677 M Ft
9 szoba
2250 m²
Pápa
Eladó családi ház

Pápa

54 M Ft
2 + 1 szoba
90 m²
Királyszentistván, Rózsadomb utca
Eladó családi ház

Királyszentistván

83.6 M Ft
3 szoba
80 m²
Lesencetomaj
Eladó családi ház

Lesencetomaj

90 M Ft
5 + 1 szoba
180 m²
Várpalota
Eladó családi ház

Várpalota

156.7 M Ft
4 szoba
130 m²
Csabrendek
Eladó családi ház

Csabrendek

98 M Ft
9 szoba
600 m²
Királyszentistván
Eladó családi ház

Királyszentistván

83.6 M Ft
4 szoba
80 m²
Badacsonytördemic
Eladó családi ház

Badacsonytördemic

79.9 M Ft
5 szoba
165 m²
Királyszentistván
Eladó családi ház

Királyszentistván

48 M Ft
3 szoba
80 m²
Királyszentistván
Eladó családi ház

Királyszentistván

83.6 M Ft
4 szoba
80 m²
Királyszentistván
Eladó családi ház

Királyszentistván

83.6 M Ft
4 szoba
80 m²
Királyszentistván
Eladó családi ház

Királyszentistván

83.6 M Ft
2 + 2 szoba
80 m²
Királyszentistván
Eladó családi ház

Királyszentistván

83.6 M Ft
3 szoba
80 m²
Veszprém
Eladó családi ház

Veszprém

139.8 M Ft
4 szoba
157 m²
Balatonalmádi
Eladó családi ház

Balatonalmádi

349 M Ft
12 szoba
485 m²
Badacsonytördemic
Eladó családi ház

Badacsonytördemic

172.02 M Ft
4 szoba
160 m²
Királyszentistván
Eladó családi ház

Királyszentistván

99 M Ft
4 szoba
81 m²

Falusi CSOK ingatlanok

Balinka, Petőfi S. utca 27
Eladó családi ház

Balinka

12.65 M Ft
1 + 2 szoba
79 m²
Bag
Eladó családi ház

Bag

79.9 M Ft
5 szoba
124 m²
Katymár
Eladó családi ház

Katymár

34 M Ft
5 szoba
200 m²
Dunaegyháza
Eladó családi ház

Dunaegyháza

29.49 M Ft
3 szoba
70 m²
Csárdaszállás
Eladó családi ház

Csárdaszállás

11.99 M Ft
3 + 2 szoba
100 m²
Parád
Eladó családi ház

Parád

140 M Ft
4 szoba
200 m²
Szigetújfalu
Eladó családi ház

Szigetújfalu

66 M Ft
3 szoba
118 m²
Tóalmás
Eladó családi ház

Tóalmás

38.9 M Ft
3 szoba
62 m²