Kedves Felhasználónk! Rendszerfrissítés miatt az oldalunk 2026. február 9-én 12 órától várhatóan 20 óráig nem lesz elérhető. Köszönjük megértésed!
City Pearl

Eladó családi ház
Kerecsend

+ 17 kép 1/20
26 000 000 Ft26 M Ft 285 714 Ft/m2
4 szoba
91 m2
építés éve:1983

Részletes adatok

Állapot: Felújítandó
Telekméret: 818 m2
Fűtés: Gázkazán
Parkolás: Garázs
Energetikai besorolás: Nem adta meg a hirdető

Az OTP Bank lakáshitel ajánlataFizetett hirdetés

+36 70 344
Angyal Tamás József
referens

Érdekel az OTP Bank kedvezményes lakáshitel ajánlata? *

* A kérdésre „Igen” válasz bejelölése esetén, az „Üzenet küldése” gombra kattintva kijelentem, hogy az OTP Bank Nyrt. Adatkezelési tájékoztatójának tartalmát megismertem és tudomásul vettem.

Eladó családi ház leírása

Eladó családi ház Kerecsend!

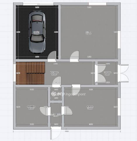
Kerecsend legszebb utcájában eladó ez a különleges hangulatú, kétszintes családi ház, amely 1983-ban épült masszív B30-as téglából. Az ingatlan igazi időtálló szerkezet, jó állapotú cseréptetővel, tágas terekkel és rengeteg lehetőséggel.

A ház összesen 182 m2 lakóteret kínál, két szinten elosztva. A földszinten garázs, egy külön bejáratú szoba, előszoba, konyha, zuhanyzó, a lépcső alatt wc, közlekedő és kazánház található, ideális akár külön lakrészként is. Az emeletet tágas, napfényes szobák uralják, a loggia csendes pihenőhelyet kínál, a konyha mellett kamra (innen lehet feljutni a padlásra is), a közlekedőből pedig egy jól használható fürdőszoba nyílik.

A hátsó kijárat egy hangulatos teraszra vezet, ahonnan a melléképületek is megközelíthetők. Az egyik alatt egy 12 m2-es, száraz pince kapott helyet, ami kiváló tárolási lehetőséget biztosít. A 818 m2-es telek mérete pont ideális. Gyümölcsfákkal tarkított és elég ahhoz, hogy kényelmesen élhető kertet alakítson ki, de nem igényel túlzott gondozást.

Az ingatlan minden közművel rendelkezik, beleértve a 3 fázist is (3x16 amper). A fűtés jelenleg központi rendszerű, fa- vagy gázkazánnal egyaránt működtethető, mindkettő használatra kész.

A ház jelenleg nem lakott, de jó alapot kínál egy új élethez: a szerkezete kiváló, így felújítás után igazi otthonná válhat. Egy olyan ház ez, amelyben megvan a múlt stabilitása és a jövő ígérete is, csak egy új gazdára vár, aki meglátja benne a lehetőséget.

Várom hívását, akár hétvégén is. Ügyfeleinknek igény esetén kedvező hitelfeltételekkel hitelt,
megbízható ügyvédi közreműködést, szerződéskötéshez irodai hátteret biztosítunk. Referencia
szám: M317353

Hirdetés feltöltve: 2025. 11. 15. Utoljára módosítva: 2026. 01. 13.

Az ingatlan elhelyezkedése

Cím: Kerecsend

Eladó ingatlanok a környékről

Eladó családi ház
Eladó családi ház

Eger

149 M Ft
7 szoba
260 m2
Eladó családi ház
Eladó családi ház

Mátraszentimre

250 M Ft
8 szoba
300 m2
Eladó családi ház
Eladó családi ház

Kerecsend

32.9 M Ft
3 szoba
117 m2
Eladó családi ház
Eladó családi ház

Kerecsend, 3396 Kerecsend, Petőfi Sándor utca 47

10.1 M Ft
1 + 1 szoba
60 m2
Eladó családi ház
Eladó családi ház

Gyöngyös

28.5 M Ft
1 + 1 szoba
62 m2
Eladó családi ház
Eladó családi ház

Ostoros

94.5 M Ft
3 szoba
96 m2
Eladó családi ház
Eladó családi ház

Kisnána

12 M Ft
3 szoba
Eladó családi ház
Eladó családi ház

Karácsond

29.5 M Ft
3 szoba
112 m2
Eladó családi ház
Eladó családi ház

Gyöngyös

46 M Ft
4 szoba
107 m2
Eladó mezogazdasagi ingatlan
Eladó mezogazdasagi ingatlan

Gyöngyös

11.5 M Ft
7200 m²
Eladó családi ház
Eladó családi ház

Terpes

14.9 M Ft
2 szoba
60 m2
Eladó családi ház
Eladó családi ház

Bükkszék

44.9 M Ft
3 + 2 szoba
114 m2
Eladó családi ház
Eladó családi ház

Parád

33.9 M Ft
3 szoba
118 m2
Eladó családi ház
Eladó családi ház

Kerecsend

14.5 M Ft
2 + 1 szoba
75 m2
Eladó családi ház
Eladó családi ház

Felsőtárkány

48 M Ft
3 szoba
80 m2
Eladó családi ház
Eladó családi ház

Eger

165 M Ft
4 + 1 szoba
160 m2
Eladó családi ház
Eladó családi ház

Pély

8.9 M Ft
2 szoba
54 m2
Eladó családi ház
Eladó családi ház

Bükkszék

44.9 M Ft
3 + 2 szoba
114 m2
Eladó téglalakás
Eladó téglalakás

Hatvan

41.9 M Ft
2 szoba
59 m2
Eladó családi ház
Eladó családi ház

Bodony

19.5 M Ft
3 szoba
95 m2
Eladó családi ház
Eladó családi ház

Ostoros

94.5 M Ft
3 szoba
96 m2
Eladó családi ház
Eladó családi ház

Kerecsend

32.9 M Ft
3 szoba
117 m2
Eladó családi ház
Eladó családi ház

Ostoros

94.5 M Ft
3 szoba
96 m2
Eladó családi ház
Eladó családi ház

Andornaktálya

42 M Ft
4 szoba
116 m2

Falusi CSOK ingatlanok

Eladó családi ház
Eladó családi ház

Alattyán

8.5 M Ft
1 + 1 szoba
70 m2
Eladó családi ház
Eladó családi ház

Pétfürdő

74.9 M Ft
3 szoba
89 m2
Eladó családi ház
Eladó családi ház

Kemeneshőgyész

8 M Ft
2 szoba
60 m2
Eladó téglalakás
Eladó téglalakás

Felsőszentiván, Jókai Mór u 9 fszt 2

17.56 M Ft
1 + 1 szoba
90 m2
Eladó családi ház
Eladó családi ház

Recsk

59 M Ft
2 szoba
70 m2
Eladó családi ház
Eladó családi ház

Győrság

477 M Ft
15 szoba
1115 m2
Eladó családi ház
Eladó családi ház

Hercegszántó

29.9 M Ft
4 szoba
130 m2
Eladó családi ház
Eladó családi ház

Recsk

24.5 M Ft
2 szoba
100 m2