Avico Greentop

Eladó családi ház
Kecskemét

+ 12 kép 1/15
199 000 000 Ft199 M Ft 995 000 Ft/m2
7 szoba
200 m²
építés éve:2008

Részletes adatok

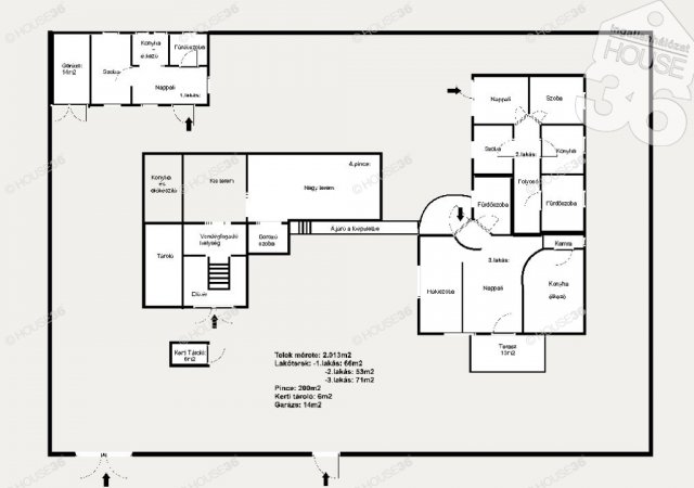
Telekméret: 2013 m2
Fűtés: Gázkazán
Energetikai besorolás: Nem adta meg a hirdető

Az OTP Bank lakáshitel ajánlataFizetett hirdetés

+36 30 724
Fricskáné Oltai Katalin
HOUSE36 Ingatlanbázis Kft.

Érdekel az OTP Bank kedvezményes lakáshitel ajánlata? *

* A kérdésre „Igen” válasz bejelölése esetén, az „Üzenet küldése” gombra kattintva kijelentem, hogy az OTP Bank Nyrt. Adatkezelési tájékoztatójának tartalmát megismertem és tudomásul vettem.

Eladó családi ház leírása

Eladó egyedülálló családi kis birtok Ballószögön – 3 külön lakrész + 200 m² pince különleges hangulattal!
Kecskeméttől egy karnyújtásnyira, Ballószög csendes, kis forgalmú utcájában megvételrekínálunk egy igazán különleges kis birodalmat!Három külön bejáratú lakrész – tökéletes többgenerációs családnak, kiadásra vagy akár rendezvényhelyszínként is.
1. lakás – 66 m²: 2 szoba, konyha étkezővel, fürdőszoba
2. lakás – 53 m²: 3 szoba, konyha, fürdőszoba
3. lakás – 71 m²: 2 szoba, konyha étkezővel, fürdőszoba, kamra
Hatalmas, 200 m²-es pince – kiváló borospince, rendezvényterem vagy akár exkluzív klubhelyiség kialakítására is alkalmas!
A pincelejáróban egyedi, kézzel faragott népi faszobrok teszik különlegessé az élményt – valódi mestermunka!
Közvetlen feljárat a főépületbe, így a pince és a lakótér tökéletesen összekapcsolható.
Tágas udvar, nyugodt környezet, ahol a természet és a nyugalom az úr.
Ez az ingatlan nem csak otthon, hanem élmény is egyben – legyen szó többgenerációs együttélésről, vendéglátásról, vagy akár különleges események helyszínéről!
Figyelem az adatlap megbízónktól kapott adatok alapján készült, pontosságáért felelősséget nem tudunk vállalni!
Az iroda legfrissebb, aktuális kínálatát a HOUSE36 saját weboldalán találja!

Hirdetés feltöltve: 2026. 04. 03. Utoljára módosítva: 2026. 04. 03.

Az ingatlan elhelyezkedése

Cím: Kecskemét

Eladó családi házak a környékről

Kisszállás
Eladó családi ház

Kisszállás

129 M Ft
1 szoba
2800 m²
Kecskemét
Eladó családi ház

Kecskemét

175.2 M Ft
5 szoba
218 m²
Kecskemét
Eladó családi ház

Kecskemét

219 M Ft
5 szoba
190 m²
Dunavecse
Eladó családi ház

Dunavecse

88.49 M Ft
8 szoba
378 m²
Kecskemét
Eladó családi ház

Kecskemét

219 M Ft
5 szoba
190 m²
Kecskemét
Eladó családi ház

Kecskemét

9.9 M Ft
2 szoba
30 m²
Kecskemét, Alsószéktó, Alsószéktó 138
Eladó családi ház

Kecskemét

65 M Ft
5 szoba
98 m²
Kecskemét, Alsószéktó, Alsószéktó 138
Eladó családi ház

Kecskemét

55 M Ft
5 szoba
91 m²
Kecskemét
Eladó családi ház

Kecskemét

85 M Ft
8 szoba
200 m²
Kecskemét, Alsószéktó, Alsószéktó 138
Eladó családi ház

Kecskemét

55 M Ft
5 szoba
91 m²
Kiskunhalas
Eladó családi ház

Kiskunhalas

47 M Ft
1.24 ha
183 m²
Kecskemét
Eladó családi ház

Kecskemét

93 M Ft
3 szoba
140 m²
Kiskunmajsa, 1
Eladó családi ház

Kiskunmajsa

60.9 M Ft
6 szoba
220 m²
Bugac
Eladó családi ház

Bugac

9.8 M Ft
4 szoba
67 m²
Kecskemét
Eladó családi ház

Kecskemét

119.8 M Ft
5 szoba
138 m²
Bácsalmás
Eladó családi ház

Bácsalmás

25.5 M Ft
2 + 1 szoba
90 m²
Kecskemét
Eladó családi ház

Kecskemét

39.9 M Ft
2 szoba
110 m²
Kiskunmajsa
Eladó családi ház

Kiskunmajsa

40 M Ft
5 szoba
95 m²
Fajsz
Eladó családi ház

Fajsz

12 M Ft
4 szoba
129 m²
Fülöpháza
Eladó családi ház

Fülöpháza

68 M Ft
6 szoba
250 m²
Kecskemét
Eladó családi ház

Kecskemét

39.9 M Ft
2 szoba
110 m²
Kecskemét
Eladó családi ház

Kecskemét

180 M Ft
8 szoba
689 m²
Kecskemét
Eladó családi ház

Kecskemét

135 M Ft
5 szoba
220 m²
Kecskemét
Eladó családi ház

Kecskemét

24.9 M Ft
3 szoba
62 m²

Falusi CSOK ingatlanok

Vásárosdombó
Eladó családi ház

Vásárosdombó

14.99 M Ft
2 szoba
69 m²
Balatonakali
Eladó ikerház

Balatonakali

129 M Ft
4 szoba
145 m²
Balatonakali
Eladó ikerház

Balatonakali

560 M Ft
4 szoba
140 m²
Ceglédbercel
Eladó családi ház

Ceglédbercel

79.9 M Ft
5 szoba
140 m²
Kenyeri
Eladó családi ház

Kenyeri

21.8 M Ft
2 szoba
75 m²
Kocsér
Eladó családi ház

Kocsér

27.9 M Ft
4 szoba
108 m²
Bag
Eladó családi ház

Bag

110 M Ft
5 szoba
320 m²
Farmos
Eladó családi ház

Farmos

59.9 M Ft
4 szoba
90 m²