Astora Márvány8

Eladó családi ház
Kecskemét

+ 3 kép 1/6
85 000 000 Ft85 M Ft 885 417 Ft/m2
4 szoba
96 m²
építés éve:2026

Részletes adatok

Telekméret: 575 m2
Fűtés: Egyéb
Energetikai besorolás: Nem adta meg a hirdető

Az OTP Bank lakáshitel ajánlataFizetett hirdetés

+36 70 291
Lajos Zoltán
HOUSE36 Ingatlanbázis Kft.

Érdekel az OTP Bank kedvezményes lakáshitel ajánlata? *

* A kérdésre „Igen” válasz bejelölése esetén, az „Üzenet küldése” gombra kattintva kijelentem, hogy az OTP Bank Nyrt. Adatkezelési tájékoztatójának tartalmát megismertem és tudomásul vettem.

Eladó családi ház leírása

Kecskeméten az egész család számára tökéletes kényelmet biztosító, remek elrendezésű, új építésű családi ház csak önre vár.

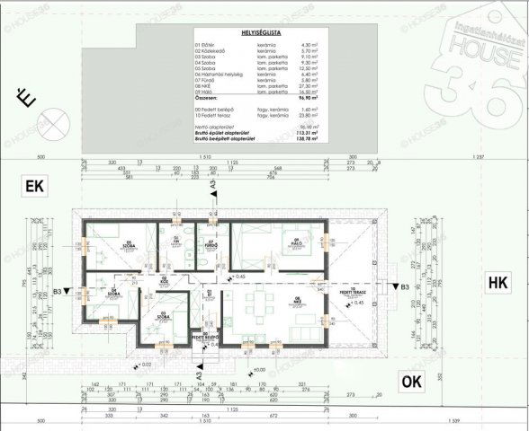
A 4 szoba minden családtagnak biztosít egy kis elvonulási lehetőséget.
A kényelmes, tágas nappaliból a fedett teraszra léphet ki.

- 96,9 m2 nettó lakótér
- 575 m2 telek

+ 1,6 m2 fedett belépő
+ 24,4 m2 fedett terasz

- hőszivattyú
- padlófűtés
- 4 szoba
- gardrób
- nagy nappali konyhával, étkezővel
- háztartási helyiség
- plusz külön wc
- energia takarékos
- 2026 év végi átadás

Választható burkolatok, színek, nyílászárók, szaniterek.
Hívjon.Nézzük meg a minta házakat akár hétvégén is.

A HOUSE36 kínálatában lévő összes ingatlannal kapcsolatban tudok felvilágosítást nyújtani.
Szolgáltatásaink kereső ügyfeleink részére ingyenesek.
Az iroda legfrissebb, aktuális kínálatát a HOUSE36 saját weboldalán találja!

Referencia szám: 3620450

Hirdetés feltöltve: 2026. 02. 23. Utoljára módosítva: 2026. 02. 23.

4 szobás családi házak ára Kecskeméten

Ebből az összehasonlításból megtudhatod, hogyan viszonyul a lakás ára a környékbeli családi házak átlagos árához. Ez nem azt jelenti, hogy ennyivel olcsóbb vagy drágább, mint amennyit a lakás ér, hanem hogy ennyivel tér el a környékbeli átlagtól.

Ennek a m² ára
Kecskemét m² ár
885 e Ft
853 e Ft -4%
Ennek az ára
Kecskemét átlagár
85 M Ft m Ft
115 m Ft 26%

Az ingatlan elhelyezkedése

Cím: Kecskemét

Eladó családi házak a környékről

Kecskemét
Eladó családi ház

Kecskemét

24.9 M Ft
3 szoba
62 m²
Kecskemét
Eladó családi ház

Kecskemét

9.9 M Ft
2 szoba
30 m²
Kecskemét, Alsószéktó, Alsószéktó 138
Eladó családi ház

Kecskemét

65 M Ft
5 szoba
98 m²
Dunapataj
Eladó családi ház

Dunapataj

15 M Ft
5 szoba
150 m²
Dunavecse
Eladó családi ház

Dunavecse

88.49 M Ft
8 szoba
378 m²
Kecskemét, Mária-város, Tatár sor
Eladó családi ház

Kecskemét

50.3 M Ft
1 szoba
94 m²
Kecskemét
Eladó családi ház

Kecskemét

135 M Ft
5 szoba
220 m²
Kiskunmajsa, Kiskunmajsa - Birtok
Eladó családi ház

Kiskunmajsa

91.8 M Ft
5 szoba
170 m²
Solt
Eladó családi ház

Solt

325 M Ft
4 szoba
983 m²
Kecskemét
Eladó családi ház

Kecskemét

219 M Ft
5 szoba
190 m²
Kiskunhalas
Eladó családi ház

Kiskunhalas

47 M Ft
1.24 ha
183 m²
Kecskemét, Alsószéktó, Alsószéktó 138
Eladó családi ház

Kecskemét

63 M Ft
5 szoba
91 m²
Kecskemét
Eladó családi ház

Kecskemét

6.9 M Ft
1 szoba
30 m²
Kiskunfélegyháza
Eladó családi ház

Kiskunfélegyháza

14.9 M Ft
3 szoba
70 m²
Kecskemét
Eladó családi ház

Kecskemét

39.9 M Ft
2 szoba
110 m²
Kecskemét
Eladó családi ház

Kecskemét

119.8 M Ft
5 szoba
138 m²
Kecskemét
Eladó családi ház

Kecskemét

45 M Ft
6 szoba
110 m²
Kecskemét, Alsószéktó, Alsószéktó 138
Eladó családi ház

Kecskemét

63 M Ft
5 szoba
91 m²
Kecskemét
Eladó családi ház

Kecskemét

180 M Ft
8 szoba
689 m²
Kecskemét, Alsószéktó, Alsószéktó 138
Eladó családi ház

Kecskemét

58 M Ft
5 szoba
92 m²
Kecskemét, Alsószéktó, Alsószéktó 138
Eladó családi ház

Kecskemét

55 M Ft
5 szoba
91 m²
Kunadacs
Eladó családi ház

Kunadacs

210 M Ft
14 szoba
920 m²
Kecskemét
Eladó családi ház

Kecskemét

6.9 M Ft
1 szoba
30 m²
Kecskemét
Eladó családi ház

Kecskemét

85 M Ft
8 szoba
200 m²

Falusi CSOK ingatlanok

Szigetcsép
Eladó családi ház

Szigetcsép

110 M Ft
3 szoba
137 m²
Tápiógyörgye
Eladó családi ház

Tápiógyörgye

16 M Ft
2 szoba
85 m²
Jakabszállás
Eladó családi ház

Jakabszállás

69.99 M Ft
1 + 4 szoba
91 m²
Seregélyes
Eladó családi ház

Seregélyes

149.9 M Ft
5 szoba
307 m²
Bugac
Eladó családi ház

Bugac

155 M Ft
2.15 ha
187 m²
Kaposgyarmat
Eladó családi ház

Kaposgyarmat

695 M Ft
6 szoba
610 m²
Csővár
Eladó családi ház

Csővár

62 M Ft
4 szoba
137 m²
Verseg
Eladó családi ház

Verseg

38 M Ft
3 szoba
83 m²