River Life

Eladó családi ház
Kecskemét

82 990 000 Ft82.99 M Ft 1 024 568 Ft/m2
4 szoba
81 m2
építés éve:2025

Részletes adatok

Telekméret: 506 m2
Fűtés: Gázkazán
Energetikai besorolás: Nem adta meg a hirdető

Az OTP Bank lakáshitel ajánlataFizetett hirdetés

3676815020
Uzsorás Éva
Duna House Next Ingatlan

Érdekel az OTP Bank kedvezményes lakáshitel ajánlata? *

* A kérdésre „Igen” válasz bejelölése esetén, az „Üzenet küldése” gombra kattintva kijelentem, hogy az OTP Bank Nyrt. Adatkezelési tájékoztatójának tartalmát megismertem és tudomásul vettem.

Eladó családi ház leírása

***Lakás helyett vegyen új építésű családi házat***

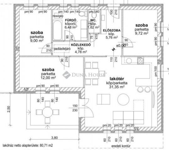
Kecskemét - Katonatelepen már megépült 81 m2-es , nappali+3 szobás családi ház bekerített, összközműves telken eladó!

Az ár tartalmazza a telek árát is!

Jellemzői:
- telek 500 m2 ( összközműves)
- lakótér 81 m2
- 10 m2 térkövezett terasz
- gáz-cirkó fűtés, Bosch 2300 kazánnal,
- padlófűtés
- 3 BOSCH hűtő-fűtő klíma
- Porotherm főfalak
- 10 cm-es tégla válaszfalak (belső)
- szeglemezes tető, 30 cm vtg.-ban befújt cellulóz szigetelés
- fekete beton cserép tetőfedés
- műanyag, Gelan tipusú bukó-nyíló nyílászárók (3 rétegű, 6 légkamrás),
- biztonsági bejárati ajtó
- redőny, szúnyogháló
- 15 cm EPS homlokzati hőszigetelés
- elektromos kapu

A ház cégtől eladó alkalmas CSOK+-ra, 3%-os hitelre is!!!

Azonnal költözhető! Hívjon ne maradjon le erről a remek lehetőségről!

82990000 Ft
LAKÁSELADÁS? HÍVJON!
Igény esetén hitel/banki finanszírozásban is segítséget nyújtunk! Bankfüggetlen hitelszakértőnk a legjobb piaci csomagot választja ki Önnek,
Zöldhitel, CSOK, babaváró hitel, áfa és illeték visszaigénylési lehetőségekről teljeskörű tájékoztatás.
+36-(20) 491-2889
uzsoras.eva@dh.hu

Referencia szám: HZ028178-ZE

Hirdetés feltöltve: 2026. 01. 15. Utoljára módosítva: 2026. 01. 15.

4 szobás családi házak ára Kecskeméten

Ebből az összehasonlításból megtudhatod, hogyan viszonyul a lakás ára a környékbeli családi házak átlagos árához. Ez nem azt jelenti, hogy ennyivel olcsóbb vagy drágább, mint amennyit a lakás ér, hanem hogy ennyivel tér el a környékbeli átlagtól.

Ennek a m² ára
Kecskemét m² ár
1025 e Ft
823 e Ft -24%
Ennek az ára
Kecskemét átlagár
82.99 M Ft m Ft
112 m Ft 26%

Az ingatlan elhelyezkedése

Cím: Kecskemét

Eladó családi házak a környékről

Eladó családi ház
Eladó családi ház

Dunavecse

88.49 M Ft
8 szoba
378 m2
Eladó családi ház
Eladó családi ház

Kecskemét, Alsószéktó, Alsószéktó 138

58 M Ft
5 szoba
92 m2
Eladó családi ház
Eladó családi ház

Kecskemét

39.9 M Ft
2 szoba
110 m2
Eladó családi ház
Eladó családi ház

Kecskemét

26 M Ft
3 szoba
110 m2
Eladó családi ház
Eladó családi ház

Kecskemét

24.9 M Ft
3 szoba
62 m2
Eladó családi ház
Eladó családi ház

Kecskemét, Alsószéktó, Alsószéktó 138

63 M Ft
5 szoba
91 m2
Eladó családi ház
Eladó családi ház

Kecskemét

224.9 M Ft
5 szoba
330 m2
Eladó családi ház
Eladó családi ház

Kecskemét

120 M Ft
6 szoba
215 m2
Eladó családi ház
Eladó családi ház

Bácsalmás

46.5 M Ft
5 szoba
232 m2
Eladó családi ház
Eladó családi ház

Kecskemét, Alsószéktó, Alsószéktó 138

58 M Ft
5 szoba
92 m2
Eladó családi ház
Eladó családi ház

Kiskunhalas

47 M Ft
12428 m²
183 m2
Eladó családi ház
Eladó családi ház

Kecskemét

24.9 M Ft
3 szoba
62 m2
Eladó családi ház
Eladó családi ház

Kunadacs

210 M Ft
14 szoba
920 m2
Eladó családi ház
Eladó családi ház

Kecskemét

9.9 M Ft
2 szoba
30 m2
Eladó családi ház
Eladó családi ház

Kecskemét, Alsószéktó, Alsószéktó 138

55 M Ft
5 szoba
91 m2
Eladó családi ház
Eladó családi ház

Kecskemét

135 M Ft
5 szoba
220 m2
Eladó családi ház
Eladó családi ház

Kecskemét, Alsószéktó, Alsószéktó 138

65 M Ft
5 szoba
98 m2
Eladó családi ház
Eladó családi ház

Kecskemét

93 M Ft
3 szoba
140 m2
Eladó családi ház
Eladó családi ház

Kecskemét

199 M Ft
5 szoba
350 m2
Eladó családi ház
Eladó családi ház

Kecskemét

215 M Ft
3 szoba
350 m2
Eladó családi ház
Eladó családi ház

Kecskemét

9.9 M Ft
2 szoba
30 m2
Eladó családi ház
Eladó családi ház

Kecskemét

120 M Ft
6 szoba
215 m2
Eladó családi ház
Eladó családi ház

Bácsalmás

25.5 M Ft
2 + 1 szoba
90 m2
Eladó családi ház
Eladó családi ház

Kecskemét

300 M Ft
19 szoba
1100 m2

Falusi CSOK ingatlanok

Eladó családi ház
Eladó családi ház

Vaskút

76 M Ft
3 szoba
120 m2
Eladó családi ház
Eladó családi ház

Csengőd

42 M Ft
2 szoba
81 m2
Eladó családi ház
Eladó családi ház

Látrány

48 M Ft
5 szoba
120 m2
Eladó családi ház
Eladó családi ház

Balatonfenyves

430 M Ft
4 szoba
274 m2
Eladó családi ház
Eladó családi ház

Parád

25 M Ft
2 szoba
80 m2
Eladó családi ház
Eladó családi ház

Mátraderecske

14 M Ft
1 + 1 szoba
47 m2
Eladó családi ház
Eladó családi ház

Recsk

23 M Ft
3 szoba
98 m2
Eladó családi ház
Eladó családi ház

Sellye

48.2 M Ft
4 szoba
99 m2