Stay Family Park

Eladó családi ház
Kecskemét

+ 3 kép 1/6
63 250 000 Ft63.25 M Ft 550 000 Ft/m2
4 szoba
115 m2
építés éve:2026

Részletes adatok

Fűtés: Elektromos
Energetikai besorolás: Nem adta meg a hirdető

Az OTP Bank lakáshitel ajánlataFizetett hirdetés

3676998501
Rigó Andor
Duna House - Kecskemét, Arany János utca

Érdekel az OTP Bank kedvezményes lakáshitel ajánlata? *

* A kérdésre „Igen” válasz bejelölése esetén, az „Üzenet küldése” gombra kattintva kijelentem, hogy az OTP Bank Nyrt. Adatkezelési tájékoztatójának tartalmát megismertem és tudomásul vettem.

Eladó családi ház leírása

Amennyiben kivitelezésben gondolkozik megtalálta a legideálisabb megoldást.

Megbízható kivitelezővel álomotthon, gyorsan és biztonságosan ENERGIA TAKARÉKOS könnyűszerkezetes technológiával!
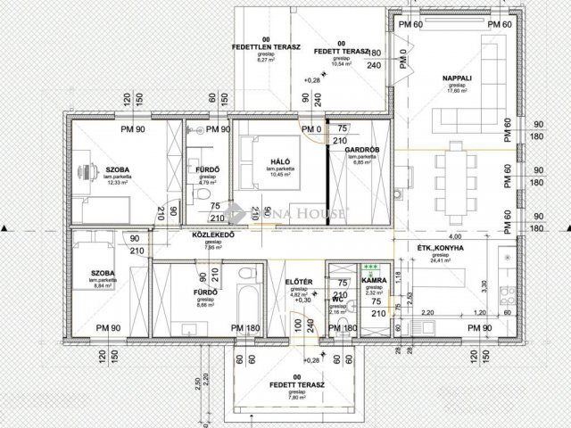
Ez a 3 szobás + nappalis családi ház igazi főnyeremény azoknak a szülőknek, akik nem szeretnének kompromisszumot kötni. A tágas szülői rezidencia saját gardróbbal és fürdőszobával rendelkezik, a hálóból pedig közvetlen kijárat nyílik a teraszra tökéletes hely a reggeli kávéhoz vagy esti pihenéshez. Emellett több mosdó és egy tágas, világos központi tér is gondoskodik arról, hogy a család minden tagja kényelmesen érezze magát.
A hirdetésban szereplő kivitelezési projekt egy 115nm-es kulcsrakész családi házra vonatkoznak. A projektben meghirdetett árak Bruttó árak, a telek árát nem tartalmazzák.

Válaszd tapasztalt, 25 éve a szakmában működő építőipari partnerünket, aki eddig több mint 400 elkészült projekttel és 15 000 m² átadott élettérrel bizonyította szakértelmét és megbízhatóságát. Referenciáink magukért beszélnek, ügyfeleink elégedettsége pedig a legjobb ajánlólevél számunkra.

Miért érdemes könnyűszerkezetes házat választani?

Gyors kivitelezés: akár néhány hónap alatt költözhető otthon.
Kiváló hőszigetelés: alacsony rezsiköltség, energiatakarékos megoldások.
Fenntartható technológia: környezetbarát, korszerű építési mód.
Rugalmas tervezhetőség: könnyen alakítható terek, modern megjelenés.
Tartósság és biztonság: bevált, időtálló szerkezet.
Személyre szabott tervezés kulcsrakész átadás!

Minden ügyfelünk egyedi igényei alapján készítjük el a terveket, és teljes körű szolgáltatást nyújtunk az első vonaltól az utolsó simításig.

Ha újépítésű projektben gondolkodsz, válaszd a tapasztalatot, a minőséget és a megbízhatóságot építsünk együtt olyan otthont, amelyben hosszú távon jól érzed majd magad!

A hirdetésen szereplő ingatlan fotók a már elkészült és átadott családi házak képei, ötletadó jelleggel.

Szolgáltatásaink:

- Ingyenes CSOK, babaváró és hitelügyintézés
- Megbízható ügyvédi háttér biztosítása
- Ingyenes ingatlan értékmeghatározás
- Energetikai tanúsítvány készítés
- Értékbecslés
- Házépítés megbízható generálkivitelezővel

Hirdetés feltöltve: 2025. 11. 19. Utoljára módosítva: 2025. 12. 02.

4 szobás családi házak ára Kecskeméten

Ebből az összehasonlításból megtudhatod, hogyan viszonyul a lakás ára a környékbeli családi házak átlagos árához. Ez nem azt jelenti, hogy ennyivel olcsóbb vagy drágább, mint amennyit a lakás ér, hanem hogy ennyivel tér el a környékbeli átlagtól.

Ennek a m² ára
Kecskemét m² ár
550 e Ft
818 e Ft 33%
Ennek az ára
Kecskemét átlagár
63.25 M Ft m Ft
111.5 m Ft 43%

Az ingatlan elhelyezkedése

Cím: Kecskemét

Eladó családi házak a környékről

Eladó családi ház
Eladó családi ház

Bugac

9.8 M Ft
4 szoba
67 m2
Eladó családi ház
Eladó családi ház

Kecskemét, Alsószéktó, Alsószéktó 138

65 M Ft
5 szoba
98 m2
Eladó családi ház
Eladó családi ház

Kecskemét

129.8 M Ft
5 szoba
138 m2
Eladó családi ház
Eladó családi ház

Tiszakécske, Kolozsvári utca

17.9 M Ft
3 szoba
95 m2
Eladó családi ház
Eladó családi ház

Kecskemét

93 M Ft
3 szoba
140 m2
Eladó családi ház
Eladó családi ház

Kecskemét, Alsószéktó, Alsószéktó 138

55 M Ft
5 szoba
91 m2
Eladó családi ház
Eladó családi ház

Kecskemét

129.8 M Ft
5 szoba
138 m2
Eladó családi ház
Eladó családi ház

Fajsz

12 M Ft
3 szoba
128 m2
Eladó családi ház
Eladó családi ház

Kecskemét

6.9 M Ft
1 szoba
30 m2
Eladó családi ház
Eladó családi ház

Kecskemét, Alsószéktó, Alsószéktó 138

63 M Ft
5 szoba
91 m2
Eladó családi ház
Eladó családi ház

Dunavecse

88.49 M Ft
8 szoba
378 m2
Eladó családi ház
Eladó családi ház

Kecskemét

150 M Ft
4 szoba
145 m2
Eladó családi ház
Eladó családi ház

Kecskemét, Alsószéktó, Alsószéktó 138

58 M Ft
5 szoba
92 m2
Eladó családi ház
Eladó családi ház

Kecskemét

135 M Ft
5 szoba
220 m2
Eladó családi ház
Eladó családi ház

Kecskemét

39.9 M Ft
2 szoba
110 m2
Eladó családi ház
Eladó családi ház

Kecskemét

129.8 M Ft
5 szoba
138 m2
Eladó családi ház
Eladó családi ház

Kecskemét

199 M Ft
5 szoba
350 m2
Eladó családi ház
Eladó családi ház

Lajosmizse

59.45 M Ft
4 szoba
150 m2
Eladó családi ház
Eladó családi ház

Kecskemét

180 M Ft
8 szoba
689 m2
Eladó családi ház
Eladó családi ház

Kecskemét

26 M Ft
3 szoba
110 m2
Eladó családi ház
Eladó családi ház

Kecskemét

175.2 M Ft
5 szoba
218 m2
Eladó családi ház
Eladó családi ház

Kiskunhalas

47 M Ft
12428 m²
183 m2
Eladó családi ház
Eladó családi ház

Kecskemét

199 M Ft
5 szoba
350 m2
Eladó családi ház
Eladó családi ház

Kecskemét

6.9 M Ft
1 szoba
30 m2

Falusi CSOK ingatlanok

Eladó téglalakás
Eladó téglalakás

Balatonszemes

244.5 M Ft
3 szoba
107 m2
Eladó családi ház
Eladó családi ház

Kenyeri

39.9 M Ft
3 szoba
94 m2
Eladó téglalakás
Eladó téglalakás

Balatonszemes

91.5 M Ft
2 szoba
60 m2
Eladó családi ház
Eladó családi ház

Kemeneshőgyész

8 M Ft
2 szoba
60 m2
Eladó családi ház
Eladó családi ház

Szurdokpüspöki

16 M Ft
1 szoba
45 m2
Eladó családi ház
Eladó családi ház

Iváncsa

73.9 M Ft
1 + 3 szoba
97 m2
Eladó családi ház
Eladó családi ház

Devecser

62.49 M Ft
5 szoba
180 m2
Eladó téglalakás
Eladó téglalakás

Balatonszemes

119.9 M Ft
2 szoba
81 m2