Pesti Házak

Eladó családi ház
Kecskemét

72 000 000 Ft72 M Ft 800 000 Ft/m2
4 szoba
90 m2
építés éve:2025

Részletes adatok

Telekméret: 400 m2
Fűtés: Egyéb
Energetikai besorolás: Nem adta meg a hirdető

Az OTP Bank lakáshitel ajánlataFizetett hirdetés

+36 30 341
Maracskó Aurél
HOUSE36 Ingatlanbázis Kft.

Érdekel az OTP Bank kedvezményes lakáshitel ajánlata? *

* A kérdésre „Igen” válasz bejelölése esetén, az „Üzenet küldése” gombra kattintva kijelentem, hogy az OTP Bank Nyrt. Adatkezelési tájékoztatójának tartalmát megismertem és tudomásul vettem.

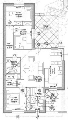
Eladó családi ház leírása

Kecskeméten,új építésű, nappali + 3 szobás, garázsos családi háza legmodernebb technológiákkal,prémium anyagokkal!

Nettó 90 m² - tágas nappali + 3 szoba, ideális a családi élethez
400 m²-es telek - elegendő tér a pihenéshez és szórakozáshoz
Porotherm Wienerberger X-Therm tégla - kiemelkedő hőtartás a téli hónapokban
15 cm-es hőszigetelés - energiahatékony otthon, alacsony fenntartási költségek
Hőszivattyús fűtésrendszer - környezetbarát, gazdaságos megoldás
Padlófűtés - egyenletes meleg, maximális komfort
Prémium minőségű műanyag nyílászárók - hosszú távú megbízhatóság és biztonság
Kiváló hidegburkolatok - 9000 Ft/m²-ig, a legjobb minőség az árban
Szaniterek - akár 1 millió Ft értékben, a komplett fürdőszoba megoldás biztosított
garázs
oldalhatáros beépítés
a tervezési költséget az ár tartalmazza, módosítások megoldhatók!
Építési idő:10-12 hónap
Árgarancia, Időgarancia, ingyenes hitelügyintézés
Képeinken referencia házat láthatnak.
Az iroda legfrissebb, aktuális kínálatát a HOUSE36 saját weboldalán találja!

Hirdetés feltöltve: 2025. 11. 09.

4 szobás családi házak ára Kecskeméten

Ebből az összehasonlításból megtudhatod, hogyan viszonyul a lakás ára a környékbeli családi házak átlagos árához. Ez nem azt jelenti, hogy ennyivel olcsóbb vagy drágább, mint amennyit a lakás ér, hanem hogy ennyivel tér el a környékbeli átlagtól.

Ennek a m² ára
Kecskemét m² ár
800 e Ft
804 e Ft 1%
Ennek az ára
Kecskemét átlagár
72 M Ft m Ft
111.4 m Ft 35%

Az ingatlan elhelyezkedése

Cím: Kecskemét

Eladó családi házak a környékről

Eladó családi ház
Eladó családi ház

Dunavecse

88.49 M Ft
8 szoba
378 m2
Eladó családi ház
Eladó családi ház

Kecskemét

135 M Ft
5 szoba
220 m2
Eladó családi ház
Eladó családi ház

Kunadacs

210 M Ft
14 szoba
920 m2
Eladó családi ház
Eladó családi ház

Kecskemét

120 M Ft
6 szoba
215 m2
Eladó családi ház
Eladó családi ház

Bugac

9.8 M Ft
4 szoba
67 m2
Eladó családi ház
Eladó családi ház

Bácsalmás

25.5 M Ft
2 + 1 szoba
90 m2
Eladó családi ház
Eladó családi ház

Kecskemét

8 M Ft
4 szoba
90 m2
Eladó családi ház
Eladó családi ház

Kiskunhalas

47 M Ft
12428 m²
183 m2
Eladó családi ház
Eladó családi ház

Kecskemét

24.9 M Ft
3 szoba
62 m2
Eladó családi ház
Eladó családi ház

Kiskunmajsa, 1

60.9 M Ft
6 szoba
220 m2
Eladó családi ház
Eladó családi ház

Kecskemét, Alsószéktó, Alsószéktó 138

63 M Ft
5 szoba
91 m2
Eladó családi ház
Eladó családi ház

Kecskemét

120 M Ft
6 szoba
215 m2
Eladó családi ház
Eladó családi ház

Kecskemét

259 M Ft
3 + 7 szoba
266 m2
Eladó családi ház
Eladó családi ház

Fajsz

12 M Ft
4 szoba
129 m2
Eladó családi ház
Eladó családi ház

Kecskemét

180 M Ft
8 szoba
689 m2
Eladó családi ház
Eladó családi ház

Tiszakécske, Kolozsvári utca

17.9 M Ft
3 szoba
95 m2
Eladó családi ház
Eladó családi ház

Kecskemét

129.8 M Ft
5 szoba
138 m2
Eladó családi ház
Eladó családi ház

Kecskemét, Alsószéktó, Alsószéktó 138

65 M Ft
5 szoba
98 m2
Eladó családi ház
Eladó családi ház

Kecskemét

6.9 M Ft
1 szoba
30 m2
Eladó családi ház
Eladó családi ház

Kecskemét

175.2 M Ft
5 szoba
218 m2
Eladó családi ház
Eladó családi ház

Kecskemét

93 M Ft
3 szoba
140 m2
Eladó családi ház
Eladó családi ház

Tiszakécske, Rév utca

53 M Ft
3 szoba
100 m2
Eladó családi ház
Eladó családi ház

Kecskemét

26 M Ft
3 szoba
110 m2
Eladó családi ház
Eladó családi ház

Kecskemét, Alsószéktó, Alsószéktó 138

55 M Ft
5 szoba
91 m2

Falusi CSOK ingatlanok

Eladó családi ház
Eladó családi ház

Almáskamarás

5.8 M Ft
2 szoba
70 m2
Eladó családi ház
Eladó családi ház

Szalánta

149.9 M Ft
10 szoba
301 m2
Eladó családi ház
Eladó családi ház

Enese

72.025 M Ft
4 szoba
75 m2
Eladó családi ház
Eladó családi ház

Mályi

89.9 M Ft
4 szoba
100 m2
Eladó családi ház
Eladó családi ház

Hajdúbagos

69.9 M Ft
5 szoba
230 m2
Eladó családi ház
Eladó családi ház

Várbalog

47.98 M Ft
3 szoba
85 m2
Eladó családi ház
Eladó családi ház

Orgovány, Mátyás király utca

16 M Ft
2 szoba
60 m2
Eladó családi ház
Eladó családi ház

Mezőfalva

39 M Ft
3 szoba
77 m2