River Life

Eladó családi ház
Kecskemét

89 900 000 Ft89.9 M Ft 864 423 Ft/m2
4 szoba
104 m2
építés éve:2026

Részletes adatok

Telekméret: 628 m2
Fűtés: Gázkazán
Energetikai besorolás: Nem adta meg a hirdető

Az OTP Bank lakáshitel ajánlataFizetett hirdetés

+36 30 724
Fricskáné Oltai Katalin
HOUSE36 Ingatlanbázis Kft.

Érdekel az OTP Bank kedvezményes lakáshitel ajánlata? *

* A kérdésre „Igen” válasz bejelölése esetén, az „Üzenet küldése” gombra kattintva kijelentem, hogy az OTP Bank Nyrt. Adatkezelési tájékoztatójának tartalmát megismertem és tudomásul vettem.

Eladó családi ház leírása

Építkezzen Kecskemét vonzáskörzetében a közkedvelt Helvécia központi részén!
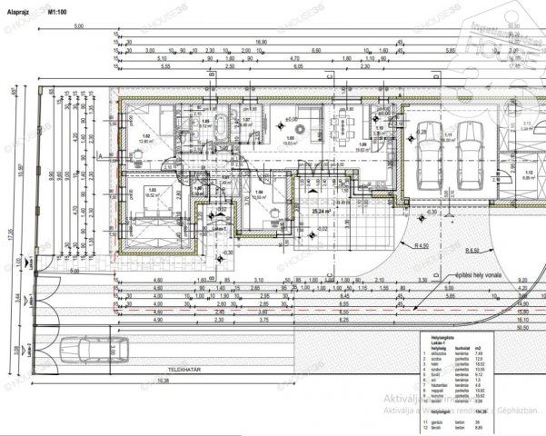
Eladó egy új építésű családi ház 628 m2-es telken lévő utcafronti elhelyezkedésű ingatlan.

Jellemzői:
- Telek mérete: 628 m2
- Összközműves
- Aszfaltozott út mellett
- Lakótér: 104,38 m2
- Terasz: 25,24 m2
- Nappali - étkező - konyha + 3 szoba+ nagy gardrób
- Fürdőszoba: kád, zuhanyzó, dupla mosdó, külön wc
- Dupla garázs: 36 m2
- Tároló: 8,85 m2
- Tégla építésű
- Külső nyílászárók: fehér műanyag ablakok (3 rétegű, 6 légkamrás), fix szúnyoghálóval
- Bejárati ajtó: fehér, műanyag hőszigetelt ajtó
- Beltéri ajtók: teli ajtók kilinccsel (CPL fóliás: 75.000,-/db)
- Fűtés: padlófűtés (Bosch kazán)
- Burkolatok: hideg burkolatok (7.000,-/m2), meleg burkolatok (9.000,-/m2) választhatók
- Egyéb extrák: - 2 kW napelem (bővíthető)
- 2 db hűtő-fűtő klíma
- Várható átadás: 2026.augusztus

Figyelem az adatlap megbízónktól kapott adatok alapján készült, pontosságáért felelősséget nem tudunk vállalni!
Szolgáltatásaink Kereső ügyfeleink számára INGYENESEK!
Amennyiben eladó-kiadó ingatlana van vagy finanszírozási megoldást keres , hívjon, megtaláljuk a legjobb lehetőséget Önnek!
A HOUSE36 kínálatában található összes ingatlannal kapcsolatban tudok felvilágosítást nyújtani!
Hívjon bizalommal!
Az iroda legfrissebb, aktuális kínálatát a HOUSE36 saját weboldalán találja!

Hirdetés feltöltve: 2025. 10. 15. Utoljára módosítva: 2025. 11. 02.

4 szobás családi házak ára Kecskeméten

Ebből az összehasonlításból megtudhatod, hogyan viszonyul a lakás ára a környékbeli családi házak átlagos árához. Ez nem azt jelenti, hogy ennyivel olcsóbb vagy drágább, mint amennyit a lakás ér, hanem hogy ennyivel tér el a környékbeli átlagtól.

Ennek a m² ára
Kecskemét m² ár
864 e Ft
793 e Ft -9%
Ennek az ára
Kecskemét átlagár
89.9 M Ft m Ft
109.3 m Ft 18%

Az ingatlan elhelyezkedése

Cím: Kecskemét

Eladó családi házak a környékről

Eladó családi ház
Eladó családi ház

Kecskemét

180 M Ft
8 szoba
689 m2
Eladó családi ház
Eladó családi ház

Tiszakécske, Rév utca

53 M Ft
3 szoba
100 m2
Eladó családi ház
Eladó családi ház

Kecskemét

199 M Ft
5 szoba
350 m2
Eladó családi ház
Eladó családi ház

Kunadacs

210 M Ft
14 szoba
920 m2
Eladó családi ház
Eladó családi ház

Kecskemét

26 M Ft
3 szoba
110 m2
Eladó családi ház
Eladó családi ház

Tiszakécske, Kolozsvári utca

17.9 M Ft
3 szoba
95 m2
Eladó családi ház
Eladó családi ház

Tiszakécske, Bajza utca

52.5 M Ft
3 szoba
110 m2
Eladó családi ház
Eladó családi ház

Kecskemét

175.2 M Ft
5 szoba
218 m2
Eladó családi ház
Eladó családi ház

Dunavecse

88.49 M Ft
8 szoba
378 m2
Eladó családi ház
Eladó családi ház

Kecskemét, Alsószéktó, Alsószéktó 138

55 M Ft
5 szoba
91 m2
Eladó családi ház
Eladó családi ház

Bácsalmás

46.5 M Ft
5 szoba
232 m2
Eladó családi ház
Eladó családi ház

Kecskemét, Alsószéktó, Alsószéktó 138

63 M Ft
5 szoba
91 m2
Eladó családi ház
Eladó családi ház

Kecskemét

120 M Ft
6 szoba
215 m2
Eladó családi ház
Eladó családi ház

Bácsalmás

25.5 M Ft
2 + 1 szoba
90 m2
Eladó családi ház
Eladó családi ház

Kecskemét, Alsószéktó, Alsószéktó 138

55 M Ft
5 szoba
91 m2
Eladó családi ház
Eladó családi ház

Kecskemét, Alsószéktó, Alsószéktó 138

58 M Ft
5 szoba
92 m2
Eladó családi ház
Eladó családi ház

Kecskemét, Alsószéktó, Alsószéktó 138

58 M Ft
5 szoba
92 m2
Eladó családi ház
Eladó családi ház

Kecskemét

199 M Ft
5 szoba
350 m2
Eladó családi ház
Eladó családi ház

Kecskemét

215 M Ft
3 szoba
350 m2
Eladó családi ház
Eladó családi ház

Kiskunmajsa, 1

60.9 M Ft
6 szoba
220 m2
Eladó családi ház
Eladó családi ház

Kecskemét

14.9 M Ft
2 szoba
80 m2
Eladó családi ház
Eladó családi ház

Kecskemét

259 M Ft
3 + 7 szoba
266 m2
Eladó családi ház
Eladó családi ház

Kecskemét

135 M Ft
5 szoba
220 m2
Eladó családi ház
Eladó családi ház

Kecskemét, Alsószéktó, Alsószéktó 138

63 M Ft
5 szoba
91 m2

Falusi CSOK ingatlanok

Eladó családi ház
Eladó családi ház

Bakonycsernye

39 M Ft
3 szoba
350 m2
Eladó családi ház
Eladó családi ház

Csengőd, Tompa Mihály utca

34 M Ft
2 szoba
81 m2
Eladó családi ház
Eladó családi ház

Hegyeshalom

85 M Ft
4 + 1 szoba
123 m2
Eladó családi ház
Eladó családi ház

Ceglédbercel

104.9 M Ft
3 szoba
150 m2
Eladó családi ház
Eladó családi ház

Bágyogszovát

21.499 M Ft
2 szoba
67 m2
Eladó családi ház
Eladó családi ház

Berzence

69.9 M Ft
6 szoba
257 m2
Eladó családi ház
Eladó családi ház

Bodonhely

41.49 M Ft
2 szoba
70 m2
Eladó téglalakás
Eladó téglalakás

Herend

63 M Ft
3 szoba
69 m2