Eladó családi ház
Kecskemét

+ 12 kép 1/15
129 900 000 Ft129.9 M Ft 676 563 Ft/m2
7 szoba
192 m2
építés éve:1986

Részletes adatok

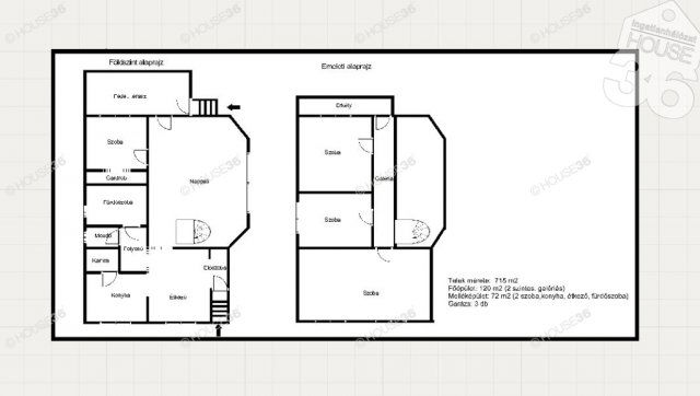
Telekméret: 715 m2
Fűtés: Gázkazán
Energetikai besorolás: Nem adta meg a hirdető

Az OTP Bank lakáshitel ajánlataFizetett hirdetés

+36 70 409
Kecskés Imola
HOUSE36 Ingatlanbázis Kft.

Érdekel az OTP Bank kedvezményes lakáshitel ajánlata? *

* A kérdésre „Igen” válasz bejelölése esetén, az „Üzenet küldése” gombra kattintva kijelentem, hogy az OTP Bank Nyrt. Adatkezelési tájékoztatójának tartalmát megismertem és tudomásul vettem.

Eladó családi ház leírása

Egyedi lehetőség családoknak és befektetőknek: galériás főépület + külön lakható melléképület 3 garázzsal és modern energiatakarékos megoldásokkal Kecskeméten a Petőfivárosban.

Főbb jellemzők:
- 715 m2-es telek, gondozott kerttel
- Főépület (120 m2): nappali+4 szoba, étkező-konyha, kamra, 2 fürdőszoba, fedett terasz (20 m2) és erkély (5 m2)
- Melléképület 72 m2: akár kiadásra is tökéletes
- 3 garázs: autóknak, tárolásra, műhelynek

Kényelem és energiahatékonyság:
- 7,22 kWp napelemrendszer - alacsony rezsi
- Gázfűtés, vegyes tüzelésű kazán, kandalló a nappaliban, valamint hűtő - fűtő klíma
- 30 cm tetőszigetelés hőtükörrel
- új tetőszerkezet, új külső szigetelés, és színezés, műanyag nyílászárók
- fúrt kút (42 m) a kert öntözéséhez

Lokáció: csendes, kis forgalmú utca, mégis közel mindenhez.
Per- és tehermentes, azonnal költözhető!
Ne hagyja ki ezt a páratlan lehetőséget - legyen Ön az új tulajdonosa ennek a különleges, alacsony rezsijű családi háznak Kecskemét egyik legjobb városrészében!

Figyelem, az adatlap kapott adatok alapján készült, pontosságáért felelősséget nem tudunk vállalni.
A tulajdonos kérésére az ingatlan bemutatása egy személyes konzultáció után történik, ahol részletes tájékoztatást kaphat az ingatlan paramétereiről és egyéb kényelmi szolgáltatásairól.
Amennyiben vásárlásához el kell adnia saját ingatlanát, szívesen segítek, forduljon hozzám bizalommal!
Az iroda legfrissebb, aktuális kínálatát a HOUSE36 saját weboldalán találja!

Hirdetés feltöltve: 2025. 10. 12. Utoljára módosítva: 2025. 10. 12.

Az ingatlan elhelyezkedése

Cím: Kecskemét

Eladó családi házak a környékről

Eladó családi ház
Eladó családi ház

Kecskemét

93 M Ft
3 szoba
140 m2
Eladó családi ház
Eladó családi ház

Kecskemét

45 M Ft
6 szoba
110 m2
Eladó családi ház
Eladó családi ház

Kecskemét

24.9 M Ft
3 szoba
62 m2
Eladó családi ház
Eladó családi ház

Kecskemét, Alsószéktó, Alsószéktó 138

63 M Ft
5 szoba
91 m2
Eladó családi ház
Eladó családi ház

Kecskemét

129.8 M Ft
5 szoba
138 m2
Eladó családi ház
Eladó családi ház

Kecskemét

120 M Ft
6 szoba
215 m2
Eladó családi ház
Eladó családi ház

Kecskemét

185 M Ft
3 szoba
140 m2
Eladó családi ház
Eladó családi ház

Kecskemét

6.9 M Ft
1 szoba
30 m2
Eladó családi ház
Eladó családi ház

Kecskemét, Alsószéktó, Alsószéktó 138

63 M Ft
5 szoba
91 m2
Eladó családi ház
Eladó családi ház

Kecskemét

9.9 M Ft
2 szoba
30 m2
Eladó családi ház
Eladó családi ház

Dunavecse

88.49 M Ft
8 szoba
378 m2
Eladó családi ház
Eladó családi ház

Kecskemét, Alsószéktó, Alsószéktó 138

55 M Ft
5 szoba
91 m2
Eladó családi ház
Eladó családi ház

Kecskemét

135 M Ft
5 szoba
220 m2
Eladó családi ház
Eladó családi ház

Kecskemét

259 M Ft
3 + 7 szoba
266 m2
Eladó családi ház
Eladó családi ház

Kecskemét, Alsószéktó, Alsószéktó 138

65 M Ft
5 szoba
98 m2
Eladó családi ház
Eladó családi ház

Kecskemét

109 M Ft
5 szoba
176 m2
Eladó családi ház
Eladó családi ház

Kecskemét

9.9 M Ft
2 szoba
30 m2
Eladó családi ház
Eladó családi ház

Kecskemét

26 M Ft
3 szoba
110 m2
Eladó családi ház
Eladó családi ház

Kecskemét

199 M Ft
5 szoba
350 m2
Eladó családi ház
Eladó családi ház

Kecskemét

93 M Ft
3 szoba
140 m2
Eladó családi ház
Eladó családi ház

Kecskemét

24.9 M Ft
3 szoba
62 m2
Eladó családi ház
Eladó családi ház

Kecskemét, Alsószéktó, Alsószéktó 138

65 M Ft
5 szoba
98 m2
Eladó családi ház
Eladó családi ház

Kecskemét, Alsószéktó, Alsószéktó 138

58 M Ft
5 szoba
92 m2
Eladó családi ház
Eladó családi ház

Kecskemét

8 M Ft
4 szoba
90 m2

Falusi CSOK ingatlanok

Eladó családi ház
Eladó családi ház

Tök

96.2 M Ft
4 szoba
104 m2
Eladó családi ház
Eladó családi ház

Somogyszil

9.8 M Ft
3 szoba
110 m2
Eladó családi ház
Eladó családi ház

Rábapaty

110 M Ft
5 szoba
132 m2
Eladó családi ház
Eladó családi ház

Balatonfenyves

430 M Ft
4 szoba
274 m2
Eladó családi ház
Eladó családi ház

Makád

140 M Ft
4 szoba
79 m2
Eladó családi ház
Eladó családi ház

Gáborján

5.5 M Ft
2 szoba
68 m2
Eladó családi ház
Eladó családi ház

Lulla

45 M Ft
3 szoba
90 m2
Eladó családi ház
Eladó családi ház

Pilisszentkereszt

139 M Ft
5 szoba
220 m2