Eladó családi ház
Kecskemét

80 000 000 Ft80 M Ft 533 333 Ft/m2
4 szoba
150 m2
építés éve:2026

Részletes adatok

Telekméret: 500 m2
Fűtés: Egyéb
Energetikai besorolás: Nem adta meg a hirdető

Az OTP Bank lakáshitel ajánlataFizetett hirdetés

+36 70 633
Alt Róbertné
HOUSE36 Ingatlanbázis Kft.

Érdekel az OTP Bank kedvezményes lakáshitel ajánlata? *

* A kérdésre „Igen” válasz bejelölése esetén, az „Üzenet küldése” gombra kattintva kijelentem, hogy az OTP Bank Nyrt. Adatkezelési tájékoztatójának tartalmát megismertem és tudomásul vettem.

Eladó családi ház leírása

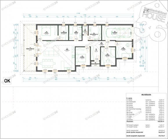
​Kecskeméten az egész család számára tökéletes kényelmet biztosító, remek elrendezésű, új építésű családi ház csak önre vár.

A garázsból rögtön a lakásba léphet be.
A 4 szoba minden családtagnak biztosít egy kis elvonulási lehetőséget.
A kényelmes, tágas nappaliból és a hálószobából is a fedett teraszra léphet ki.

- 150,3 m2 nettó lakótér
+ 18,2 m2 garázs
+ 1,6 m2 fedett belépő
+ 24,4 m2 fedett terasz

- garázs
- hőszivattyú
- padlófűtés
- 4 szoba
- gardrób
- nagy nappali konyhával, étkezővel
- háztartási helyiség
- plusz külön wc
- energia takarékos
- 2026 év végi átadás

Választható burkolatok, színek, nyílászárók, szaniterek.
Hívjon.Nézzük meg a minta házakat akár hétvégén is.

A HOUSE36 kínálatában lévő összes ingatlannal kapcsolatban tudok felvilágosítást nyújtani.
Szolgáltatásaink kereső ügyfeleink részére ingyenesek.
Az iroda legfrissebb, aktuális kínálatát a HOUSE36 saját weboldalán találja!

Hirdetés feltöltve: 2025. 10. 12. Utoljára módosítva: 2025. 10. 12.

4 szobás családi házak ára Kecskeméten

Ebből az összehasonlításból megtudhatod, hogyan viszonyul a lakás ára a környékbeli családi házak átlagos árához. Ez nem azt jelenti, hogy ennyivel olcsóbb vagy drágább, mint amennyit a lakás ér, hanem hogy ennyivel tér el a környékbeli átlagtól.

Ennek a m² ára
Kecskemét m² ár
533 e Ft
783 e Ft 32%
Ennek az ára
Kecskemét átlagár
80 M Ft m Ft
104 m Ft 23%

Az ingatlan elhelyezkedése

Cím: Kecskemét

Eladó családi házak a környékről

Eladó családi ház
Eladó családi ház

Kecskemét, Alsószéktó, Alsószéktó 138

65 M Ft
5 szoba
98 m2
Eladó családi ház
Eladó családi ház

Kecskemét

135 M Ft
5 szoba
220 m2
Eladó családi ház
Eladó családi ház

Kecskemét

135 M Ft
5 szoba
220 m2
Eladó családi ház
Eladó családi ház

Kecskemét, Alsószéktó, Alsószéktó 138

55 M Ft
5 szoba
91 m2
Eladó családi ház
Eladó családi ház

Fajsz

12 M Ft
3 szoba
128 m2
Eladó családi ház
Eladó családi ház

Kecskemét

480 M Ft
6 szoba
1150 m2
Eladó családi ház
Eladó családi ház

Kecskemét

93 M Ft
3 szoba
140 m2
Eladó családi ház
Eladó családi ház

Tiszakécske, Rév utca

53 M Ft
3 szoba
100 m2
Eladó családi ház
Eladó családi ház

Kecskemét

199 M Ft
5 szoba
350 m2
Eladó családi ház
Eladó családi ház

Kecskemét

185 M Ft
3 szoba
140 m2
Eladó családi ház
Eladó családi ház

Kecskemét

24.9 M Ft
3 szoba
62 m2
Eladó családi ház
Eladó családi ház

Kecskemét

6.9 M Ft
1 szoba
30 m2
Eladó családi ház
Eladó családi ház

Kecskemét

45 M Ft
6 szoba
110 m2
Eladó családi ház
Eladó családi ház

Kecskemét

109 M Ft
5 szoba
176 m2
Eladó családi ház
Eladó családi ház

Kecskemét

199 M Ft
5 szoba
350 m2
Eladó családi ház
Eladó családi ház

Bácsalmás

25.5 M Ft
2 + 1 szoba
90 m2
Eladó családi ház
Eladó családi ház

Kecskemét

9.9 M Ft
2 szoba
30 m2
Eladó családi ház
Eladó családi ház

Bácsalmás

46.5 M Ft
5 szoba
232 m2
Eladó családi ház
Eladó családi ház

Kecskemét

120 M Ft
6 szoba
215 m2
Eladó családi ház
Eladó családi ház

Kecskemét

24.9 M Ft
3 szoba
62 m2
Eladó családi ház
Eladó családi ház

Kecskemét

94 M Ft
4 szoba
133 m2
Eladó családi ház
Eladó családi ház

Kecskemét

94 M Ft
4 szoba
133 m2
Eladó családi ház
Eladó családi ház

Kecskemét

39.9 M Ft
2 szoba
110 m2
Eladó családi ház
Eladó családi ház

Kunadacs

210 M Ft
14 szoba
920 m2

Falusi CSOK ingatlanok

Eladó családi ház
Eladó családi ház

Balatonszemes

119 M Ft
3 szoba
76 m2
Eladó családi ház
Eladó családi ház

Badacsonytomaj

199.8 M Ft
3 szoba
166 m2
Eladó családi ház
Eladó családi ház

Szalánta, Hunyadi

41.9 M Ft
3 + 1 szoba
120 m2
Eladó családi ház
Eladó családi ház

Kaposgyarmat

5.9 M Ft
1 szoba
40 m2
Eladó családi ház
Eladó családi ház

Ugod

53.8 M Ft
3 szoba
137 m2
Eladó családi ház
Eladó családi ház

Galgahévíz

42 M Ft
4 szoba
101 m2
Eladó családi ház
Eladó családi ház

Liszó

35 M Ft
2 szoba
87 m2
Eladó családi ház
Eladó családi ház

Nagyrécse

19 M Ft
2 szoba
52 m2