Eladó családi ház
Kecskemét

+ 7 kép 1/10
109 900 000 Ft109.9 M Ft 865 354 Ft/m2
4 szoba
127 m2
építés éve:2025

Részletes adatok

Telekméret: 580 m2
Fűtés: Gázkazán
Energetikai besorolás: Nem adta meg a hirdető

Az OTP Bank lakáshitel ajánlataFizetett hirdetés

+36 70 649
Dr. Lizik Zoltán
HOUSE36 Ingatlanbázis Kft.

Érdekel az OTP Bank kedvezményes lakáshitel ajánlata? *

* A kérdésre „Igen” válasz bejelölése esetén, az „Üzenet küldése” gombra kattintva kijelentem, hogy az OTP Bank Nyrt. Adatkezelési tájékoztatójának tartalmát megismertem és tudomásul vettem.

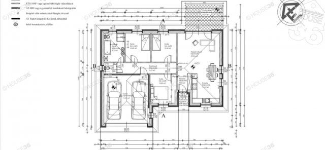
Eladó családi ház leírása

Kecskeméttől 5 percre extra műszaki tartalommal épült családi ház ELADÓ dupla garázzsal!

Jellemzői:

94,7 m2 lakótér
32 m2 dupla garázs
580 m2 önálló telek
nappali + 3 szoba
12 m2 terasz
térkövezett gépkocsi beálló
kerítés
15 cm szigetelés
20 cm födémszigetelés
színezett műanyag nyílászárók
padlófűtés Bosch kazánnal

A tulajdonos kérésére az ingatlan bemutatása egy személyes konzultáció után történik, ahol részletes tájékoztatást kaphat az ingatlan paramétereiről és egyéb kényelmi szolgáltatásairól! Figyelem az adatlap megbízónktól kapott adatok alapján készült, pontosságáért felelősséget nem tudunk vállalni!
Az iroda legfrissebb, aktuális kínálatát a HOUSE36 saját weboldalán találja!

Hirdetés feltöltve: 2025. 10. 08. Utoljára módosítva: 2025. 10. 08.

4 szobás családi házak ára Kecskeméten

Ebből az összehasonlításból megtudhatod, hogyan viszonyul a lakás ára a környékbeli családi házak átlagos árához. Ez nem azt jelenti, hogy ennyivel olcsóbb vagy drágább, mint amennyit a lakás ér, hanem hogy ennyivel tér el a környékbeli átlagtól.

Ennek a m² ára
Kecskemét m² ár
865 e Ft
786 e Ft -10%
Ennek az ára
Kecskemét átlagár
109.9 M Ft m Ft
103 m Ft -7%

Az ingatlan elhelyezkedése

Cím: Kecskemét

Eladó családi házak a környékről

Eladó családi ház
Eladó családi ház

Kecskemét

26 M Ft
3 szoba
110 m2
Eladó családi ház
Eladó családi ház

Tiszakécske, Bajza utca

52.5 M Ft
3 szoba
110 m2
Eladó családi ház
Eladó családi ház

Kecskemét, Alsószéktó, Alsószéktó 138

63 M Ft
5 szoba
91 m2
Eladó családi ház
Eladó családi ház

Fajsz

12 M Ft
4 szoba
129 m2
Eladó családi ház
Eladó családi ház

Kecskemét

85 M Ft
8 szoba
200 m2
Eladó családi ház
Eladó családi ház

Kecskemét

169.8 M Ft
8 szoba
256 m2
Eladó családi ház
Eladó családi ház

Kecskemét, Alsószéktó, Alsószéktó 138

65 M Ft
5 szoba
98 m2
Eladó családi ház
Eladó családi ház

Bugac

9.8 M Ft
4 szoba
67 m2
Eladó családi ház
Eladó családi ház

Kecskemét

129.8 M Ft
5 szoba
138 m2
Eladó családi ház
Eladó családi ház

Kecskemét, Alsószéktó, Alsószéktó 138

55 M Ft
5 szoba
91 m2
Eladó családi ház
Eladó családi ház

Kecskemét, Alsószéktó, Alsószéktó 138

63 M Ft
5 szoba
91 m2
Eladó családi ház
Eladó családi ház

Kecskemét

6.9 M Ft
1 szoba
30 m2
Eladó családi ház
Eladó családi ház

Bácsalmás

46.5 M Ft
5 szoba
232 m2
Eladó családi ház
Eladó családi ház

Kelebia, Kossuth

29.5 M Ft
5 szoba
160 m2
Eladó családi ház
Eladó családi ház

Kecskemét

199 M Ft
5 szoba
350 m2
Eladó családi ház
Eladó családi ház

Kecskemét, Alsószéktó, Alsószéktó 138

58 M Ft
5 szoba
92 m2
Eladó családi ház
Eladó családi ház

Fajsz

12 M Ft
3 szoba
128 m2
Eladó családi ház
Eladó családi ház

Kecskemét

14.9 M Ft
2 szoba
80 m2
Eladó családi ház
Eladó családi ház

Kecskemét

259 M Ft
3 + 7 szoba
266 m2
Eladó családi ház
Eladó családi ház

Kunadacs

210 M Ft
14 szoba
920 m2
Eladó családi ház
Eladó családi ház

Kiskunmajsa, 1

60.9 M Ft
6 szoba
220 m2
Eladó családi ház
Eladó családi ház

Kecskemét, Alsószéktó, Alsószéktó 138

55 M Ft
5 szoba
91 m2
Eladó családi ház
Eladó családi ház

Kecskemét

135 M Ft
5 szoba
220 m2
Eladó családi ház
Eladó családi ház

Kecskemét, Alsószéktó, Alsószéktó 138

58 M Ft
5 szoba
92 m2

Falusi CSOK ingatlanok

Eladó családi ház
Eladó családi ház

Szigetbecse

99 M Ft
3 szoba
86 m2
Eladó téglalakás
Eladó téglalakás

Hegyeshalom

28 M Ft
1 szoba
29 m2
Eladó családi ház
Eladó családi ház

Nyírtura

99 M Ft
4 szoba
280 m2
Eladó családi ház
Eladó családi ház

Recsk

21 M Ft
4 szoba
220 m2
Eladó családi ház
Eladó családi ház

Orgovány

68.5 M Ft
4 szoba
169 m2
Eladó családi ház
Eladó családi ház

Törökkoppány

20.9 M Ft
2 szoba
80 m2
Eladó családi ház
Eladó családi ház

Sárosd

34 M Ft
3 + 2 szoba
95 m2
Eladó családi ház
Eladó családi ház

Balatonszárszó

56.5 M Ft
3 szoba
60 m2