River Life

Eladó családi ház
Kápolnásnyék

74 000 000 Ft74 M Ft 740 000 Ft/m2
3 szoba
100 m2
építés éve:2026

Részletes adatok

Telekméret: 750 m2
Fűtés: Elektromos
Közmű: Víz
Energetikai besorolás: Nem adta meg a hirdető
Zenga Premier

Friss hirdetések, amiket nem találsz meg más ingatlankereső portálon.

Fedezd fel elsőként a Zenga Premier címkés eladó ingatlanokat!

További részletek a zenga.hu-n

Az OTP Bank lakáshitel ajánlataFizetett hirdetés

+36 70 884
Lepsényi Kornél
referens

Érdekel az OTP Bank kedvezményes lakáshitel ajánlata? *

* A kérdésre „Igen” válasz bejelölése esetén, az „Üzenet küldése” gombra kattintva kijelentem, hogy az OTP Bank Nyrt. Adatkezelési tájékoztatójának tartalmát megismertem és tudomásul vettem.

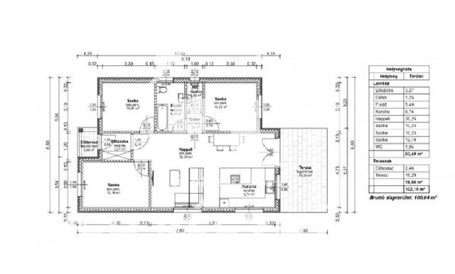
Eladó családi ház leírása

Eladó Kápolnásnyéken egy új építésű, modern 100 nm-es családi ház egy 750 nm-es telken!
Az ingatlan kiváló elrendezésének köszönhetően kényelmes életteret biztosít: három ideális méretű hálószoba, világos amerikai konyhás nappali, külön WC, valamint egy fürdőszoba az ingatlan beosztása. A házhoz továbbá egy 18 nm-es terasz is kapcsolódik, amely tökéletes helyszín lehet a pihenéshez vagy baráti összejövetelekhez.

A fűtés korszerű elektromos rendszerrel megoldott, a parkolás pedig a telken belül több autó számára is kényelmesen biztosított.

Ha szeretne egy modern, jól megtervezett otthont Kápolnásnyék kedvelt részén, ne habozzon kapcsolatba lépni velem! Akár hétvégén is elérhető vagyok.

Ügyfeleink részére díjmentesen biztosítunk előzetes hitelbírálatot, piaci hitelek esetén egyedi kamatot, valamint teljes körű ügyintézést egészen a birtokbaadásig!

Hirdetés feltöltve: 2025. 12. 10. Utoljára módosítva: 2025. 12. 10.

3 szobás családi házak ára Kápolnásnyéken

Ebből az összehasonlításból megtudhatod, hogyan viszonyul a lakás ára a környékbeli családi házak átlagos árához. Ez nem azt jelenti, hogy ennyivel olcsóbb vagy drágább, mint amennyit a lakás ér, hanem hogy ennyivel tér el a környékbeli átlagtól.

Ennek a m² ára
Kápolnásnyék m² ár
740 e Ft
577 e Ft -28%
Ennek az ára
Kápolnásnyék átlagár
74 M Ft m Ft
67.1 m Ft -10%

Az ingatlan elhelyezkedése

Cím: Kápolnásnyék

Eladó családi házak a környékről

Eladó családi ház
Eladó családi ház

Kápolnásnyék

198 M Ft
9 szoba
300 m2
Eladó családi ház
Eladó családi ház

Pusztavám

22.9 M Ft
3 szoba
103 m2
Eladó családi ház
Eladó családi ház

Székesfehérvár

59 M Ft
3 szoba
100 m2
Eladó családi ház
Eladó családi ház

Kápolnásnyék

289 M Ft
10 szoba
618 m2
Eladó családi ház
Eladó családi ház

Szabadbattyán

357.518 M Ft
9 + 2 szoba
1053 m2
Eladó családi ház
Eladó családi ház

Kápolnásnyék, Bem utca

108.675 M Ft
5 szoba
136 m2
Eladó családi ház
Eladó családi ház

Kápolnásnyék

118.6 M Ft
1 + 4 szoba
136 m2
Eladó családi ház
Eladó családi ház

Kápolnásnyék

35 M Ft
2 szoba
74 m2
Eladó családi ház
Eladó családi ház

Kápolnásnyék

84.9 M Ft
4 szoba
90 m2
Eladó családi ház
Eladó családi ház

Pusztavám

22.9 M Ft
3 szoba
103 m2
Eladó családi ház
Eladó családi ház

Pusztaszabolcs

143.9 M Ft
4 szoba
149 m2
Eladó családi ház
Eladó családi ház

Kápolnásnyék

130 M Ft
4 szoba
326 m2
Eladó családi ház
Eladó családi ház

Kápolnásnyék

84.9 M Ft
4 szoba
90 m2
Eladó családi ház
Eladó családi ház

Kápolnásnyék

35 M Ft
2 szoba
74 m2
Eladó családi ház
Eladó családi ház

Velence

42.9 M Ft
1 szoba
40 m2
Eladó családi ház
Eladó családi ház

Bakonycsernye

39 M Ft
3 szoba
350 m2
Eladó családi ház
Eladó családi ház

Besnyő

25 M Ft
1 szoba
30 m2
Eladó családi ház
Eladó családi ház

Székesfehérvár

69.9 M Ft
3 szoba
95 m2
Eladó családi ház
Eladó családi ház

Vereb

49.9 M Ft
1 + 3 szoba
80 m2
Eladó családi ház
Eladó családi ház

Kápolnásnyék

132.5 M Ft
1 + 4 szoba
156 m2
Eladó családi ház
Eladó családi ház

Kápolnásnyék, Bem utca

108.675 M Ft
5 szoba
136 m2
Eladó családi ház
Eladó családi ház

Kápolnásnyék, Ercsi út

210 M Ft
5 + 2 szoba
180 m2
Eladó családi ház
Eladó családi ház

Gárdony

42 M Ft
2 szoba
63 m2
Eladó családi ház
Eladó családi ház

Baracska, Határ utca

74.9 M Ft
3 szoba
155 m2

Falusi CSOK ingatlanok

Eladó családi ház
Eladó családi ház

Zalaszabar

248 M Ft
4 szoba
197 m2
Eladó családi ház
Eladó családi ház

Dunavecse, Móricz Zsigmond utca

34 M Ft
2 szoba
95 m2
Eladó családi ház
Eladó családi ház

Balogunyom, Petőfi Sándor utca

74.9 M Ft
4 szoba
242 m2
Eladó családi ház
Eladó családi ház

Nagybörzsöny

79.9 M Ft
4 szoba
149 m2
Eladó családi ház
Eladó családi ház

Tápióság

17 M Ft
1 szoba
44 m2
Eladó családi ház
Eladó családi ház

Zalalövő

34.99 M Ft
3 szoba
110 m2
Eladó családi ház
Eladó családi ház

Farmos

38.9 M Ft
2 szoba
46 m2
Eladó családi ház
Eladó családi ház

Sellye

43 M Ft
5 szoba
150 m2