River Life

Eladó családi ház
Jászfényszaru

+ 9 kép 1/12
27 900 000 Ft27.9 M Ft 336 145 Ft/m2
2 + 1 szoba
83 m2
építés éve:1970

Részletes adatok

Telekméret: 982 m2
Fűtés: Gázkazán
Energetikai besorolás: Nem adta meg a hirdető

Az OTP Bank lakáshitel ajánlataFizetett hirdetés

+36 70 366
Hollóné Ézsiás Krisztina
Jászberény. OTPIP SzeMi

Érdekel az OTP Bank kedvezményes lakáshitel ajánlata? *

* A kérdésre „Igen” válasz bejelölése esetén, az „Üzenet küldése” gombra kattintva kijelentem, hogy az OTP Bank Nyrt. Adatkezelési tájékoztatójának tartalmát megismertem és tudomásul vettem.

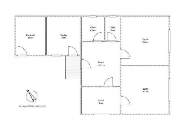
Eladó családi ház leírása

Eladó családi ház Jászfényszarun - tágas otthon nagy kerttel!

Jászfényszarun, nyugodt és barátságos környezetben eladó egy 83 nm-es családi ház, amely kényelmes otthont nyújt családok számára! A ház praktikus elrendezésű: két és fél szoba, étkező, fürdőszoba, kamra és egy külön bejáratú konyha biztosítja a mindennapi kényelmet.

Az ingatlan központi fűtéses, a radiátoros hőleadók biztosítják a kellemes meleget. A 11 nm-es kazánházban egy gázkazán és egy vegyestüzelésű kazán is működik, így a fűtés többféle módon megoldható az igényekhez igazítva.

A 982 nm-es telken jó állapotú melléképületek találhatók, amelyek állattartásra is kiválóan alkalmasak, valamint egy 20 nm-es különálló garázs biztosítja a parkolási lehetőséget. A gondozott kertben gyümölcsfák teremnek, és a fúrt kút segítségével egyszerűen gondoskodhat a locsolásról.

Ha egy tágas, jól karbantartott otthont keres nagy kerttel és számos lehetőséggel, ne hagyja ki ezt az ajánlatot! Hívjon bizalommal és tekintse meg személyesen!
Érdeklődni: 06-70/366-6563 Hollóné Ézsiás Krisztina Ingyenes hitelügyintézés, várom hétvégén is hivását!

Hirdetés feltöltve: 2025. 07. 10. Utoljára módosítva: 2026. 01. 28.

3 szobás családi házak ára Jászfényszarun

Ebből az összehasonlításból megtudhatod, hogyan viszonyul a lakás ára a környékbeli családi házak átlagos árához. Ez nem azt jelenti, hogy ennyivel olcsóbb vagy drágább, mint amennyit a lakás ér, hanem hogy ennyivel tér el a környékbeli átlagtól.

Ennek a m² ára
Jászfényszaru m² ár
336 e Ft
370 e Ft 9%
Ennek az ára
Jászfényszaru átlagár
27.9 M Ft m Ft
45 m Ft 38%

Az ingatlan elhelyezkedése

Cím: Jászfényszaru

Eladó családi házak a környékről

Eladó családi ház
Eladó családi ház

Abádszalók

16 M Ft
4 szoba
110 m2
Eladó családi ház
Eladó családi ház

Mezőtúr, Tündér

25 M Ft
1 szoba
85 m2
Eladó családi ház
Eladó családi ház

Jászfényszaru

13.9 M Ft
2 szoba
52 m2
Eladó családi ház
Eladó családi ház

Cibakháza

2.5 M Ft
2 szoba
75 m2
Eladó családi ház
Eladó családi ház

Jászárokszállás

21.5 M Ft
2 szoba
45 m2
Eladó családi ház
Eladó családi ház

Kunszentmárton

13.9 M Ft
3 szoba
92 m2
Eladó családi ház
Eladó családi ház

Jászjákóhalma

17.5 M Ft
3 szoba
78 m2
Eladó családi ház
Eladó családi ház

Jászfényszaru

64.9 M Ft
5 szoba
95 m2
Eladó családi ház
Eladó családi ház

Jászfényszaru

27.9 M Ft
2 + 1 szoba
83 m2
Eladó családi ház
Eladó családi ház

Jászfényszaru

36.9 M Ft
1080 m²
80 m2
Eladó családi ház
Eladó családi ház

Jászfényszaru

49.5 M Ft
3 szoba
120 m2
Eladó családi ház
Eladó családi ház

Jászfényszaru

34.9 M Ft
4 szoba
103 m2
Eladó családi ház
Eladó családi ház

Jászfényszaru

59.9 M Ft
3 szoba
107 m2
Eladó családi ház
Eladó családi ház

Szolnok

20.5 M Ft
2 szoba
78 m2
Eladó családi ház
Eladó családi ház

Jászfényszaru

34.9 M Ft
4 szoba
103 m2
Eladó családi ház
Eladó családi ház

Újszász

39.7 M Ft
2 + 2 szoba
180 m2
Eladó családi ház
Eladó családi ház

Szászberek

88 M Ft
5 szoba
150 m2
Eladó családi ház
Eladó családi ház

Szolnok

120 M Ft
3 + 4 szoba
296 m2
Eladó családi ház
Eladó családi ház

Jászfényszaru

59.9 M Ft
3 szoba
167 m2
Eladó családi ház
Eladó családi ház

Jászberény

118 M Ft
1 szoba
190 m2
Eladó családi ház
Eladó családi ház

Jászfényszaru

55 M Ft
4 szoba
140 m2
Eladó családi ház
Eladó családi ház

Jászfényszaru

13.9 M Ft
2 szoba
52 m2
Eladó családi ház
Eladó családi ház

Abádszalók

16 M Ft
4 szoba
110 m2
Eladó családi ház
Eladó családi ház

Jászladány, Liszt Ferenc utca

35 M Ft
2 + 2 szoba
120 m2

Falusi CSOK ingatlanok

Eladó családi ház
Eladó családi ház

Nagybörzsöny

79.9 M Ft
4 szoba
149 m2
Eladó családi ház
Eladó családi ház

Badacsonytördemic

180.95 M Ft
4 szoba
160 m2
Eladó családi ház
Eladó családi ház

Parád

39 M Ft
3 szoba
86 m2
Eladó családi ház
Eladó családi ház

Balatonudvari

79.9 M Ft
4 szoba
97 m2
Eladó családi ház
Eladó családi ház

Kaposgyarmat

695 M Ft
6 szoba
610 m2
Eladó családi ház
Eladó családi ház

Rábapaty

99.99 M Ft
5 szoba
132 m2
Eladó családi ház
Eladó családi ház

Palkonya

137 M Ft
6 szoba
160 m2
Eladó családi ház
Eladó családi ház

Pécsvárad

79.9 M Ft
4 szoba
100 m2