NapForrás 20 - Buda

Eladó családi ház
Jászberény, Ábránd utca

+ 5 kép 1/8
19 900 000 Ft19.9 M Ft 306 154 Ft/m2
3 szoba
65 m2

Részletes adatok

Állapot: Felújítandó
Telekméret: 956 m2
Fűtés: Gázkonvektor
Közmű: Víz, Gáz, Villany, Csatorna
Energetikai besorolás: Nem adta meg a hirdető

Az OTP Bank lakáshitel ajánlataFizetett hirdetés

+36 30 370
Szabó Ottó
Hatvan - Mobil Ingatlan - Partneriroda

Érdekel az OTP Bank kedvezményes lakáshitel ajánlata? *

* A kérdésre „Igen” válasz bejelölése esetén, az „Üzenet küldése” gombra kattintva kijelentem, hogy az OTP Bank Nyrt. Adatkezelési tájékoztatójának tartalmát megismertem és tudomásul vettem.

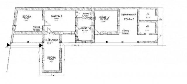
Eladó családi ház leírása

Jászberény, Ábránd utcában 65m2-es kibővített parasztház 956m2-es telken eladó!
Falazata vályog, a bővítménynek phorotherm tégla. Az ingatlan felújításra vár, melyet az új tulajdonos elképzelése szerint tud megvalósítani. A jelenlegi fűtés gázkonvektor. A ház statikailag jó állapotú, nagy melléképületekkel rendelkezik. Ügyes kezek viszonylag alacsony költséggel barátságos otthonná tudják varázsolni. Az ingatlan CSOK-ra nem alkalmas.
VH7-1496

Mottónk: "Harmonikus kombinációk ingatlan- és pénzügyi kérdésekben."

Irodánk, mely Hatvan főterén, a Kossuth tér 14. szám alatt található, 1998. óta működik Hatvanban és vonzáskörzetében.
Irodánk 8 és 16 óra között tart nyitva, de előre egyeztetett időpontban és a terület specialitását figyelembe véve szükség esetén ezen kívül is ügyfeleink rendelkezésére állunk.

Hirdetés feltöltve: 2025. 09. 09. Utoljára módosítva: 2025. 10. 22.

3 szobás családi házak ára Jászberényben

Ebből az összehasonlításból megtudhatod, hogyan viszonyul a lakás ára a környékbeli családi házak átlagos árához. Ez nem azt jelenti, hogy ennyivel olcsóbb vagy drágább, mint amennyit a lakás ér, hanem hogy ennyivel tér el a környékbeli átlagtól.

Ennek a m² ára
Jászberény m² ár
306 e Ft
491 e Ft 38%
Ennek az ára
Jászberény átlagár
19.9 M Ft m Ft
44.6 m Ft 55%

Az ingatlan elhelyezkedése

Cím: Jászberény, Ábránd utca

Eladó családi házak a környékről

Eladó családi ház
Eladó családi ház

Újszász

39.7 M Ft
2 + 2 szoba
180 m2
Eladó családi ház
Eladó családi ház

Jászladány, Liszt Ferenc utca

35 M Ft
2 + 2 szoba
120 m2
Eladó családi ház
Eladó családi ház

Mezőtúr, Tündér

25 M Ft
1 szoba
85 m2
Eladó családi ház
Eladó családi ház

Jászberény

45 M Ft
5 szoba
187 m2
Eladó családi ház
Eladó családi ház

Karcag, József Attila utca

49.9 M Ft
3 szoba
166 m2
Eladó családi ház
Eladó családi ház

Szolnok

35.8 M Ft
2 szoba
70 m2
Eladó családi ház
Eladó családi ház

Kunszentmárton

15.7 M Ft
3 szoba
84 m2
Eladó családi ház
Eladó családi ház

Kunszentmárton

13.9 M Ft
3 szoba
92 m2
Eladó családi ház
Eladó családi ház

Jászberény

53 M Ft
3 szoba
96 m2
Eladó családi ház
Eladó családi ház

Cserkeszőlő, Napsugár utca

350 M Ft
4 szoba
440 m2
Eladó családi ház
Eladó családi ház

Szolnok

30 M Ft
2 szoba
70 m2
Eladó családi ház
Eladó családi ház

Jászberény

44.9 M Ft
4 szoba
140 m2
Eladó családi ház
Eladó családi ház

Jászberény

79.9 M Ft
4 szoba
165 m2
Eladó családi ház
Eladó családi ház

Jászberény

62 M Ft
3 + 7 szoba
190 m2
Eladó családi ház
Eladó családi ház

Jászberény

75 M Ft
3 szoba
168 m2
Eladó családi ház
Eladó családi ház

Szolnok

20 M Ft
1 + 2 szoba
62 m2
Eladó családi ház
Eladó családi ház

Jászberény

63 M Ft
3 + 1 szoba
178 m2
Eladó családi ház
Eladó családi ház

Jászberény

39.9 M Ft
5 szoba
160 m2
Eladó családi ház
Eladó családi ház

Szászberek

88 M Ft
5 szoba
150 m2
Eladó családi ház
Eladó családi ház

Jászberény

14.5 M Ft
2 szoba
50 m2
Eladó családi ház
Eladó családi ház

Szolnok

69.9 M Ft
1000 m²
220 m2
Eladó családi ház
Eladó családi ház

Cibakháza

2.5 M Ft
2 szoba
75 m2
Eladó családi ház
Eladó családi ház

Jászberény

75 M Ft
3 szoba
168 m2
Eladó családi ház
Eladó családi ház

Jászberény

44.2 M Ft
4 + 1 szoba
148 m2

Falusi CSOK ingatlanok

Eladó családi ház
Eladó családi ház

Kelebia

13 M Ft
3 szoba
76 m2
Eladó családi ház
Eladó családi ház

Mályi

89.9 M Ft
4 szoba
100 m2
Eladó családi ház
Eladó családi ház

Balatonfenyves

430 M Ft
4 szoba
274 m2
Eladó családi ház
Eladó családi ház

Veszprémfajsz

149 M Ft
5 szoba
179 m2
Eladó családi ház
Eladó családi ház

Hegyeshalom

85 M Ft
4 + 1 szoba
123 m2
Eladó családi ház
Eladó családi ház

Kocsér

19.9 M Ft
1 + 2 szoba
73 m2
Eladó családi ház
Eladó családi ház

Újszilvás

9.5 M Ft
3 szoba
57 m2
Eladó családi ház
Eladó családi ház

Bakonycsernye

39 M Ft
3 szoba
350 m2