NapForrás 20 - Buda

Eladó családi ház
Iszkaszentgyörgy, földszint

+ 6 kép 1/9
62 900 000 Ft62.9 M Ft 925 000 Ft/m2
1 + 1 szoba
68 m²
földszint
építés éve:2026

Részletes adatok

Telekméret: 1000 m2
Fűtés: Egyéb
Emelet: földszint
Közmű: Víz, Gáz, Villany, Csatorna
Komfort: Összkomfortos
Energetikai besorolás: Nem adta meg a hirdető

Az OTP Bank lakáshitel ajánlataFizetett hirdetés

+36 20 558
Németh Zoltán
Uriel Hungary Kft.

Érdekel az OTP Bank kedvezményes lakáshitel ajánlata? *

* A kérdésre „Igen” válasz bejelölése esetén, az „Üzenet küldése” gombra kattintva kijelentem, hogy az OTP Bank Nyrt. Adatkezelési tájékoztatójának tartalmát megismertem és tudomásul vettem.

Eladó családi ház leírása

ISZKASZENTGYÖRGY, ÚJ ÉPÍTÉSŰ, BRUTTÓ 68,25 nm-ES HÁZ 1000 nm-ES TELKEN, 2 SZOBA + NAPPALI–KONYHA–ÉTKEZŐ elrendezésű

ÁTADÁS: 2026 DECEMBER

I.ár: 62.9 M Ft

Fontos: A képek referencia házról készültek. A meghirdetett ingatlan építés alatt van, várható átadás: 2026 december

FŐ PARAMÉTEREK
Új építésű családi ház Iszkaszentgyörgyön
Bruttó beépítés: 68,25 nm
Összes nettó alapterület (belső): 56,18 nm
Terasz: 31,50 nm
Épület nettó össz alapterület: 87,68 nm
Telek: 1000 nm
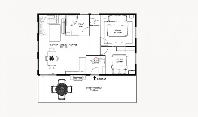
Elrendezés: 2 szoba + tágas nappali–konyha–étkező egyben

Könnyűszerkezetes technológia, jó energetikai adottságokkal

A HÁZRÓL
Az ingatlan tervezésekor a cél az volt, hogy egy kompakt, mégis tágas, élhető otthon szülessen, ahol a térkihasználás és a mindennapi kényelem egyszerre érvényesül. Ennek megfelelően a ház központja egy nagy, egybenyitott nappali–konyha–étkező tér, amely természetes közösségi pontja lehet a hétköznapoknak és a vendégfogadásnak is.
A fürdőszoba kényelmes méretű, a WC külön helyiségben található, kézmosó csappal.

Nettó méretek részletesen:
Előtér / szélfogó: 2,26 nm
Nappali–konyha–étkező: 28,34 nm
Szoba 1: 11,14 nm
Szoba 2: 7,94 nm
Fürdőszoba: 5,00 nm
WC: 1,5 nm
Összes nettó (belső): 56,18 nm
Terasz: 31,50 nm
Épület nettó össz alapterület: 87,68 nm
Bruttó beépítés: 68,25 nm

MŰSZAKI TARTALOM
Padlófűtés
Hőszivattyús split klíma beépítéssel
3 rétegű üvegezésű nyílászárók
Magas minőségű burkolatok és szaniterek (egyedi igény szerint, áregyeztetéssel választható/cserélhető)

TELEK, KERÍTÉS
A 1000 nm-es telek 3 oldalról beton oszlopos, drótkerítéses körbekerítést kap. A telek mérete kiváló: élhető kert, tér a pihenéshez, kerti programokhoz, ugyanakkor nem válik nehezen fenntarthatóvá.

ELHELYEZKEDÉS
Iszkaszentgyörgy kedvelt részén, egy újonnan kialakított lakóterületen épül összesen 8 db ház telekkel. Ez a meghirdetett otthon a 4. ház a fejlesztésben. A friss parcellázásnak köszönhetően egységes, modern lakóközösség alakul, rendezett utcaképpel és új szomszédsággal.

KINEK AJÁNLOM?
Pároknak vagy 1 gyermekes családoknak, akik új építésű, modern otthont keresnek
Azoknak, akik értékelik a város közelségét, de fontos számukra a nyugalom és a saját kert: Székesfehérvár kb. 15 perc, mégis egy csendes, zöldebb környezetben élhetnek
Olyan vevőknek is jó választás lehet, akik egy könnyen fenntartható, mégis kényelmes otthont keresnek

Amennyiben kérdése van, vagy szeretné a műszaki tartalmat, alaprajzot és az építési ütemezést átbeszélni, keressen bizalommal!

Fontos: A fényképek referencia házról készültek, a meghirdetett ingatlan építés alatt van. Várható átadás: 2026 DECEMBER

I.ár: 62.9 M Ft

Hirdetés feltöltve: 2026. 03. 24. Utoljára módosítva: 2026. 05. 29.

2 szobás családi házak ára Iszkaszentgyörgyön

Ebből az összehasonlításból megtudhatod, hogyan viszonyul a lakás ára a környékbeli családi házak átlagos árához. Ez nem azt jelenti, hogy ennyivel olcsóbb vagy drágább, mint amennyit a lakás ér, hanem hogy ennyivel tér el a környékbeli átlagtól.

Ennek a m² ára
Iszkaszentgyörgy m² ár
925 e Ft
594 e Ft -56%
Ennek az ára
Iszkaszentgyörgy átlagár
62.9 M Ft m Ft
64.6 m Ft 3%

Az ingatlan elhelyezkedése

Cím: Iszkaszentgyörgy, földszint

Eladó családi házak a környékről

Szabadbattyán
Eladó családi ház

Szabadbattyán

357.518 M Ft
9 + 2 szoba
1053 m²
Iszkaszentgyörgy
Eladó családi ház

Iszkaszentgyörgy

77.9 M Ft
4 szoba
105 m²
Iszkaszentgyörgy, Kossuth Lajos utca
Eladó családi ház

Iszkaszentgyörgy

45.5 M Ft
4 szoba
133 m²
Iszkaszentgyörgy
Eladó családi ház

Iszkaszentgyörgy

92 M Ft
5 szoba
166 m²
Iszkaszentgyörgy
Eladó családi ház

Iszkaszentgyörgy

9 M Ft
3 szoba
80 m²
Vértesacsa
Eladó családi ház

Vértesacsa

86 M Ft
3 + 1 szoba
123 m²
Székesfehérvár
Eladó családi ház

Székesfehérvár

59 M Ft
3 szoba
100 m²
Iszkaszentgyörgy
Eladó családi ház

Iszkaszentgyörgy

83.9 M Ft
5 szoba
120 m²
Alcsútdoboz, Szabadság utca
Eladó családi ház

Alcsútdoboz

320 M Ft
12 szoba
620 m²
Iszkaszentgyörgy
Eladó családi ház

Iszkaszentgyörgy

9 M Ft
3 szoba
80 m²
Iszkaszentgyörgy
Eladó családi ház

Iszkaszentgyörgy

83.9 M Ft
5 szoba
120 m²
Bicske, Baboshegy
Eladó családi ház

Bicske

26.9 M Ft
1 szoba
30 m²
Iszkaszentgyörgy, Kisiszka hegyi út
Eladó családi ház

Iszkaszentgyörgy

99 M Ft
4 szoba
130 m²
Iszkaszentgyörgy
Eladó családi ház

Iszkaszentgyörgy

109.9 M Ft
5 szoba
148 m²
Iszkaszentgyörgy
Eladó családi ház

Iszkaszentgyörgy

58 M Ft
2 szoba
109 m²
Iszkaszentgyörgy
Eladó családi ház

Iszkaszentgyörgy

81.9 M Ft
4 szoba
127 m²
Pusztaszabolcs
Eladó családi ház

Pusztaszabolcs

143.9 M Ft
4 szoba
149 m²
Iszkaszentgyörgy
Eladó családi ház

Iszkaszentgyörgy

58 M Ft
2 szoba
109 m²
Tabajd
Eladó családi ház

Tabajd

22 M Ft
3 szoba
75 m²
Iszkaszentgyörgy
Eladó családi ház

Iszkaszentgyörgy

45.5 M Ft
4 szoba
133 m²
Bakonycsernye
Eladó családi ház

Bakonycsernye

39 M Ft
3 szoba
350 m²
Mór
Eladó családi ház

Mór

110 M Ft
12 szoba
340 m²
Iszkaszentgyörgy
Eladó családi ház

Iszkaszentgyörgy

79.9 M Ft
4 szoba
127 m²
Gánt, Gánti út
Eladó családi ház

Gánt

29.9 M Ft
2 + 1 szoba
40 m²

Falusi CSOK ingatlanok

Darnózseli
Eladó családi ház

Darnózseli

69.9 M Ft
4 szoba
104 m²
Rakamaz
Eladó családi ház

Rakamaz

86.9 M Ft
5 szoba
280 m²
Szigliget, Soponyai út
Eladó ikerház

Szigliget

429 M Ft
7 + 2 szoba
212 m²
Örkény
Eladó családi ház

Örkény

37.9 M Ft
2 szoba
62 m²
Szabadbattyán
Eladó családi ház

Szabadbattyán

62 M Ft
5 szoba
210 m²
Újlengyel
Eladó családi ház

Újlengyel

75.9 M Ft
4 szoba
0 m²
Bak
Eladó családi ház

Bak

49.9 M Ft
5 szoba
140 m²
Kaposgyarmat
Eladó családi ház

Kaposgyarmat

695 M Ft
6 szoba
610 m²