Eladó családi ház
Isaszeg

+ 17 kép 1/20
127 000 000 Ft127 M Ft 690 217 Ft/m2
4 szoba
184 m2
építés éve:2002

Részletes adatok

Telekméret: 715 m2
Fűtés: Gázkazán
Energetikai besorolás: Nem adta meg a hirdető

Az OTP Bank lakáshitel ajánlataFizetett hirdetés

+36 30 439
Szilveszter Noémi
Szigetszentmiklós OTP Ip

Érdekel az OTP Bank kedvezményes lakáshitel ajánlata? *

* A kérdésre „Igen” válasz bejelölése esetén, az „Üzenet küldése” gombra kattintva kijelentem, hogy az OTP Bank Nyrt. Adatkezelési tájékoztatójának tartalmát megismertem és tudomásul vettem.

Eladó családi ház leírása

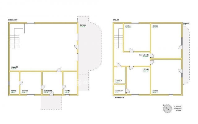
Pest vármegye, Isaszeg - csendes, családbarát környéken eladó egy tágas, 184,5 nm-es családi ház!

Eladásra kínálok Isaszeg egyik legkedveltebb részén, nyugodt és rendezett utcában egy 2002-ben épült, kétszintes, 4 szobás családi házat. Az ingatlan 715 nm-es telken fekszik, és kiváló választás mindazoknak, akik szeretnének biztonságos, barátságos környezetben élni, mégis könnyen elérni a fővárost.

A ház tágas és élhető elrendezésű: a földszinten nagy, 65 nm-es nappali adja az otthon központját - ideális közös családi időtöltésre, vendégek fogadására vagy akár játékra a gyerekekkel. A földszinten található még egy praktikus konyha, kamra, fürdőszoba, valamint egy hangulatos, terasz, ahol kényelmesen lehet reggelizni vagy pihenni a kertre nézve.

Az emeleten három külön nyíló hálószoba, egy tágas fürdőszoba, illetve egy szauna kialakítására előkészített helyiség is helyet kapott. A szobák világosak, jól bútorozhatók, a teraszkapcsolat itt is biztosított.

A ház összközműves, tehermentes, CSOK Plusz, Babaváró vagy piaci hitel igénybevételével is megvásárolható. Kívül-belül jó állapotú, folyamatosan karbantartott otthon, amely azonnal költözhető. A képeken látható bútorzat megállapodás kérdése.

A környék rendezett, csendes, biztonságos - a közvetlen szomszédok barátságosak, sőt, két rendőr is van köztük, ami tovább növeli a biztonságérzetet. Az egész utca újszerű, családias hangulatú, ideális kisgyermekeseknek is.

Ez a ház tökéletes választás, ha szeretne tágas, kényelmes otthont Isaszeg egyik legjobb részén - közel a természethez, mégis minden fontos szolgáltatás elérhető közelségében.

Megtekintéssel kapcsolatban keressen bizalommal, rugalmasan tudom mutatni előzetes egyeztetés alapján.
A vásárláshoz az OTP Bank pénzügyi szolgáltatásait ajánlom (CSOK Plusz, Babaváró, piaci hitelek), melyek kedvezményes igénylésében is szívesen segítek!

Hirdetés feltöltve: 2025. 10. 13.

4 szobás családi házak ára Isaszegen

Ebből az összehasonlításból megtudhatod, hogyan viszonyul a lakás ára a környékbeli családi házak átlagos árához. Ez nem azt jelenti, hogy ennyivel olcsóbb vagy drágább, mint amennyit a lakás ér, hanem hogy ennyivel tér el a környékbeli átlagtól.

Ennek a m² ára
Isaszeg m² ár
690 e Ft
609 e Ft -13%
Ennek az ára
Isaszeg átlagár
127 M Ft m Ft
96.6 m Ft -31%

Az ingatlan elhelyezkedése

Cím: Isaszeg

Eladó családi házak a környékről

Eladó családi ház
Eladó családi ház

Érd

382 M Ft
6 szoba
420 m2
Eladó családi ház
Eladó családi ház

Isaszeg, Dózsa György utca 7

39.9 M Ft
2 + 2 szoba
117 m2
Eladó családi ház
Eladó családi ház

Isaszeg, Rákóczi utca

99 M Ft
4 szoba
285 m2
Eladó családi ház
Eladó családi ház

Szigetszentmiklós, Városközpont, Tököli út közeli utca

120 M Ft
7 szoba
525 m2
Eladó családi ház
Eladó családi ház

Gyál, Gyál út

169.9 M Ft
2 szoba
90 m2
Eladó családi ház
Eladó családi ház

Isaszeg

80 M Ft
4 + 2 szoba
215 m2
Eladó családi ház
Eladó családi ház

Isaszeg, Ady Endre utca közelében

129.9 M Ft
5 + 1 szoba
190 m2
Eladó családi ház
Eladó családi ház

Isaszeg

149 M Ft
8 szoba
270 m2
Eladó családi ház
Eladó családi ház

Tápiószentmárton

7.9 M Ft
2 + 1 szoba
86 m2
Eladó családi ház
Eladó családi ház

Isaszeg

129.9 M Ft
7 szoba
190 m2
Eladó családi ház
Eladó családi ház

Isaszeg

43.5 M Ft
2 szoba
48 m2
Eladó családi ház
Eladó családi ház

Isaszeg

87.99 M Ft
5 + 1 szoba
200 m2
Eladó családi ház
Eladó családi ház

Isaszeg

43.5 M Ft
2 szoba
48 m2
Eladó családi ház
Eladó családi ház

Isaszeg

130 M Ft
4 szoba
184 m2
Eladó családi ház
Eladó családi ház

Tápiószele

37.9 M Ft
4 szoba
141 m2
Eladó családi ház
Eladó családi ház

Isaszeg

32 M Ft
2 szoba
50 m2
Eladó családi ház
Eladó családi ház

Isaszeg

48 M Ft
3 szoba
48 m2
Eladó családi ház
Eladó családi ház

Sződ, Rátóti utca

149.99 M Ft
11 szoba
270 m2
Eladó családi ház
Eladó családi ház

Isaszeg

48 M Ft
6 + 1 szoba
190 m2
Eladó családi ház
Eladó családi ház

Dunavarsány

69.9 M Ft
3 + 1 szoba
140 m2
Eladó családi ház
Eladó családi ház

Budaörs, Bányász utca

385 M Ft
6 szoba
300 m2
Eladó családi ház
Eladó családi ház

Budaörs, Odvshegy utca

268.9 M Ft
5 szoba
235 m2
Eladó családi ház
Eladó családi ház

Isaszeg

108 M Ft
4 szoba
197 m2
Eladó családi ház
Eladó családi ház

Isaszeg

135 M Ft
4 szoba
300 m2

Falusi CSOK ingatlanok

Eladó családi ház
Eladó családi ház

Segesd

3.9 M Ft
2 szoba
65 m2
Eladó családi ház
Eladó családi ház

Dióskál

20 M Ft
2 szoba
102 m2
Eladó családi ház
Eladó családi ház

Szenyér

8.9 M Ft
2 szoba
67 m2
Eladó családi ház
Eladó családi ház

Vásárosdombó

14.99 M Ft
2 szoba
69 m2
Eladó családi ház
Eladó családi ház

Galgagyörk

46.9 M Ft
4 szoba
105 m2
Eladó családi ház
Eladó családi ház

Liszó

35 M Ft
2 szoba
87 m2
Eladó családi ház
Eladó családi ház

Becsehely

18 M Ft
4 szoba
134 m2
Eladó családi ház
Eladó családi ház

Gáborján

5.5 M Ft
2 szoba
68 m2