Astora Art House

Eladó családi ház
Inárcs

+ 9 kép 1/12
84 900 000 Ft84.9 M Ft 866 327 Ft/m2
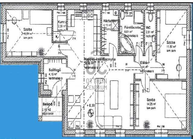
4 szoba
98 m2
építés éve:2026

Részletes adatok

Telekméret: 725 m2
Fűtés: Egyéb
Közmű: Villany, Csatorna
Energetikai besorolás: Nem adta meg a hirdető

Az OTP Bank lakáshitel ajánlataFizetett hirdetés

+36 70 465
Pomucz-Nagy Anita
referens

Érdekel az OTP Bank kedvezményes lakáshitel ajánlata? *

* A kérdésre „Igen” válasz bejelölése esetén, az „Üzenet küldése” gombra kattintva kijelentem, hogy az OTP Bank Nyrt. Adatkezelési tájékoztatójának tartalmát megismertem és tudomásul vettem.

Eladó családi ház leírása

Központi elhelyezkedéssel, kiváló műszaki tartalommal és igényes kialakítással kínáljuk megvételre ezt az új építésű családi ikerházat Inárcson.

FÖLDSZINTES! - legkeresettebb kialakítás!
Akár Otthon Start 3%-os hitellel!

Csendes, barátságos utcájában, a természet közelségével és a béke nyugalmával ölelve várja új tulajdonosát ez az új építésű családi ház.
Egy ház, amely nemcsak falakból és tetőből áll – hanem a leendő családi történetek, közös reggelek és napsütötte délutánok ígéretéből.

A két ingatlan csupán a fedett kocsibeállónál érintkezik, nincs közös falszakasz és nincs átjárás, így a saját tér, a saját nyugalmas otthon teljesen adott.

Főbb jellemzők:
Hasznos alapterület: 98 m²
A házhoz tartozó telekrész: 725 m²
Terasz: 20,57 m²

Műszaki tartalom:
- Falazat: 30 cm Porotherm
- Válaszfalak: 10 cm Ytong
- Homlokzati szigetelés: 15 cm
- Födémszigetelés: 25 cm
- Tető: antracit színű betoncserép
- Homlokzat: modern, fehér kialakítás
- Nyílászárók: háromrétegű műanyag ablakok
- Bejárati ajtó: minőségi, biztonságos kivitel
- Hőszivattyús padlófűtés a teljes házban
- 3,5 kW-os hűtő-fűtő klíma beépítve

Biztonság és közművek
- Riasztókiállás előkészítve
- Teljes közművesítés
- Gáz a telken belül
- Elektromos kapu
- Térkövezett udvar

Választható burkolatok és felszerelések (az alábbi értékhatárokig választhatók egyedi igények szerint):
- Hidegburkolatok: 7 000 Ft/m²
- Melegburkolatok: 7 000 Ft/m²
- Beltéri ajtók: 45 000 Ft/db
- Szaniterek: 50 000 Ft/db
- Kád: 85 000 Ft
- Zuhanytelep: 60 000 Ft
- 2 db Geberit WC összesen: 140 000 Ft
- 50 db kapcsoló / ingatlan
- Kültéri fali karos lámpák: 8 000 Ft/db

Kivitelezés
A munkálatokat megbízható, referenciákkal rendelkező kivitelező végzi, garantálva a magas minőséget és a precíz megvalósítást.
Az ár a befejezett állapotra vonatkozik.
Tervezett átadás: 2026.03

Megtekintés céljából keressen bizalommal!

Hirdetés feltöltve: 2025. 12. 02. Utoljára módosítva: 2026. 01. 13.

4 szobás családi házak ára Inárcson

Ebből az összehasonlításból megtudhatod, hogyan viszonyul a lakás ára a környékbeli családi házak átlagos árához. Ez nem azt jelenti, hogy ennyivel olcsóbb vagy drágább, mint amennyit a lakás ér, hanem hogy ennyivel tér el a környékbeli átlagtól.

Ennek a m² ára
Inárcs m² ár
866 e Ft
169 e Ft -413%
Ennek az ára
Inárcs átlagár
84.9 M Ft m Ft
24.2 m Ft -251%

Az ingatlan elhelyezkedése

Cím: Inárcs

Eladó családi házak a környékről

Eladó családi ház
Eladó családi ház

Tápiószentmárton

48 M Ft
5 szoba
180 m2
Eladó családi ház
Eladó családi ház

Inárcs

135 M Ft
5 szoba
144 m2
Eladó családi ház
Eladó családi ház

Budakeszi, Budakeszi kertváros

229 M Ft
10 szoba
450 m2
Eladó családi ház
Eladó családi ház

Tápiószele

18.9 M Ft
4 szoba
68 m2
Eladó családi ház
Eladó családi ház

Tápiószőlős

34.9 M Ft
5 szoba
210 m2
Eladó családi ház
Eladó családi ház

Tápiógyörgye

19.9 M Ft
3 szoba
65 m2
Eladó családi ház
Eladó családi ház

Budakeszi, Makkosmária

100 M Ft
1 szoba
10 m2
Eladó családi ház
Eladó családi ház

Inárcs

54.9 M Ft
3 szoba
89 m2
Eladó családi ház
Eladó családi ház

Érd, Érdliget - Kutyavár, Érd-liget

230 M Ft
7 szoba
280 m2
Eladó családi ház
Eladó családi ház

Inárcs

129.9 M Ft
6 szoba
226 m2
Eladó családi ház
Eladó családi ház

Tápiószentmárton

7.9 M Ft
2 + 1 szoba
86 m2
Eladó családi ház
Eladó családi ház

Tápiószele

45 M Ft
6 szoba
360 m2
Eladó családi ház
Eladó családi ház

Inárcs

54.9 M Ft
3 szoba
89 m2
Eladó családi ház
Eladó családi ház

Inárcs

54.9 M Ft
3 szoba
89 m2
Eladó családi ház
Eladó családi ház

Zebegény

69.9 M Ft
6 szoba
245 m2
Eladó családi ház
Eladó családi ház

Inárcs

74.9 M Ft
7 szoba
139 m2
Eladó családi ház
Eladó családi ház

Érd

164.9 M Ft
5 szoba
192 m2
Eladó családi ház
Eladó családi ház

Dunakeszi

250 M Ft
4 szoba
180 m2
Eladó családi ház
Eladó családi ház

Inárcs

54.5 M Ft
3 szoba
90 m2
Eladó családi ház
Eladó családi ház

Inárcs

74.999 M Ft
5 + 1 szoba
215 m2
Eladó családi ház
Eladó családi ház

Inárcs

123 M Ft
4 + 1 szoba
144 m2
Eladó családi ház
Eladó családi ház

Kerepes

81.99 M Ft
5 szoba
102 m2
Eladó családi ház
Eladó családi ház

Kerepes

199 M Ft
6 szoba
360 m2
Eladó családi ház
Eladó családi ház

Inárcs

54.9 M Ft
3 szoba
89 m2

Falusi CSOK ingatlanok

Eladó családi ház
Eladó családi ház

Kesztölc

129.9 M Ft
8 szoba
210 m2
Eladó családi ház
Eladó családi ház

Bogács

36.8 M Ft
2 szoba
64 m2
Eladó családi ház
Eladó családi ház

Szabadbattyán

163.99 M Ft
5 szoba
255 m2
Eladó családi ház
Eladó családi ház

Szakmár

12.9 M Ft
3 + 1 szoba
90 m2
Eladó családi ház
Eladó családi ház

Rábapaty

99.99 M Ft
5 szoba
132 m2
Eladó családi ház
Eladó családi ház

Máriahalom

29.9 M Ft
3 szoba
83 m2
Eladó családi ház
Eladó családi ház

Bogács

62 M Ft
3 szoba
66 m2
Eladó családi ház
Eladó családi ház

Pusztamonostor

22 M Ft
3 szoba
86 m2