Astora Márvány8

Eladó családi ház
Hatvan

+ 17 kép 1/20
45 000 000 Ft45 M Ft 335 821 Ft/m2
3 + 1 szoba
134 m²
építés éve:1981

Részletes adatok

Állapot: Felújítandó
Telekméret: 630 m2
Fűtés: Gázkonvektor
Parkolás: Garázs
Energetikai besorolás: Nem adta meg a hirdető
Zenga Premier

Friss hirdetések, amiket nem találsz meg más ingatlankereső portálon.

Fedezd fel elsőként a Zenga Premier címkés eladó ingatlanokat!

További részletek a zenga.hu-n

Az OTP Bank lakáshitel ajánlataFizetett hirdetés

+36 20 426
Gulyás Gáborné
referens

Érdekel az OTP Bank kedvezményes lakáshitel ajánlata? *

* A kérdésre „Igen” válasz bejelölése esetén, az „Üzenet küldése” gombra kattintva kijelentem, hogy az OTP Bank Nyrt. Adatkezelési tájékoztatójának tartalmát megismertem és tudomásul vettem.

Eladó családi ház leírása

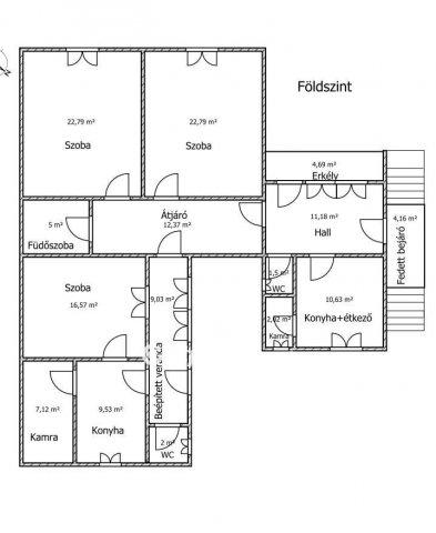
Heves megye, Hatvan Új-Hatvan városrészben, eladása kínálok, egy felújítandó, 80-as években épült, stabil, 2 lakrészből álló családi házat. A fő épület 90 m2, B-30-as téglából épült, beton födémes, melyben 2 nagy szoba, hall, konyha-étkező, spájz, üvegezett előtér, fürdőszoba és külön WC található. A hátsó 44 m2-es, korábban épült traktusban szoba, konyha, kamra, WC található. A ház elülső része alatt 24 m2 mélygarázs, 22 m2 pince helyezkedik el. Az épület alkalmas több generáció együtt élésére. A telek hátsó részében egy második garázs, 15 m2-es kamra, alatta 9 m2 zöldséges pince, valamint 20 m2 műhely található. Az otthon melegéről gázkonvektor, míg a meleg vízről bojler gondoskodik. A bevezetett 380 V ipari áram vállalkozáshoz ad segítséget. A kertben gyümölcsfák és konyhakerti növények termesztéséhez használható területek állnak rendelkezésre. A telek területe 630 m2. Költözhető, tehermentes ingatlan. Ha egy barátságos otthont szeretne, jó szomszédokkal, jöjjön, tekintse meg! Ingatlanirodánk ügyvédi háttérrel, CSOK, babaváró hitel, "Otthon Start Hitelprogram", valamint kamatkedvezményes hitel ügyintézésével támogatja ügyfelei ingatlanvásárlását. Ingyenes banki segítség! Hívjon bizalommal!

Hirdetés feltöltve: 2026. 04. 01. Utoljára módosítva: 2026. 04. 01.

4 szobás családi házak ára Hatvanban

Ebből az összehasonlításból megtudhatod, hogyan viszonyul a lakás ára a környékbeli családi házak átlagos árához. Ez nem azt jelenti, hogy ennyivel olcsóbb vagy drágább, mint amennyit a lakás ér, hanem hogy ennyivel tér el a környékbeli átlagtól.

Ennek a m² ára
Hatvan m² ár
336 e Ft
582 e Ft 42%
Ennek az ára
Hatvan átlagár
45 M Ft m Ft
76.7 m Ft 41%

Az ingatlan elhelyezkedése

Cím: Hatvan

Eladó családi házak a környékről

Hatvan
Eladó családi ház

Hatvan

75 M Ft
3 szoba
100 m²
Hatvan
Eladó családi ház

Hatvan

75 M Ft
3 szoba
100 m²
Andornaktálya
Eladó családi ház

Andornaktálya

42 M Ft
4 szoba
116 m²
Hatvan
Eladó családi ház

Hatvan

79.9 M Ft
4 szoba
125 m²
Gyöngyös
Eladó családi ház

Gyöngyös

940 M Ft
1 szoba
4000 m²
Andornaktálya
Eladó családi ház

Andornaktálya

42.5 M Ft
3 szoba
115 m²
Bükkszék
Eladó családi ház

Bükkszék

69 M Ft
5 szoba
240 m²
Recsk
Eladó családi ház

Recsk

23.5 M Ft
1 + 2 szoba
72 m²
Hatvan, Dembinszky utca
Eladó családi ház

Hatvan

13.99 M Ft
2 szoba
55 m²
Hatvan
Eladó családi ház

Hatvan

33.99 M Ft
2 + 1 szoba
69 m²
Besenyőtelek
Eladó családi ház

Besenyőtelek

67 M Ft
5 szoba
107 m²
Hatvan
Eladó családi ház

Hatvan

62 M Ft
5 szoba
193 m²
Andornaktálya
Eladó családi ház

Andornaktálya

28.5 M Ft
2 szoba
60 m²
Bükkszék
Eladó családi ház

Bükkszék

44.9 M Ft
3 + 2 szoba
114 m²
Hatvan, Rákóczi út
Eladó családi ház

Hatvan

95 M Ft
4 szoba
100 m²
Hatvan, Fecske utca 7
Eladó családi ház

Hatvan

82.5 M Ft
5 szoba
240 m²
Bükkszék
Eladó családi ház

Bükkszék

44.9 M Ft
3 + 2 szoba
114 m²
Hatvan
Eladó családi ház

Hatvan

33.99 M Ft
2 + 1 szoba
69 m²
Bodony
Eladó családi ház

Bodony

19.5 M Ft
3 szoba
95 m²
Hatvan
Eladó családi ház

Hatvan

75 M Ft
3 szoba
100 m²
Egerbakta
Eladó családi ház

Egerbakta

36.5 M Ft
5 szoba
120 m²
Hatvan
Eladó családi ház

Hatvan

55 M Ft
2 + 2 szoba
119 m²
Hatvan
Eladó családi ház

Hatvan

55 M Ft
2 + 2 szoba
119 m²
Hatvan
Eladó családi ház

Hatvan

33.99 M Ft
2 + 1 szoba
69 m²

Falusi CSOK ingatlanok

Bozsok
Eladó családi ház

Bozsok

290 M Ft
6 szoba
370 m²
Szigetcsép, Rákóczi utca
Eladó családi ház

Szigetcsép

63 M Ft
4 szoba
89 m²
Pécsvárad, Kossuth Lajos utca
Eladó téglalakás

Pécsvárad

64.99 M Ft
3 szoba
89 m²
Ostffyasszonyfa
Eladó családi ház

Ostffyasszonyfa

37.9 M Ft
5 szoba
494 m²
Bogács
Eladó családi ház

Bogács

64.95 M Ft
7 szoba
125 m²
Nagyréde
Eladó családi ház

Nagyréde

69.5 M Ft
4 szoba
110 m²
Mád
Eladó családi ház

Mád

48 M Ft
3 szoba
181 m²
Onga
Eladó családi ház

Onga

52.9 M Ft
5 szoba
110 m²