City Pearl

Eladó családi ház
Hajdúsámson, Szűcs utca

+ 5 kép 1/8
57 000 000 Ft57 M Ft 570 000 Ft/m2
3 + 1 szoba
100 m2
építés éve:2025

Részletes adatok

Állapot: Újszerű
Telekméret: 500 m2
Fűtés: Geotermikus
Kilátás: Udvari, Utcai, Kertre néz
Parkolás: Garázs, Kocsibeálló
Közmű: Víz, Villany
Övezet: Lakóövezet
Energetikai besorolás: A+

Az OTP Bank lakáshitel ajánlataFizetett hirdetés

+36 30 655
Nagy Ibolya
referens

Érdekel az OTP Bank kedvezményes lakáshitel ajánlata? *

* A kérdésre „Igen” válasz bejelölése esetén, az „Üzenet küldése” gombra kattintva kijelentem, hogy az OTP Bank Nyrt. Adatkezelési tájékoztatójának tartalmát megismertem és tudomásul vettem.

Eladó családi ház leírása

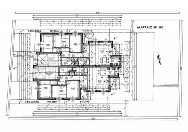
Debrecen vonzáskörzetében, Hajdúsámson-Sámsonkert fejlődő részén, 120 méterre a Szűcs utcától, eladó ez az új építésű egyszintes 108 nm-es iker ház, saját 457 nm-es telek résszel, garázzsal. Még választható, hogy melyik részt szeretné! Az épület négyzetméter ára csak 500 ezer Ft.! A 23 méteres utcafrontú telek is kedvezményes árú, csak 12,9 millió Ft./ház! Tartalmaz: előszoba, 3 db. külön nyíló szoba, egy fürdőszoba, sarokkáddal, WC-vel, zuhannyal, egy külön WC., egy háztartási helyiség, mely lehet mosókonyha is, nappali étkező konyha, mely együtt 38 nm-es, innen nyílóan egy terasz.

Az ingatlan Porotherm 30-as NF téglából, 15 cm-es külső, 30 cm födém-, 12 cm aljzatszigeteléssel, 5 légkamrás, 3 rétegű nyílászárókkal épül, tervezett fűtése hőszivattyúval történik padlófűtéssel.

Befejezve, kulcsra készen legkésőbb 2026. 08. 30-ra kész, az ár most még 69,9 millió Ft. Jöjjön, foglalózza le! Debrecenben egy 70 nm-es panel lakás vehető meg ennyiért, garázs nélkül! A 3 %-os Start Hitel, csok + igényelhető! Referenciával rendelkező építtető! Érd.: 06706055739

Hirdetés feltöltve: 2025. 12. 01. Utoljára módosítva: 2025. 12. 08.

4 szobás családi házak ára Hajdúsámsonon

Ebből az összehasonlításból megtudhatod, hogyan viszonyul a lakás ára a környékbeli családi házak átlagos árához. Ez nem azt jelenti, hogy ennyivel olcsóbb vagy drágább, mint amennyit a lakás ér, hanem hogy ennyivel tér el a környékbeli átlagtól.

Ennek a m² ára
Hajdúsámson m² ár
570 e Ft
756 e Ft 25%
Ennek az ára
Hajdúsámson átlagár
57 M Ft m Ft
82.6 m Ft 31%

Az ingatlan elhelyezkedése

Cím: Hajdúsámson, Szűcs utca

Eladó családi házak a környékről

Eladó családi ház
Eladó családi ház

Hajdúsámson

78.422 M Ft
5 szoba
133 m2
Eladó családi ház
Eladó családi ház

Püspökladány

49.8 M Ft
5 szoba
150 m2
Eladó családi ház
Eladó családi ház

Debrecen, Kádár dűlő

150 M Ft
4 szoba
140 m2
Eladó családi ház
Eladó családi ház

Hajdúsámson

75 M Ft
6 szoba
150 m2
Eladó családi ház
Eladó családi ház

Hajdúsámson

29.9 M Ft
1 szoba
40 m2
Eladó családi ház
Eladó családi ház

Debrecen

66.9 M Ft
3 szoba
85 m2
Eladó családi ház
Eladó családi ház

Hajdúsámson

33.99 M Ft
2 szoba
60 m2
Eladó családi ház
Eladó családi ház

Hajdúsámson

34 M Ft
4 szoba
65 m2
Eladó családi ház
Eladó családi ház

Szentpéterszeg

47 M Ft
3 szoba
92 m2
Eladó családi ház
Eladó családi ház

Debrecen

105 M Ft
3 szoba
120 m2
Eladó családi ház
Eladó családi ház

Debrecen, Lencztelep, Szeged utca

129.9 M Ft
7 szoba
240 m2
Eladó családi ház
Eladó családi ház

Hajdúdorog, Templom utca

95 M Ft
9 szoba
270 m2
Eladó családi ház
Eladó családi ház

Hajdúsámson, Árpád út

55 M Ft
2 szoba
62 m2
Eladó családi ház
Eladó családi ház

Debrecen

13.9 M Ft
2 szoba
56 m2
Eladó családi ház
Eladó családi ház

Hajdúsámson

34 M Ft
4 szoba
65 m2
Eladó családi ház
Eladó családi ház

Debrecen, Haláp Tanya

361.95 M Ft
10 szoba
500 m2
Eladó családi ház
Eladó családi ház

Hajdúszoboszló

49.9 M Ft
5 szoba
160 m2
Eladó családi ház
Eladó családi ház

Hajdúsámson

49.9 M Ft
6 szoba
175 m2
Eladó családi ház
Eladó családi ház

Hajdúsámson

90 M Ft
4 szoba
135 m2
Eladó családi ház
Eladó családi ház

Derecske

24.9 M Ft
2 szoba
67 m2
Eladó családi ház
Eladó családi ház

Hajdúsámson

74.782 M Ft
5 szoba
133 m2
Eladó családi ház
Eladó családi ház

Balmazújváros

104.9 M Ft
3 szoba
172 m2
Eladó családi ház
Eladó családi ház

Hajdúsámson

73.099 M Ft
5 szoba
133 m2
Eladó családi ház
Eladó családi ház

Hajdúsámson

76.966 M Ft
5 szoba
133 m2

Falusi CSOK ingatlanok

Eladó családi ház
Eladó családi ház

Iváncsa

73.9 M Ft
1 + 3 szoba
97 m2
Eladó ikerház
Eladó ikerház

Alcsútdoboz, Külterület

37.5 M Ft
2 szoba
80 m2
Eladó családi ház
Eladó családi ház

Somogygeszti

38.6 M Ft
3 + 1 szoba
98 m2
Eladó családi ház
Eladó családi ház

Háromfa, Kossuth

22.4 M Ft
139 m2
Eladó családi ház
Eladó családi ház

Somogysárd

31 M Ft
3 szoba
68 m2
Eladó családi ház
Eladó családi ház

Tapsony

23.8 M Ft
3 szoba
130 m2
Eladó családi ház
Eladó családi ház

Tápióság

30 M Ft
3 szoba
67 m2
Eladó családi ház
Eladó családi ház

Tápiógyörgye

22.9 M Ft
3 szoba
120 m2