Eladó családi ház
Hajdúhadház, 10 felett

+ 9 kép 1/12
37 500 000 Ft37.5 M Ft 480 769 Ft/m2
3 szoba
78 m2
10 felett
építés éve:1970

Részletes adatok

Állapot: Átlagos
Telekméret: 730 m2
Fűtés: Gázkazán
Energetikai besorolás: Nem adta meg a hirdető

Az OTP Bank lakáshitel ajánlataFizetett hirdetés

+36 70 708
Gorzsás Zsuzsanna
Városi Ingatlaniroda - VING

Érdekel az OTP Bank kedvezményes lakáshitel ajánlata? *

* A kérdésre „Igen” válasz bejelölése esetén, az „Üzenet küldése” gombra kattintva kijelentem, hogy az OTP Bank Nyrt. Adatkezelési tájékoztatójának tartalmát megismertem és tudomásul vettem.

Eladó családi ház leírása

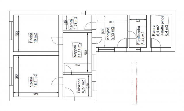
Hajdúhadház csendes, központhoz közeli utcájában eladó egy 78 m² alapterületű, 3 szobás családi ház, rendezett, körbekerített telken, nyugodt környéken.
Az ingatlan összközműves, tehermentes, aszfaltozott utcában található, folyamatosan karbantartott, jó állapotú, masszív szerkezetű épület.
Főbb jellemzők:
• 1960-as években épült terméskő alapra, vályog falazattal, palatetővel
• 1970-es években bővítve beton alappal, B30-as tégla falazattal
• Fűtés: gázkazán + radiátorok, valamint cserépkályha (átlagos téli költség: kb. 15.000 Ft/hó)
• Nyílászárók: korszerű, műanyag hőszigetelt, redőnnyel és szúnyoghálóval
• Burkolatok: hajópadló, laminált padló, járólap – a vizesblokkok és burkolatok kb. 15 éve lettek felújítva
• Praktikus, egyedi konyhabútor az ár részét képezi
• 5 m² száraz pince
• Nyári konyha + zárható és nyitott tárolók (kb. 30 m²)
• Kisállattartásra alkalmas épületek
• Ásott kút az öntözéshez
• Dísznövények, rózsák, magnóliafa és termő szőlőlugas

A ház elhelyezkedése kiváló: óvoda, iskola, orvosi rendelő, tömegközlekedés és a városközpont 5-10 perc sétával elérhető.

Ez az ingatlan ideális választás lehet családoknak, akik jó állapotú, azonnal költözhető otthont keresnek Hajdúhadházon. A családi ház megfelel az Otthonteremtési támogatások feltételeinek, így CSOK és Otthon Start hitel igénybevételére is alkalmas!

Az ingatlan rugalmasan megtekinthető. Jöjjön, nézze meg, hívjon még ma időpont egyeztetés miatt.

Hirdetés feltöltve: 2025. 09. 23. Utoljára módosítva: 2025. 10. 09.

3 szobás családi házak ára Hajdúhadházon

Ebből az összehasonlításból megtudhatod, hogyan viszonyul a lakás ára a környékbeli családi házak átlagos árához. Ez nem azt jelenti, hogy ennyivel olcsóbb vagy drágább, mint amennyit a lakás ér, hanem hogy ennyivel tér el a környékbeli átlagtól.

Ennek a m² ára
Hajdúhadház m² ár
481 e Ft
411 e Ft -17%
Ennek az ára
Hajdúhadház átlagár
37.5 M Ft m Ft
42.2 m Ft 11%

Az ingatlan elhelyezkedése

Cím: Hajdúhadház, 10 felett

Eladó családi házak a környékről

Eladó családi ház
Eladó családi ház

Debrecen

13.9 M Ft
2 szoba
56 m2
Eladó családi ház
Eladó családi ház

Hajdúsámson

48.5 M Ft
2 szoba
75 m2
Eladó családi ház
Eladó családi ház

Debrecen

590 M Ft
8 szoba
740 m2
Eladó családi ház
Eladó családi ház

Hajdúhadház

49.9 M Ft
3 szoba
106 m2
Eladó családi ház
Eladó családi ház

Debrecen

105 M Ft
3 szoba
120 m2
Eladó családi ház
Eladó családi ház

Hajdúhadház

47.5 M Ft
3 szoba
100 m2
Eladó családi ház
Eladó családi ház

Hajdúhadház

55 M Ft
4 szoba
125 m2
Eladó családi ház
Eladó családi ház

Hajdúhadház, Kiss Ernő utca

14 M Ft
3 szoba
75 m2
Eladó családi ház
Eladó családi ház

Derecske

24.9 M Ft
2 szoba
67 m2
Eladó családi ház
Eladó családi ház

Püspökladány, Kiss Ferenc utca

49.8 M Ft
5 szoba
150 m2
Eladó családi ház
Eladó családi ház

Hajdúhadház

49.9 M Ft
3 szoba
106 m2
Eladó családi ház
Eladó családi ház

Hajdúhadház

56 M Ft
1 + 3 szoba
187 m2
Eladó családi ház
Eladó családi ház

Debrecen

147 M Ft
5 szoba
191 m2
Eladó családi ház
Eladó családi ház

Hajdúhadház

44.9 M Ft
4 szoba
93 m2
Eladó családi ház
Eladó családi ház

Debrecen

84.9 M Ft
3 szoba
84 m2
Eladó családi ház
Eladó családi ház

Hajdúhadház

49.9 M Ft
3 szoba
106 m2
Eladó családi ház
Eladó családi ház

Hajdúhadház

23.999 M Ft
3 szoba
67 m2
Eladó családi ház
Eladó családi ház

Hajdúhadház

47.5 M Ft
3 szoba
100 m2
Eladó családi ház
Eladó családi ház

Debrecen

245 M Ft
5 + 1 szoba
275 m2
Eladó családi ház
Eladó családi ház

Püspökladány

89.999 M Ft
4 + 2 szoba
264 m2
Eladó családi ház
Eladó családi ház

Hajdúhadház

56 M Ft
1 + 3 szoba
187 m2
Eladó családi ház
Eladó családi ház

Püspökladány, Sárrét utca

59.6 M Ft
4 szoba
165 m2
Eladó családi ház
Eladó családi ház

Hajdúhadház

36 M Ft
4 szoba
187 m2
Eladó családi ház
Eladó családi ház

Debrecen

150 M Ft
7 szoba
300 m2

Falusi CSOK ingatlanok

Eladó családi ház
Eladó családi ház

Nemeskeresztúr, Petőfi utca 22

6.85 M Ft
1 + 1 szoba
99 m2
Eladó családi ház
Eladó családi ház

Alattyán

8.5 M Ft
1 + 1 szoba
70 m2
Eladó családi ház
Eladó családi ház

Kerkaszentkirály, Béke utca 80

21.05 M Ft
1 + 1 szoba
165 m2
Eladó családi ház
Eladó családi ház

Makád

32.8 M Ft
4 szoba
141 m2
Eladó családi ház
Eladó családi ház

Pusztamonostor

22 M Ft
3 szoba
86 m2
Eladó családi ház
Eladó családi ház

Újszilvás

9.5 M Ft
3 szoba
57 m2
Eladó családi ház
Eladó családi ház

Tök

125.4 M Ft
4 szoba
135 m2
Eladó családi ház
Eladó családi ház

Tápióbicske

12.5 M Ft
2 szoba
51 m2