NapForrás 20 - Buda

Eladó családi ház
Hajdúböszörmény

+ 17 kép 1/20
49 990 000 Ft49.99 M Ft 602 289 Ft/m2
3 szoba
83 m2
építés éve:1970

Részletes adatok

Telekméret: 445 m2
Fűtés: Házközponti
Energetikai besorolás: Nem adta meg a hirdető

Az OTP Bank lakáshitel ajánlataFizetett hirdetés

+36 70 770
Buzainé Ferencz Anikó
Debrecen Kürtös utca

Érdekel az OTP Bank kedvezményes lakáshitel ajánlata? *

* A kérdésre „Igen” válasz bejelölése esetén, az „Üzenet küldése” gombra kattintva kijelentem, hogy az OTP Bank Nyrt. Adatkezelési tájékoztatójának tartalmát megismertem és tudomásul vettem.

Eladó családi ház leírása

Hajdúböszörményben, a Báthory Gábor körút egyik csendes, családosok által kedvelt zugában eladó egy teljes körűen felújított családi ház, amely ideális választás lehet mindazok számára, akik nyugalmat és biztonságot keresnek, mégis könnyen elérhető közelségben a város kényelmével.

* Telek: 455 m2 téglalap alakú, rendezett környezetben
* Közművek: villany, víz, csatorna bekötve (gáz nincs)
* Lakóépület: 83 m2 hasznos alapterület
* Falazat: vegyes szerkezet (1970-es évek téga, 2000-es évek vályog bővítése), beton alap, fafödém, cserépfedés
* Felújítás: 2024-ben teljes körű belső felújítás
* új elektromos hálózat és vízvezetékek
* modern járólapok a vizes helyiségekben
* laminált parketta a szobákban
* új beltéri ajtók
* műanyag nyílászárók
* inverteres Klíma
* Fűtés: vegyes tüzelésű kazán, radiátoros hőleadással, a kazán 2024-ben került beépítésre
* Melgviz ellátás , új ARISTON villanybojlerről van megoldva
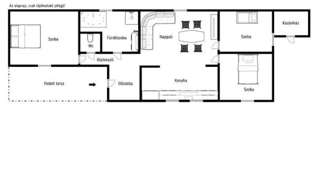
* Helyiségek:
* 3 külön bejáratú szoba (13 m2, 13 m2, 18 m2)
* nappali?konyha egy légtérben
* közlekedő és előszoba
* külön fürdőszoba és WC
* új lemez kerítés
* található még a telken egy kisebb autó tárolására alkalmas garázs
* Extrák: a beépített konyhabútor a vételár részét képezi
* Állapot: per- és tehermentes, rövid időn belül birtokba vehető

A ház belülről teljesen elkészült, így új tulajdonosa azonnal beköltözhet, és élvezheti az otthon nyújtotta kényelmet. A csendes környék, a praktikus elrendezés és a gondos felújítás egyaránt biztosítja, hogy ez az ingatlan hosszú távon is kiváló választás legyen családok számára.

További kérdéseire készséggel válaszolok, akár hétvégén is. Kedvezményes kamatozású lakásvásárlási hitelek, valamint Babaváró és CSOK ügyintézése az OTP hátterével irodánkban.
Ref.szám: M313111

Referencia szám: M313111

Hirdetés feltöltve: 2025. 11. 04. Utoljára módosítva: 2025. 11. 04.

3 szobás családi házak ára Hajdúböszörményen

Ebből az összehasonlításból megtudhatod, hogyan viszonyul a lakás ára a környékbeli családi házak átlagos árához. Ez nem azt jelenti, hogy ennyivel olcsóbb vagy drágább, mint amennyit a lakás ér, hanem hogy ennyivel tér el a környékbeli átlagtól.

Ennek a m² ára
Hajdúböszörmény m² ár
602 e Ft
492 e Ft -22%
Ennek az ára
Hajdúböszörmény átlagár
49.99 M Ft m Ft
51.3 m Ft 3%

Az ingatlan elhelyezkedése

Cím: Hajdúböszörmény

Eladó családi házak a környékről

Eladó családi ház
Eladó családi ház

Debrecen

75 M Ft
4 szoba
96 m2
Eladó családi ház
Eladó családi ház

Hajdúböszörmény

44 M Ft
2 + 1 szoba
100 m2
Eladó családi ház
Eladó családi ház

Hajdúböszörmény

32.5 M Ft
2 + 1 szoba
101 m2
Eladó családi ház
Eladó családi ház

Hajdúböszörmény

30.9 M Ft
8 szoba
160 m2
Eladó családi ház
Eladó családi ház

Hajdúsámson

81 M Ft
2 szoba
80 m2
Eladó családi ház
Eladó családi ház

Hajdúböszörmény

69 M Ft
5 szoba
105 m2
Eladó családi ház
Eladó családi ház

Püspökladány, Sárrét utca

59.6 M Ft
4 szoba
165 m2
Eladó családi ház
Eladó családi ház

Hajdúböszörmény

44 M Ft
2 + 1 szoba
100 m2
Eladó családi ház
Eladó családi ház

Hajdúszoboszló

8.49 M Ft
1 szoba
24 m2
Eladó családi ház
Eladó családi ház

Hajdúböszörmény

28 M Ft
1 + 1 szoba
51 m2
Eladó családi ház
Eladó családi ház

Hajdúböszörmény

15 M Ft
2 szoba
40 m2
Eladó családi ház
Eladó családi ház

Hajdúböszörmény

15.5 M Ft
2 szoba
45 m2
Eladó családi ház
Eladó családi ház

Hajdúböszörmény

20 M Ft
2 szoba
50 m2
Eladó családi ház
Eladó családi ház

Debrecen, Lencztelep, Szeged utca

129.9 M Ft
7 szoba
240 m2
Eladó családi ház
Eladó családi ház

Püspökladány

89.999 M Ft
4 + 2 szoba
264 m2
Eladó családi ház
Eladó családi ház

Hajdúböszörmény

99 M Ft
2 + 1 szoba
142 m2
Eladó családi ház
Eladó családi ház

Debrecen

13.9 M Ft
2 szoba
56 m2
Eladó családi ház
Eladó családi ház

Hajdúböszörmény, Avar utca

39.9 M Ft
3 szoba
72 m2
Eladó családi ház
Eladó családi ház

Hajdúböszörmény

99 M Ft
2 + 1 szoba
142 m2
Eladó családi ház
Eladó családi ház

Debrecen

245 M Ft
5 + 1 szoba
275 m2
Eladó családi ház
Eladó családi ház

Hajdúböszörmény

19.9 M Ft
2 + 1 szoba
73 m2
Eladó családi ház
Eladó családi ház

Balmazújváros

104.9 M Ft
3 szoba
172 m2
Eladó családi ház
Eladó családi ház

Hajdúböszörmény

21 M Ft
2 + 1 szoba
62 m2
Eladó családi ház
Eladó családi ház

Hajdúböszörmény

15.5 M Ft
2 szoba
45 m2

Falusi CSOK ingatlanok

Eladó családi ház
Eladó családi ház

Ágasegyháza

29.7 M Ft
3 szoba
75 m2
Eladó családi ház
Eladó családi ház

Vajszló

18.99 M Ft
2 szoba
91 m2
Eladó családi ház
Eladó családi ház

Csemő

25.9 M Ft
2 szoba
69 m2
Eladó családi ház
Eladó családi ház

Tápióság

12.9 M Ft
1 szoba
50 m2
Eladó családi ház
Eladó családi ház

Orgovány, Mátyás király utca

16 M Ft
2 szoba
60 m2
Eladó családi ház
Eladó családi ház

Szabadbattyán

30 M Ft
4 szoba
75 m2
Eladó családi ház
Eladó családi ház

Hegyeshalom

85 M Ft
4 + 1 szoba
123 m2
Eladó családi ház
Eladó családi ház

Tab

49.9 M Ft
2 szoba
62 m2