Oasis Residence

Eladó családi ház
Gyöngyöspata

Figyelem!

Ez az ingatlan a 2019.07.01-től induló falusi CSOK által támogatott településen található

+ 17 kép 1/20
38 500 000 Ft38.5 M Ft 385 000 Ft/m2
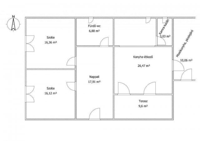
3 szoba
100 m2
építés éve:1980

Részletes adatok

Telekméret: 612 m2
Fűtés: Gázkazán
Energetikai besorolás: Nem adta meg a hirdető

Az OTP Bank lakáshitel ajánlataFizetett hirdetés

+36 30 635
Mohai Endre
OTP Ingatlanpont Gyöngyös

Érdekel az OTP Bank kedvezményes lakáshitel ajánlata? *

* A kérdésre „Igen” válasz bejelölése esetén, az „Üzenet küldése” gombra kattintva kijelentem, hogy az OTP Bank Nyrt. Adatkezelési tájékoztatójának tartalmát megismertem és tudomásul vettem.

Eladó családi ház leírása

Gyöngyöspatán 100 m2-es családi ház új tulajdonosát várja! Rendezett utcában, kiváló elhelyezkedése teszi egyedülállóvá. Az épület kocka ház stílusban, 1980-ban épült, szilikát és B80-as tégla falai rendkívül stabilak, tetőszerkezete sem igényel felújítást. Tulajdonosa 2022- ben a belső tereket teljesen felújította. Teljes padozat, villanyhálózat cseréje, minőségi, külső-belső nyílászárók beépítése, épületgépészeti átalakítása után modern, a mai kor elvárásainak is megfelelőre szépült. A kondenzációs kazán padló és radiátoros körön keresztül fűti a házat. Padlástere teljes egésze therwoolin hőszigeteléssel fedve, ezzel együtt alacsonyak a fűtési költségek. Tavalyi évben a terasz hozzáépítésével otthonosabbá vált. A 612 m2-es udvar teljesen körbezárt, belátásmentesen óvja a bentlakókat.
Amennyiben egy madárcsicsergős, hangulatos helyen keres ingatlant, akkor ebben megtalálhatja a lehetőséget.
Keressen és nézze meg személyesen is!

Hirdetés feltöltve: 2025. 11. 02. Utoljára módosítva: 2025. 11. 02.

Az ingatlan elhelyezkedése

Cím: Gyöngyöspata

Eladó ingatlanok a környékről

Eladó családi ház
Eladó családi ház

Bükkszék

44.9 M Ft
3 + 2 szoba
114 m2
Eladó családi ház
Eladó családi ház

Ostoros

94.5 M Ft
3 szoba
96 m2
Eladó családi ház
Eladó családi ház

Ostoros

94.5 M Ft
3 szoba
96 m2
Eladó családi ház
Eladó családi ház

Bükkszék

13.9 M Ft
3 szoba
76 m2
Eladó családi ház
Eladó családi ház

Gyöngyöspata

38.5 M Ft
3 szoba
100 m2
Eladó családi ház
Eladó családi ház

Ostoros

94.5 M Ft
3 szoba
96 m2
Eladó családi ház
Eladó családi ház

Gyöngyöspata

24.9 M Ft
3 szoba
93 m2
Eladó családi ház
Eladó családi ház

Gyöngyöspata

16 M Ft
3 szoba
Eladó családi ház
Eladó családi ház

Gyöngyöspata, Dózsa György út

20 M Ft
2 szoba
80 m2
Eladó családi ház
Eladó családi ház

Recsk

21 M Ft
4 szoba
220 m2
Eladó családi ház
Eladó családi ház

Bükkszék

13.9 M Ft
3 szoba
76 m2
Eladó családi ház
Eladó családi ház

Szilvásvárad

92 M Ft
4 + 1 szoba
220 m2
Eladó telek
Eladó telek

Atkár

15 M Ft
913 m²
Eladó családi ház
Eladó családi ház

Mátraszentimre

58 M Ft
3 + 1 szoba
120 m2
Eladó családi ház
Eladó családi ház

Eger, Felsőváros

159 M Ft
5 szoba
205 m2
Eladó családi ház
Eladó családi ház

Andornaktálya

28.5 M Ft
2 szoba
60 m2
Eladó családi ház
Eladó családi ház

Füzesabony

35 M Ft
2 szoba
100 m2
Eladó téglalakás
Eladó téglalakás

Eger

54.9 M Ft
3 szoba
65 m2
Eladó családi ház
Eladó családi ház

Füzesabony

35 M Ft
2 szoba
100 m2
Eladó családi ház
Eladó családi ház

Eger

440 M Ft
5 szoba
600 m2
Eladó családi ház
Eladó családi ház

Eger

169 M Ft
6 szoba
220 m2
Eladó családi ház
Eladó családi ház

Hatvan

55 M Ft
2 + 2 szoba
119 m2
Eladó családi ház
Eladó családi ház

Eger

149 M Ft
7 szoba
260 m2
Eladó családi ház
Eladó családi ház

Eger

95 M Ft
6 szoba
189 m2

Falusi CSOK ingatlanok

Eladó családi ház
Eladó családi ház

Hernádnémeti

19.9 M Ft
2 szoba
62 m2
Eladó családi ház
Eladó családi ház

Tápiógyörgye

34.9 M Ft
3 szoba
85 m2
Eladó családi ház
Eladó családi ház

Törtel

32 M Ft
2 szoba
67 m2
Eladó családi ház
Eladó családi ház

Mályi

89.9 M Ft
4 szoba
100 m2
Eladó családi ház
Eladó családi ház

Tápiógyörgye

14.9 M Ft
2 szoba
60 m2
Eladó családi ház
Eladó családi ház

Ságvár

73.89 M Ft
3 szoba
70 m2
Eladó családi ház
Eladó családi ház

Tiszaroff

12.9 M Ft
3 szoba
87 m2
Eladó családi ház
Eladó családi ház

Bócsa

68 M Ft
3 szoba
100 m2

Falusi CSOK ingatlanok

Eladó családi ház
Eladó családi ház

Nagybaracska

42 M Ft
3 szoba
144 m2
Eladó családi ház
Eladó családi ház

Szabadbattyán

30 M Ft
4 szoba
75 m2
Eladó családi ház
Eladó családi ház

Csemő

79.8 M Ft
2 szoba
88 m2
Eladó családi ház
Eladó családi ház

Nagyberki, Újváros u

20.9 M Ft
3 szoba
88 m2
Eladó családi ház
Eladó családi ház

Egyházaskozár

59 M Ft
4 szoba
162 m2
Eladó családi ház
Eladó családi ház

Orci

59.9 M Ft
3 szoba
101 m2
Eladó családi ház
Eladó családi ház

Berzence

69.9 M Ft
6 szoba
257 m2
Eladó családi ház
Eladó családi ház

Gamás

49.9 M Ft
5 szoba
150 m2