NapForrás 20 - Buda

Eladó családi ház
Gyöngyösoroszi

Figyelem!

Ez az ingatlan a 2019.07.01-től induló falusi CSOK által támogatott településen található

+ 15 kép 1/18
19 990 000 Ft19.99 M Ft 181 727 Ft/m2
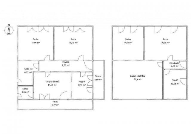
2 szoba
110 m2
építés éve:1985

Részletes adatok

Állapot: Átlagos
Telekméret: 1681 m2
Fűtés: Gázkazán
Energetikai besorolás: Nem adta meg a hirdető

Az OTP Bank lakáshitel ajánlataFizetett hirdetés

+36 70 752
Mattyasovszky Nauzika
referens

Érdekel az OTP Bank kedvezményes lakáshitel ajánlata? *

* A kérdésre „Igen” válasz bejelölése esetén, az „Üzenet küldése” gombra kattintva kijelentem, hogy az OTP Bank Nyrt. Adatkezelési tájékoztatójának tartalmát megismertem és tudomásul vettem.

Eladó családi ház leírása

Gyöngyösorosziban 110 m2-es családi ház eladó. A Mátra lábánál fekvő település rendezett, orvosi rendelő, óvoda a közelben. Gyöngyös város közelsége sok munkalehetőséget kínál. A faluból Budapest is könnyen elérhető.
A ház 1985-ben teljesen téglából épült, a mai napig remek statikai és esztétikai állapotban van. A terek kiváló elrendezése a mai kor divatját is kielégítheti. A fűtéséről egy vegyes és egy gáztüzelésű kazán gondoskodik. Nyílászárói építés korabeliek, jól záródnak, redőnyözöttek.
Mivel a település és az ingatlan is megfelel a falusi CSOK követelményeinek a nagycsaládok jelentős anyagi segítséget kaphatnak a vásárlás és korszerűsítés költségeihez. Amennyiben egy stabil, jó értékű ingatlant keres ebben nem fog csalatkozni.
Keressen bátran és nézze meg ezt az ajánlatomat.

Referencia szám: M295425-ZE

Hirdetés feltöltve: 2025. 10. 30. Utoljára módosítva: 2025. 11. 19.

Az ingatlan elhelyezkedése

Cím: Gyöngyösoroszi

Eladó ingatlanok a környékről

Eladó családi ház
Eladó családi ház

Gyöngyösoroszi

39.5 M Ft
3 szoba
160 m2
Eladó családi ház
Eladó családi ház

Hatvan

85 M Ft
3 + 1 szoba
91 m2
Eladó családi ház
Eladó családi ház

Gyöngyösoroszi

19.99 M Ft
2 szoba
110 m2
Eladó családi ház
Eladó családi ház

Gyöngyösoroszi

49 M Ft
4 szoba
160 m2
Eladó téglalakás
Eladó téglalakás

Eger

129 M Ft
2 + 1 szoba
90 m2
Eladó családi ház
Eladó családi ház

Andornaktálya

42.5 M Ft
3 szoba
115 m2
Eladó családi ház
Eladó családi ház

Ostoros

94.5 M Ft
3 szoba
96 m2
Eladó családi ház
Eladó családi ház

Gyöngyösoroszi, Károlytáró lakótelep Károlytáró telep

42 M Ft
7 szoba
142 m2
Eladó családi ház
Eladó családi ház

Gyöngyösoroszi

20.99 M Ft
3 szoba
67 m2
Eladó családi ház
Eladó családi ház

Ostoros

94.5 M Ft
3 szoba
96 m2
Eladó családi ház
Eladó családi ház

Szilvásvárad

92 M Ft
4 + 1 szoba
220 m2
Eladó családi ház
Eladó családi ház

Mátraderecske

74 M Ft
4 szoba
200 m2
Eladó családi ház
Eladó családi ház

Gyöngyösoroszi

19.99 M Ft
2 szoba
110 m2
Eladó családi ház
Eladó családi ház

Bükkszék

44.9 M Ft
3 + 2 szoba
114 m2
Eladó családi ház
Eladó családi ház

Mátraderecske

44.5 M Ft
6 szoba
133 m2
Eladó családi ház
Eladó családi ház

Bodony

26.9 M Ft
3 szoba
95 m2
Eladó családi ház
Eladó családi ház

Heréd, Ady Endre utca 41

15.55 M Ft
1 + 1 szoba
107 m2
Eladó családi ház
Eladó családi ház

Gyöngyösoroszi

29.9 M Ft
4 szoba
130 m2
Eladó családi ház
Eladó családi ház

Hatvan

97.95 M Ft
5 + 2 szoba
253 m2
Eladó családi ház
Eladó családi ház

Lőrinci

42.9 M Ft
4 szoba
200 m2
Eladó családi ház
Eladó családi ház

Bükkszék

69 M Ft
5 szoba
240 m2
Eladó családi ház
Eladó családi ház

Mátraszentimre

250 M Ft
8 szoba
300 m2
Eladó családi ház
Eladó családi ház

Bükkszék

13.9 M Ft
3 szoba
76 m2
Eladó nyaraló
Eladó nyaraló

Szűcsi

11 M Ft
2 szoba
20 m2

Falusi CSOK ingatlanok

Eladó családi ház
Eladó családi ház

Elek

18 M Ft
4 szoba
180 m2
Eladó családi ház
Eladó családi ház

Újpetre

40 M Ft
8 szoba
200 m2
Eladó családi ház
Eladó családi ház

Szil

25 M Ft
2 szoba
90 m2
Eladó családi ház
Eladó családi ház

Szarvaskend

26.9 M Ft
2 szoba
83 m2
Eladó családi ház
Eladó családi ház

Abaújszántó

19.99 M Ft
3 szoba
84 m2
Eladó családi ház
Eladó családi ház

Tápiógyörgye

44.9 M Ft
3 szoba
105 m2
Eladó családi ház
Eladó családi ház

Pannonhalma

159 M Ft
5 szoba
240 m2
Eladó családi ház
Eladó családi ház

Tokod

89 M Ft
6 szoba
187 m2

Falusi CSOK ingatlanok

Eladó családi ház
Eladó családi ház

Bár

89.5 M Ft
4 + 1 szoba
172 m2
Eladó családi ház
Eladó családi ház

Somogygeszti

10.9 M Ft
2 szoba
115 m2
Eladó családi ház
Eladó családi ház

Nádasd

84.9 M Ft
4 szoba
143 m2
Eladó családi ház
Eladó családi ház

Harsány

51.9 M Ft
5 szoba
140 m2
Eladó családi ház
Eladó családi ház

Elek

21.5 M Ft
2 szoba
76 m2
Eladó családi ház
Eladó családi ház

Törtel

10 M Ft
2 szoba
32 m2
Eladó családi ház
Eladó családi ház

Porrogszentkirály

31.9 M Ft
3 szoba
82 m2
Eladó családi ház
Eladó családi ház

Rábaszentmihály

65 M Ft
3 szoba
156 m2