City Pearl

Eladó családi ház
Gyöngyöshalász

Figyelem!

Ez az ingatlan a 2019.07.01-től induló falusi CSOK által támogatott településen található

+ 12 kép 1/15
59 000 000 Ft59 M Ft 728 395 Ft/m2
4 szoba
81 m²
építés éve:2020

Részletes adatok

Állapot: Újszerű
Telekméret: 395 m2
Fűtés: Elektromos
Komfort: Összkomfortos
Energetikai besorolás: Nem adta meg a hirdető

Az OTP Bank lakáshitel ajánlataFizetett hirdetés

+36 20 426
Gulyás Gáborné
referens

Érdekel az OTP Bank kedvezményes lakáshitel ajánlata? *

* A kérdésre „Igen” válasz bejelölése esetén, az „Üzenet küldése” gombra kattintva kijelentem, hogy az OTP Bank Nyrt. Adatkezelési tájékoztatójának tartalmát megismertem és tudomásul vettem.

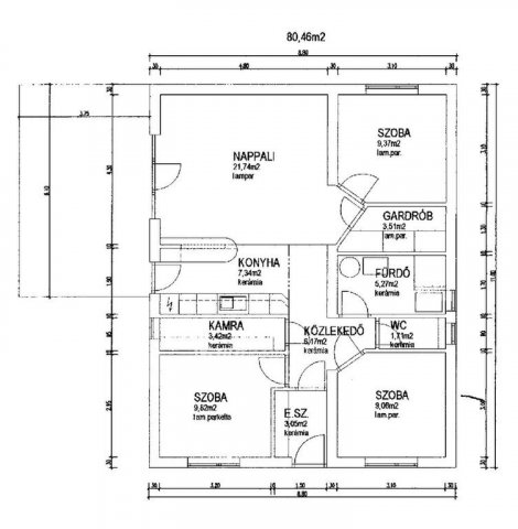
Eladó családi ház leírása

Gyöngyöstől 3 km-re Gyöngyöshalász központjához közel 2020-ban épült családi ház eladó.
Az épület kiváló állapotú 395 m2-s telken áll a 103 m2-s épület és a 24 m2-s fedett terasz.
Beton talapzaton áll, 14 cm-s hőszigetelés található az aljzat beton alatt.
A tégla falazat 15 cm , a lábazat 12 cm-s Austrotherm szigetelést kapott.
Az otthon melegéről elektromos infrapanel, meleg vízről hőszivattyús bojler gondoskodik. Amennyiben szükséges hűtő-fűtő klíma is rendelkezésre áll.
Az épületben 4 szoba, amerikai konyhás étkezős nappali, külön fürdő és WC, gardrób, kamra, előszoba, fedett tároló helyezkedik el.
A nyílászárók műanyag 3 rétegű, fokozott hőszigetelésűek, redőnnyel és szúnyoghálóval ellátott.
Parkolni telken belül a ház előtt lehet, akár 4 autónak.
A kertben gyümölcsfák, virág- és magas ágyások, nyársaló.
A telek körbekerített.
A település környezetében számos munkalehetőség.
A településen belül bölcsőde, óvoda, iskola, orvosi rendelő, posta.
Ha felkeltette érdeklődését, hívjon!
Az ingatlan alkalmas a falusi CSOK igénybevételére. Ügyvédi háttérrel, ingyenes pénzügyi tanácsadással és kedvezményes hitellel segítjük vásárlását!

Az energetikai tanúsítvány készítése folyamatban van, amint rendelkezésre áll, úgy azzal a hirdetés frissítésre kerül.

Hirdetés feltöltve: 2026. 04. 26. Utoljára módosítva: 2026. 05. 20.

Az ingatlan elhelyezkedése

Cím: Gyöngyöshalász

Eladó ingatlanok a környékről

Bodony
Eladó családi ház

Bodony

32 M Ft
2 + 1 szoba
80 m²
Andornaktálya
Eladó családi ház

Andornaktálya

42 M Ft
4 szoba
116 m²
Mátraszentimre
Eladó családi ház

Mátraszentimre

250 M Ft
8 szoba
300 m²
Gyöngyöshalász
Eladó családi ház

Gyöngyöshalász

89.9 M Ft
4 + 1 szoba
150 m²
Feldebrő
Eladó családi ház

Feldebrő

14 M Ft
1 + 1 szoba
50 m²
Felsőtárkány
Eladó családi ház

Felsőtárkány

135 M Ft
3 + 1 szoba
160 m²
Gyöngyös
Eladó családi ház

Gyöngyös

940 M Ft
1 szoba
4000 m²
Andornaktálya
Eladó családi ház

Andornaktálya

35.9 M Ft
2 + 2 szoba
840 m²
Szarvaskő
Eladó családi ház

Szarvaskő

230 M Ft
5 szoba
424 m²
Eger
Eladó téglalakás

Eger

67.9 M Ft
3 szoba
73 m²
Gyöngyöshalász
Eladó családi ház

Gyöngyöshalász

11.5 M Ft
3 szoba
67 m²
Szilvásvárad
Eladó családi ház

Szilvásvárad

43.9 M Ft
4 + 2 szoba
205 m²
Gyöngyöshalász
Eladó családi ház

Gyöngyöshalász

59 M Ft
4 szoba
81 m²
Besenyőtelek
Eladó családi ház

Besenyőtelek

65 M Ft
5 szoba
107 m²
Gyöngyös
Eladó téglalakás

Gyöngyös

22 M Ft
2 szoba
55 m²
Gyöngyös
Eladó családi ház

Gyöngyös

940 M Ft
30 szoba
4000 m²
Gyöngyöshalász
Eladó családi ház

Gyöngyöshalász

59.9 M Ft
4 szoba
95 m²
Gyöngyös
Eladó téglalakás

Gyöngyös

22 M Ft
2 szoba
55 m²
Mátraszentimre, Maléter Pál utca
Eladó családi ház

Mátraszentimre

49 M Ft
2 szoba
107 m²
Gyöngyöshalász
Eladó családi ház

Gyöngyöshalász

59 M Ft
4 szoba
81 m²
Gyöngyöshalász
Eladó családi ház

Gyöngyöshalász

11.5 M Ft
3 szoba
67 m²
Andornaktálya
Eladó családi ház

Andornaktálya

35.9 M Ft
2 + 2 szoba
840 m²
Eger
Eladó téglalakás

Eger

54.9 M Ft
2 + 1 szoba
65 m²
Hatvan
Eladó családi ház

Hatvan

97.95 M Ft
5 + 2 szoba
253 m²

Falusi CSOK ingatlanok

Ostffyasszonyfa
Eladó családi ház

Ostffyasszonyfa

37.9 M Ft
5 szoba
494 m²
Kunadacs
Eladó családi ház

Kunadacs

80 M Ft
4 szoba
148 m²
Sumony
Eladó családi ház

Sumony

19 M Ft
4 szoba
120 m²
Bag
Eladó családi ház

Bag

79.9 M Ft
5 szoba
124 m²
Seregélyes
Eladó családi ház

Seregélyes

87 M Ft
4 szoba
96 m²
Iváncsa
Eladó családi ház

Iváncsa

93.5 M Ft
5 szoba
283 m²
Rétság
Eladó téglalakás

Rétság

34.9 M Ft
2 szoba
55 m²
Tápióság
Eladó családi ház

Tápióság

57 M Ft
4 szoba
94 m²

Falusi CSOK ingatlanok

Tápiószőlős
Eladó családi ház

Tápiószőlős

9.9 M Ft
3 szoba
0 m²
Ceglédbercel
Eladó családi ház

Ceglédbercel

89 M Ft
4 szoba
135 m²
Fertőd
Eladó családi ház

Fertőd

140.91 M Ft
4 + 2 szoba
190 m²
Lovasberény
Eladó sorház

Lovasberény

78 M Ft
4 + 1 szoba
124 m²
Bag
Eladó családi ház

Bag

16.9 M Ft
6 szoba
160 m²
Rétság
Eladó téglalakás

Rétság

34.9 M Ft
2 szoba
55 m²
Újlengyel
Eladó családi ház

Újlengyel

75.9 M Ft
4 szoba
0 m²
Seregélyes
Eladó családi ház

Seregélyes

71.4 M Ft
3 szoba
120 m²