Avico Greentop

Eladó családi ház
Gyöngyöshalász

Figyelem!

Ez az ingatlan a 2019.07.01-től induló falusi CSOK által támogatott településen található

+ 11 kép 1/14
60 500 000 Ft60.5 M Ft 746 914 Ft/m2
4 szoba
81 m²
építés éve:2020

Részletes adatok

Állapot: Újszerű
Telekméret: 395 m2
Fűtés: Elektromos
Energetikai besorolás: Nem adta meg a hirdető
Zenga Premier

Friss hirdetések, amiket nem találsz meg más ingatlankereső portálon.

Fedezd fel elsőként a Zenga Premier címkés eladó ingatlanokat!

További részletek a zenga.hu-n

Az OTP Bank lakáshitel ajánlataFizetett hirdetés

+36 30 218
Vályi-Nagy Károly
referens

Érdekel az OTP Bank kedvezményes lakáshitel ajánlata? *

* A kérdésre „Igen” válasz bejelölése esetén, az „Üzenet küldése” gombra kattintva kijelentem, hogy az OTP Bank Nyrt. Adatkezelési tájékoztatójának tartalmát megismertem és tudomásul vettem.

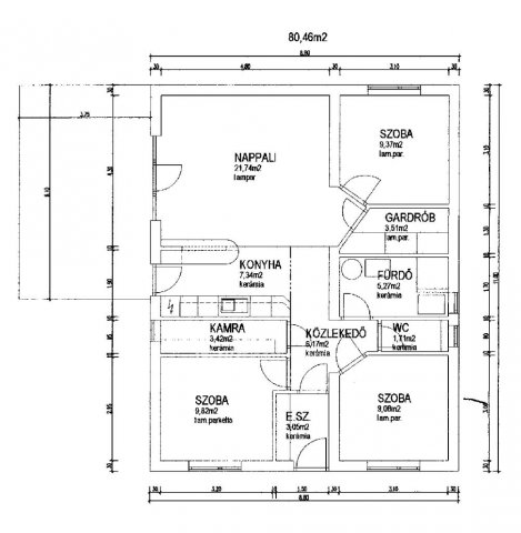
Eladó családi ház leírása

Gyöngyöstől 3 km-re Gyöngyöshalász központjához közel 2020-ban épült családi ház eladó.
Az épület kiváló állapotú 395 m2-s telken áll a 103 m2-s épület és a 24 m2-s fedett terasz.
Beton talapzaton áll, 14 cm-s hőszigetelés található az aljzat beton alatt.
A tégla falazat 15 cm , a lábazat 12 cm-s Austrotherm szigetelést kapott.
Az otthon melegéről elektromos infrapanel, meleg vízről hőszivattyús bojler gondoskodik. Amennyiben szükséges hűtő-fűtő klíma is rendelkezésre áll.
Az épületben 4 szoba, amerikai konyhás étkezős nappali, külön fürdő és WC, gardrób, kamra, előszoba, fedett tároló helyezkedik el.
A nyílászárók műanyag 3 rétegű, fokozott hőszigetelésűek, redőnnyel és szúnyoghálóval ellátott.
Parkolni telken belül a ház előtt lehet, akár 4 autónak.
A kertben gyümölcsfák, virág- és magas ágyások, nyársaló.
A telek körbekerített.
A település környezetében számos munkalehetőség.
A településen belül bölcsőde, óvoda, iskola, orvosi rendelő, posta.
Ha felkeltette érdeklődését, hívjon!
Az ingatlan alkalmas a falusi CSOK igénybevételére. Ügyvédi háttérrel, ingyenes pénzügyi tanácsadással és kedvezményes hitellel segítjük vásárlását!

Hirdetés feltöltve: 2026. 04. 24.

Az ingatlan elhelyezkedése

Cím: Gyöngyöshalász

Eladó ingatlanok a környékről

Recsk
Eladó családi ház

Recsk

21 M Ft
4 szoba
220 m²
Hatvan
Eladó családi ház

Hatvan

97.95 M Ft
5 + 2 szoba
253 m²
Gyöngyöshalász
Eladó családi ház

Gyöngyöshalász

12.8 M Ft
3 szoba
67 m²
Gyöngyös
Eladó családi ház

Gyöngyös

28.5 M Ft
1 + 1 szoba
62 m²
Gyöngyöshalász
Eladó családi ház

Gyöngyöshalász

56.9 M Ft
6 szoba
240 m²
Gyöngyöshalász
Eladó családi ház

Gyöngyöshalász

59.9 M Ft
4 szoba
95 m²
Hort
Eladó családi ház

Hort

21.7 M Ft
2 szoba
60 m²
Eger
Eladó téglalakás

Eger

58 M Ft
2 + 1 szoba
68 m²
Eger, Felsőváros
Eladó családi ház

Eger

159 M Ft
5 szoba
205 m²
Gyöngyöshalász
Eladó családi ház

Gyöngyöshalász

65 M Ft
3 + 2 szoba
137 m²
Szilvásvárad
Eladó családi ház

Szilvásvárad

92 M Ft
4 + 1 szoba
220 m²
Andornaktálya
Eladó családi ház

Andornaktálya

42.5 M Ft
3 szoba
115 m²
Mátraszentimre
Eladó családi ház

Mátraszentimre

250 M Ft
8 szoba
300 m²
Eger
Eladó családi ház

Eger

139 M Ft
7 szoba
240 m²
Egerbakta
Eladó családi ház

Egerbakta

36.5 M Ft
5 szoba
120 m²
Eger
Eladó téglalakás

Eger

44.6 M Ft
2 + 1 szoba
57 m²
Andornaktálya
Eladó családi ház

Andornaktálya

42 M Ft
4 szoba
116 m²
Gyöngyöshalász
Eladó családi ház

Gyöngyöshalász

89.9 M Ft
4 + 1 szoba
150 m²
Mátraszentimre
Eladó családi ház

Mátraszentimre

159 M Ft
9 szoba
275 m²
Gyöngyössolymos
Eladó családi ház

Gyöngyössolymos

9.9 M Ft
1 szoba
42 m²
Gyöngyös
Eladó téglalakás

Gyöngyös

32.2 M Ft
1 + 1 szoba
34 m²
Hatvan
Eladó téglalakás

Hatvan

65 M Ft
4 szoba
84 m²
Hatvan
Eladó téglalakás

Hatvan

65 M Ft
4 szoba
84 m²
Gyöngyös
Eladó családi ház

Gyöngyös

940 M Ft
30 szoba
4000 m²

Falusi CSOK ingatlanok

Berzence
Eladó családi ház

Berzence

25 M Ft
2 szoba
200 m²
Levelek
Eladó családi ház

Levelek

74 M Ft
7 + 1 szoba
190 m²
Enese
Eladó családi ház

Enese

94.99 M Ft
3 + 1 szoba
124 m²
Verseg
Eladó családi ház

Verseg

32.5 M Ft
1 + 1 szoba
42 m²
Újlengyel
Eladó családi ház

Újlengyel

110 M Ft
4 szoba
121 m²
Badacsonytördemic
Eladó családi ház

Badacsonytördemic

90 M Ft
3 szoba
130 m²
Mesteri
Eladó családi ház

Mesteri

29.7 M Ft
4 szoba
140 m²
Kenyeri
Eladó családi ház

Kenyeri

39.9 M Ft
3 szoba
94 m²

Falusi CSOK ingatlanok

Újpetre
Eladó családi ház

Újpetre

39 M Ft
3 + 1 szoba
130 m²
Mezőkeresztes
Eladó ikerház

Mezőkeresztes

13.5 M Ft
2 + 1 szoba
70 m²
Balatonakali
Eladó ikerház

Balatonakali

560 M Ft
4 szoba
140 m²
Örkény
Eladó családi ház

Örkény

46.9 M Ft
1 + 1 szoba
59 m²
Tabdi
Eladó családi ház

Tabdi

95 M Ft
45 szoba
1490 m²
Szőlősgyörök
Eladó családi ház

Szőlősgyörök

29.9 M Ft
3 szoba
85 m²
Hegyeshalom, Margaréta utca 12
Eladó téglalakás

Hegyeshalom

46.91 M Ft
2 szoba
43 m²
Sumony
Eladó családi ház

Sumony

19 M Ft
4 szoba
120 m²