Metrodom

Eladó családi ház
Gomba

127 000 000 Ft127 M Ft 920 290 Ft/m2
5 szoba
138 m²
építés éve:2026

Részletes adatok

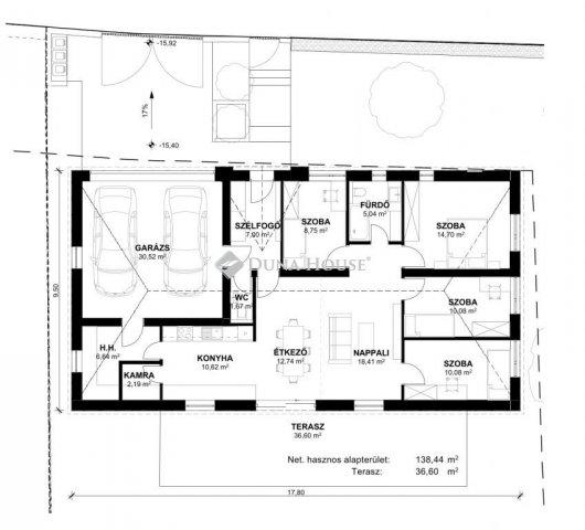
Telekméret: 1000 m2
Fűtés: Egyéb
Energetikai besorolás: Nem adta meg a hirdető

Az OTP Bank lakáshitel ajánlataFizetett hirdetés

3629619083
Megyeriné Mikus Melinda
referens

Érdekel az OTP Bank kedvezményes lakáshitel ajánlata? *

* A kérdésre „Igen” válasz bejelölése esetén, az „Üzenet küldése” gombra kattintva kijelentem, hogy az OTP Bank Nyrt. Adatkezelési tájékoztatójának tartalmát megismertem és tudomásul vettem.

Eladó családi ház leírása

Eladásra kínálunk egy 2026-ban épülő, földszintes, 4 szoba + amerikai-konyhás nappalival rendelkező, napfényes, önálló családi házat, amely 2027 tavaszán kerül átadásra, 1000 nm-es telekkel!

Az otthon hőszivattyús fűtésrendszerrel, padlófűtéssel és elektromos törölközőszárító radiátorral a fürdőszobában rendelkezik.

A nappaliban split klíma került beépítésre.

Az udvarra belépve a szemet az utcafronti 3D kerítés, a térkövezett gyalogos és gépkocsi bejáró fogja meg. A gépkocsitárolásról szekcionált garázskapuval ellátott garázs gondoskodik, az elektromos nagykapu tovább növeli a kényelmet. Otthona környezete nemcsak szép, de biztonságos is, köszönhetően a megbízható kivitelezésnek és az elővigyázatosan megtervezett építési anyagoknak, mint a 30 cm vastag Porfix falak, a 15 cm vastag EPS hőszigetelés és a 30 cm vastag üveggyapot tetőhőszigetelés.

Az ingatlanban fehér műanyag 5 kamrás, 3 rétegű üvegezéssel ellátott ablakok garantálják a jó hőszigetelést és a fényáradatot. A belső terek kialakításához magas minőségű, bruttó 10.000 Ft/nm² értékű padló- és csempeburkolatok, valamint bruttó 80.000 Ft/db árú beltéri ajtók kerültek kiválasztásra.

Gomba település egy igazán csodálatos hely, ahol a nyugalom és a természet közelsége mellett a modern életvitel is helyet kap. Az itt épülő ingatlan lehetőséget kínál arra, hogy a város zajától távol, de mégis minden kényelmi szolgáltatáshoz közel élhessen. A kivételes panorámás kilátás, a szép környezet, valamint a kiemelkedő minőségű építkezés garantálja, hogy az új tulajdonosok életminőségben és komfortban egyaránt csak a legjobbat kapják. Gomba így nemcsak egy hely az otthonteremtéshez, hanem egy kapu a harmónikus és tartalmas élethez.

Hitelügyintézés, eladás és vétel teljes körű ügyintézése, ingyenes tanácsadás, értékbecslés, megbízható ügyvédi háttér biztosítása.
Érd.: Megyeriné Mikus Melinda tel.:06306652848 email:mikus.melinda@dh.hu

Referencia szám: HZ045641

Hirdetés feltöltve: 2026. 03. 20. Utoljára módosítva: 2026. 03. 20.

Az ingatlan elhelyezkedése

Cím: Gomba

Eladó ingatlanok a környékről

Gomba
Eladó családi ház

Gomba

127 M Ft
5 szoba
137 m²
Gomba
Eladó családi ház

Gomba

33 M Ft
2 szoba
54 m²
Gomba
Eladó családi ház

Gomba

167 M Ft
7 szoba
167 m²
Kerepes
Eladó családi ház

Kerepes

199 M Ft
6 szoba
360 m²
Halásztelek
Eladó családi ház

Halásztelek

140 M Ft
8 szoba
300 m²
Budakeszi, Makkosmária
Eladó családi ház

Budakeszi

100 M Ft
1 szoba
10 m²
Gomba
Eladó családi ház

Gomba

127 M Ft
5 szoba
138 m²
Gomba
Eladó családi ház

Gomba

167 M Ft
7 szoba
167 m²
Monorierdő
Eladó ikerház

Monorierdő

84.9 M Ft
4 szoba
83 m²
Érd
Eladó családi ház

Érd

69.9 M Ft
3 szoba
67 m²
Érd, Érdliget - Kutyavár, Érd-liget
Eladó családi ház

Érd

230 M Ft
7 szoba
280 m²
Tápiószele
Eladó családi ház

Tápiószele

18.9 M Ft
4 szoba
68 m²
Gomba
Eladó családi ház

Gomba

36 M Ft
2 szoba
60 m²
Budakeszi, Budakeszi kertváros
Eladó családi ház

Budakeszi

229 M Ft
10 szoba
450 m²
Tápiószőlős
Eladó családi ház

Tápiószőlős

34.9 M Ft
5 szoba
210 m²
Gomba
Eladó családi ház

Gomba

19.9 M Ft
2 szoba
61 m²
Tápiószele
Eladó családi ház

Tápiószele

32.9 M Ft
4 szoba
200 m²
Szigethalom
Eladó családi ház

Szigethalom

69 M Ft
4 szoba
120 m²
Gomba
Eladó családi ház

Gomba

167 M Ft
7 szoba
167 m²
Remeteszőlős
Eladó családi ház

Remeteszőlős

399.9 M Ft
5 + 2 szoba
260 m²
Gomba
Eladó családi ház

Gomba

25 M Ft
1 szoba
64 m²
Zebegény
Eladó családi ház

Zebegény

69.9 M Ft
6 szoba
245 m²
Gomba
Eladó családi ház

Gomba

25 M Ft
1 szoba
64 m²
Nagykáta
Eladó családi ház

Nagykáta

130 M Ft
3 szoba
203 m²

Falusi CSOK ingatlanok

Tiszasziget, Sziget lakópark
Eladó sorház

Tiszasziget

33.9 M Ft
2 szoba
48 m²
Kislőd
Eladó családi ház

Kislőd

23.9 M Ft
2 szoba
68 m²
Karád
Eladó családi ház

Karád

42.9 M Ft
3 szoba
100 m²
Kaposszerdahely, Rákóczi utca
Eladó családi ház

Kaposszerdahely

6.5 M Ft
1 szoba
32 m²
Nagyréde
Eladó családi ház

Nagyréde

69.5 M Ft
4 szoba
110 m²
Szalkszentmárton
Eladó családi ház

Szalkszentmárton

145 M Ft
5 szoba
620 m²
Osztopán
Eladó családi ház

Osztopán

26.6 M Ft
2 szoba
73 m²
Balatonszemes
Eladó téglalakás

Balatonszemes

110.9 M Ft
2 szoba
60 m²