BAM Living

Eladó családi ház
Gomba

+ 15 kép 1/18
99 000 000 Ft99 M Ft 933 962 Ft/m2
5 szoba
106 m2
építés éve:2025

Részletes adatok

Telekméret: 832 m2
Fűtés: Egyéb
Energetikai besorolás: Nem adta meg a hirdető

Az OTP Bank lakáshitel ajánlataFizetett hirdetés

3629998440
Abonyi Andrea
referens

Érdekel az OTP Bank kedvezményes lakáshitel ajánlata? *

* A kérdésre „Igen” válasz bejelölése esetén, az „Üzenet küldése” gombra kattintva kijelentem, hogy az OTP Bank Nyrt. Adatkezelési tájékoztatójának tartalmát megismertem és tudomásul vettem.

Eladó családi ház leírása

Gomba településen, eladó újépítésű önálló családi ház, 4 szoba + nappalis, 832 nm - es telekkel, hőszivattyús fűtéssel, 26 nm-es terasszal!

3 gyerekes csok pluszra alkalmas!

Közművek be vannak vezetve, rendelkezik víz, villany és szennyvízcsatornával.

Az M4-es autóút pár perc alatt elérhető a háztól!

Az ingatlan nagyon kedvező rezsivel fog rendelkezni a megfelelő hőszigetelésnek és a hőszivattyús fűtésnek köszönhetően.

Műszaki adatok röviden:

-Tégla építés 10 cm-es homlokzati szigeteléssel,
-födém 30 cm-es hőszigeteléssel,
-5 légkamrás műanyag nyílászárók, szúnyoghálóval és redőnyökkel felszerelve, kívül - belül műanyag párkányok,
-betoncserép,
-H tarifás villanyóra, 3X20 Amper,
-elektromos kapu, fischer 3,5 kw-os hűtő-fűtő klíma, 8 kw-os fischer hőszivattyú,
-választható hideg- és meleg burkolatok 8000 ft/nm áron,
-belső ajtók 100 000 ft / db,
-választható szaniterek,
-Geberit WC-k,
-elektromos kapu,
-nappaliban hűtő-fűtő klíma,
-padlófűtés mindenhol,
-a fürdőszobában törölközőszárítós radiátor,
-gépi vakolás,
-60 nm viacolorral burkolt autóbeálló és járdák,
-elektromos redőny a teraszon, BB energetikai besorolás,
-26 nm-es nappali kapcsolatos terasz.

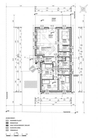
Belső elrendezését az alábbiakban sorolom fel, négyzetméterek megjelölésével:

-fedett belépő 3.36 nm
-előszoba: 5.44 nm
-konyha + étkező 16.35 nm
-nappali 19.08 nm
-szoba 10.64 nm
-szoba 10.80 nm
-szoba 10.26 nm
-szoba 10.80 nm
-kamra 3.24 nm
-közlekedő 4.29 nm
-fürdőszoba + wc 6.13 nm
-háztartási helyiség 3.78 nm
-WC 1,44 nm
-gardrób 4.05 nm

+ nappali kapcsolatos terasz 26.7 nm-es

Referenciamunkát tudunk mutatni. Az építő cég anyagilag biztos talpakon áll és szakmailag megbízható, elégedett ügyfelekkel rendelkezik!

Várható befejezés: szerződéskötéstől számítva 4-5 hónap!
Forduljon hozzám bizalommal a Duna House teljes kínálatával kapcsolatban, illetve eladási szándékával!
Szolgáltatásaink között megtalálható:
-Ingyenes hitelügyintézés a nemzetközileg elismert Credipass segítségével, garantáltan a legjobb feltételekkel és a leggyorsabb ügyintézéssel.
-Teljes körű ügyintézés ingatlan eladásához és vételéhez.
-Energetikai tanúsítvány készítése gyorsan és megbízhatóan.
-Ingyenes tanácsadás és értékbecslés, hogy a legjobb döntést hozhassa meg.
-Megbízható ügyvédi háttér biztosítása az adásvétel zökkenőmentes lebonyolításához.

Kövesse be értékesítői facebook oldalamat, ahol hasznos tippeket olvashat.
https://www.facebook.com/profile.php?id=100063629319547

Abonyi Andrea; tel: +36/30 322 4742; e-mail: abonyi.andrea@dh.hu

Referencia szám: HZ038089

Hirdetés feltöltve: 2025. 08. 12. Utoljára módosítva: 2025. 11. 09.

Az ingatlan elhelyezkedése

Cím: Gomba

Eladó ingatlanok a környékről

Eladó családi ház
Eladó családi ház

Budakeszi, Budakeszi kertváros

140 M Ft
2 szoba
55 m2
Eladó családi ház
Eladó családi ház

Gomba

28 M Ft
1 szoba
64 m2
Eladó családi ház
Eladó családi ház

Érd

164.9 M Ft
5 szoba
192 m2
Eladó családi ház
Eladó családi ház

Tápiógyörgye

19.9 M Ft
3 szoba
65 m2
Eladó családi ház
Eladó családi ház

Remeteszőlős

399.9 M Ft
5 + 2 szoba
260 m2
Eladó családi ház
Eladó családi ház

Kerepes

81.99 M Ft
5 szoba
102 m2
Eladó téglalakás
Eladó téglalakás

Gyál

80 M Ft
4 szoba
116 m2
Eladó családi ház
Eladó családi ház

Budakeszi, Budakeszi kertváros

229 M Ft
10 szoba
450 m2
Eladó családi ház
Eladó családi ház

Gomba, Csendes környezet

29 M Ft
1 szoba
60 m2
Eladó családi ház
Eladó családi ház

Gomba

199.9 M Ft
4 szoba
113 m2
Eladó családi ház
Eladó családi ház

Gomba

28 M Ft
1 szoba
64 m2
Eladó családi ház
Eladó családi ház

Tápiószele

32.9 M Ft
4 szoba
200 m2
Eladó családi ház
Eladó családi ház

Gomba

99 M Ft
5 szoba
106 m2
Eladó családi ház
Eladó családi ház

Gomba

33 M Ft
2 szoba
54 m2
Eladó családi ház
Eladó családi ház

Pécel, Reményik Sándor utca

296 M Ft
6 szoba
396 m2
Eladó családi ház
Eladó családi ház

Sülysáp

44.9 M Ft
3 + 1 szoba
100 m2
Eladó családi ház
Eladó családi ház

Tahitótfalu

188 M Ft
7 szoba
280 m2
Eladó családi ház
Eladó családi ház

Szigetszentmiklós, Tököli út közeli utca

120 M Ft
7 szoba
525 m2
Eladó családi ház
Eladó családi ház

Budaörs, Városközpont utca

119.5 M Ft
5 + 1 szoba
140 m2
Eladó ikerház
Eladó ikerház

Vecsés

110 M Ft
4 szoba
120 m2
Eladó családi ház
Eladó családi ház

Dunakeszi

250 M Ft
4 szoba
180 m2
Eladó családi ház
Eladó családi ház

Gomba

49.9 M Ft
3 szoba
83 m2
Eladó családi ház
Eladó családi ház

Kerepes

199 M Ft
6 szoba
360 m2
Eladó családi ház
Eladó családi ház

Üllő

95 M Ft
4 szoba
89 m2

Falusi CSOK ingatlanok

Eladó családi ház
Eladó családi ház

Egyházaskozár

59 M Ft
4 szoba
162 m2
Eladó családi ház
Eladó családi ház

Bócsa

68 M Ft
3 szoba
100 m2
Eladó családi ház
Eladó családi ház

Tab

46.9 M Ft
4 szoba
173 m2
Eladó családi ház
Eladó családi ház

Felsőlajos

100 M Ft
4 szoba
140 m2
Eladó családi ház
Eladó családi ház

Hajdúbagos

69.9 M Ft
5 szoba
230 m2
Eladó családi ház
Eladó családi ház

Gutorfölde

45 M Ft
4 szoba
111 m2
Eladó családi ház
Eladó családi ház

Vácszentlászló

46 M Ft
41 + 1 szoba
100 m2
Eladó téglalakás
Eladó téglalakás

Csorvás

10.6 M Ft
2 szoba
67 m2