Oasis Residence

Eladó családi ház
Gödöllő, Röges utca

+ 14 kép 1/17
229 000 000 Ft229 M Ft 704 615 Ft/m2
5 szoba
325 m2
építés éve:2006

Részletes adatok

Állapot: Újszerű
Telekméret: 2234 m2
Fűtés: Gázkazán
Parkolás: Garázs, Kocsibeálló
Közmű: Víz, Gáz, Villany, Csatorna
Energetikai besorolás: Nem adta meg a hirdető

Az OTP Bank lakáshitel ajánlataFizetett hirdetés

+36 70 902
Czinege István
Balla Ingatlan - XVII. kerület, Maglód, Gyömrő

Érdekel az OTP Bank kedvezményes lakáshitel ajánlata? *

* A kérdésre „Igen” válasz bejelölése esetén, az „Üzenet küldése” gombra kattintva kijelentem, hogy az OTP Bank Nyrt. Adatkezelési tájékoztatójának tartalmát megismertem és tudomásul vettem.

Eladó családi ház leírása

ELADÓ 325 M²-ES, 3 SZINTES, 5 SZOBÁS, 2006-BAN ÉPÜLT TÉGLA CSALÁDI HÁZ GÖDÖLLŐ KÖZPONTJÁBAN, 2.234 M²-ES MEGOSZTHATÓ TELEKKEL.
IDEÁLIS NAGYCSALÁDNAK, KÉTGENERÁCIÓSNAK VAGY AKÁR VÁLLALKOZÁS MELLÉ IS.

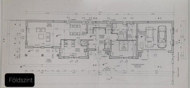
Elosztás
• Pince (90 m²): kerámiaburkolat, 3 m belmagasság, vízbekötés, tároló/műhely
• Földszint (140 m²): nappali, étkező, konyha, háló, fürdő, vendég-WC, teraszkapcsolat, 2 autós garázs szekcionált kapuval + elektromos kapu
• Emelet (95 m²): 3 háló, előtér, gardrób, fürdő, nagy terasz

Műszaki tartalom
Kondenzációs gázkazán, padlófűtés, 5 db klíma, alumínium redőnyök, központi porszívó, riasztó, 3×16 A áram, elektromos autó töltés előkészítés, 7 cm hőszigetelés, hódfarkú betoncserép tető

Telek és kert (2 234 m² – megosztható)
Parkosított rész automata öntözőrendszerrel (fúrt kútról), veteményeskert, ősfás terület, szaletli, búbos kemence, épített grillező–bográcsozó
Rendezési terv szerint utcanyitás a telek végén → külön építési telek kialakítható (befektetőknek ideális)

Infrastruktúra / közlekedés
Városközpont, iskola, óvoda, bolt, busz: 5 perc gyalog
HÉV + vasút: 5–8 perc autóval
M3 autópálya: 4 perc autóval — gyors kapcsolat Budapest felé



Kiváló választás azoknak, akik szeretnék a tágas életteret, a jó megközelíthetőséget és a természet közelségét egy helyen.

Keressen bátran, akár hétvégén is!

Hirdetés feltöltve: 2025. 12. 09. Utoljára módosítva: 2025. 12. 10.

5 szobás családi házak ára Gödöllőn

Ebből az összehasonlításból megtudhatod, hogyan viszonyul a lakás ára a környékbeli családi házak átlagos árához. Ez nem azt jelenti, hogy ennyivel olcsóbb vagy drágább, mint amennyit a lakás ér, hanem hogy ennyivel tér el a környékbeli átlagtól.

Ennek a m² ára
Gödöllő m² ár
705 e Ft
760 e Ft 7%
Ennek az ára
Gödöllő átlagár
229 M Ft m Ft
180.2 m Ft -27%

Az ingatlan elhelyezkedése

Cím: Gödöllő, Röges utca

Eladó családi házak a környékről

Eladó családi ház
Eladó családi ház

Érd

164.9 M Ft
5 szoba
192 m2
Eladó családi ház
Eladó családi ház

Pécel, Reményik Sándor utca

296 M Ft
6 szoba
396 m2
Eladó családi ház
Eladó családi ház

Tápiószele

37.9 M Ft
4 szoba
141 m2
Eladó családi ház
Eladó családi ház

Kerepes

81.99 M Ft
5 szoba
102 m2
Eladó családi ház
Eladó családi ház

Budakeszi, Budakeszi kertváros

229 M Ft
10 szoba
450 m2
Eladó családi ház
Eladó családi ház

Dunavarsány

69.9 M Ft
3 + 1 szoba
140 m2
Eladó családi ház
Eladó családi ház

Gödöllő, Haraszt, Táncsics Mihály út 74

159 M Ft
4 szoba
290 m2
Eladó családi ház
Eladó családi ház

Budaörs, Városközpont utca

119.5 M Ft
5 + 1 szoba
140 m2
Eladó családi ház
Eladó családi ház

Dunakeszi

250 M Ft
4 szoba
180 m2
Eladó családi ház
Eladó családi ház

Gödöllő

295 M Ft
6 szoba
650 m2
Eladó családi ház
Eladó családi ház

Gödöllő

279 M Ft
5 szoba
292 m2
Eladó családi ház
Eladó családi ház

Gödöllő, Királytelep, Alkotmány utca

165 M Ft
8 szoba
275 m2
Eladó családi ház
Eladó családi ház

Gödöllő

279 M Ft
5 szoba
292 m2
Eladó családi ház
Eladó családi ház

Gödöllő

124 M Ft
9 szoba
250 m2
Eladó családi ház
Eladó családi ház

Tápiószentmárton

7.9 M Ft
2 + 1 szoba
86 m2
Eladó családi ház
Eladó családi ház

Gödöllő

199.9 M Ft
10 szoba
390 m2
Eladó családi ház
Eladó családi ház

Kerepes

199 M Ft
6 szoba
360 m2
Eladó családi ház
Eladó családi ház

Tahitótfalu

188 M Ft
7 szoba
280 m2
Eladó családi ház
Eladó családi ház

Budakeszi

130 M Ft
5 szoba
30 m2
Eladó családi ház
Eladó családi ház

Gödöllő

199.9 M Ft
8 szoba
300 m2
Eladó családi ház
Eladó családi ház

Gödöllő

208 M Ft
8 szoba
341 m2
Eladó családi ház
Eladó családi ház

Budaörs, Odvshegy utca

268.9 M Ft
5 szoba
235 m2
Eladó családi ház
Eladó családi ház

Budakeszi, Budakeszi kertváros

140 M Ft
2 szoba
55 m2
Eladó családi ház
Eladó családi ház

Gyál, Gyál út

169.9 M Ft
2 szoba
90 m2

Falusi CSOK ingatlanok

Eladó családi ház
Eladó családi ház

Poroszló, Dobosok útja 8

18.94 M Ft
1 + 1 szoba
116 m2
Eladó családi ház
Eladó családi ház

Háromfa, Kossuth

22.4 M Ft
139 m2
Eladó családi ház
Eladó családi ház

Csemő

39.9 M Ft
3 szoba
80 m2
Eladó családi ház
Eladó családi ház

Bőny

67.8 M Ft
3 szoba
81 m2
Eladó családi ház
Eladó családi ház

Tápióbicske

38 M Ft
3 szoba
50 m2
Eladó családi ház
Eladó családi ház

Ábrahámhegy

139 M Ft
4 szoba
106 m2
Eladó családi ház
Eladó családi ház

Újlengyel

110 M Ft
4 szoba
121 m2
Eladó családi ház
Eladó családi ház

Pápakovácsi

33 M Ft
3 szoba
87 m2