Astora Art House

Eladó családi ház
Gödöllő, földszint

+ 10 kép 1/13
115 000 000 Ft115 M Ft 1 150 000 Ft/m2
4 szoba
100 m2
földszint
építés éve:2026

Részletes adatok

Telekméret: 400 m2
Fűtés: Egyéb
Parkolás: Kocsibeálló
Közmű: Víz, Gáz, Villany, Csatorna
Energetikai besorolás: Nem adta meg a hirdető

Az OTP Bank lakáshitel ajánlataFizetett hirdetés

+36 70 396
Kómár-Benke Nikoletta
referens

Érdekel az OTP Bank kedvezményes lakáshitel ajánlata? *

* A kérdésre „Igen” válasz bejelölése esetén, az „Üzenet küldése” gombra kattintva kijelentem, hogy az OTP Bank Nyrt. Adatkezelési tájékoztatójának tartalmát megismertem és tudomásul vettem.

Eladó családi ház leírása

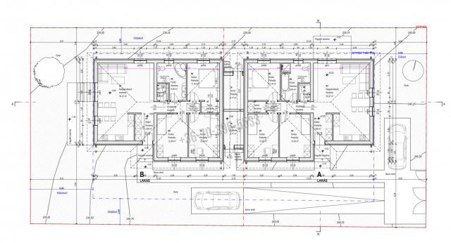
Pest Vármegyében, Budapesttől mindössze 20 percre Gödöllőn, Kertvárosi részen eladásra kínálok egy 735 nm-es sarok telekre tervezett ikerházat.
AZ INGATLANOK TÁROLÓKON KERESZTŰL KAPCSOLÓDNAK EGYMÁSHOZ.
Mindkét ingatlan földszintes kialakítással készül.

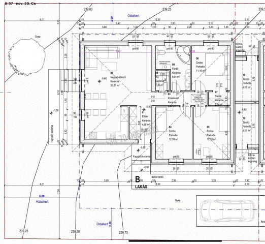
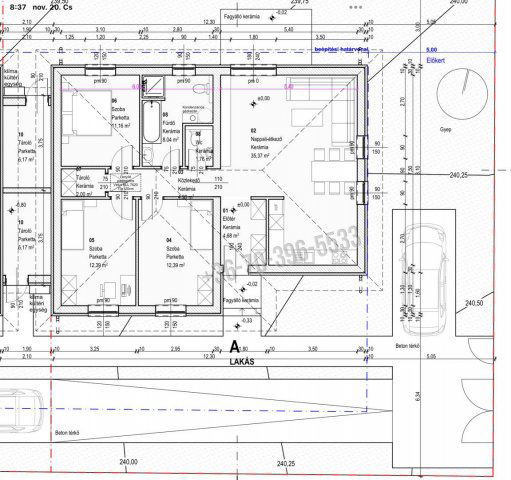
„A” ház jellemzői:
- 335 nm-es kert
- nettó ~100 nm ház
- tágas előtér (~5 nm, szekrény beépítésére van lehetőség)
- 3 szoba (~11 nm, ~12 nm, ~12 nm)
- nappali, konyha, étkező (~35 nm)
- fürdőszoba + WC (~8 nm)
- külön mellékhelyiség (~2 nm)
- tároló (~2 nm)
- közlekedő (~5 nm)
- nagyméretű terasz ˙(~10 nm)
- külső tároló (~6 nm)

„B” ház jellemzői:
-400 nm kert
- nettó ~100 nm ház
- tágas előtér (~5 nm, szekrény beépítésére van lehetőség)
- nappali, konyha, étkező (~35 nm)
- tároló (~2 nm)
- fürdő (~8 nm)
- külön mellékhelyiség (~2 nm)
- terasz (~15 nm)
- közlekedő (~5 nm)
- 3 hálószoba (~11 nm, ~12 nm, ~12 nm)
- külső tároló (~6 nm)

Mindkét ingatlan minőségi anyagokból épül, energiatakarékos kialakítással, a fűtés pedig igény szerint gáz- vagy hőszivattyús rendszerrel is kérhető.
Részletes tájékoztatást, műszaki leírást és vállalást e-mailben küldök.

Kert:
- körbe kerítve (zsaluköves kerítés)
- kis és nagykapu
- térkövezett járda és parkoló
- két ház között kerítés
- építési törmelékektől megtisztítva kerül átadásra

A közelben minden…
-Tesco, Lidl, Aldi, H&M éttermek és egyéb élelmiszerboltok
- Iskola, óvoda, buszmegálló, M3

Az ingatlant nagy múltú, számos referenciával rendelkező kivitelező építi, akivel gördülékeny a munka így szívből tudom ajánlani.
A házak rugalmasan megtekinthetők, hétvégén is, referenciaházak megtekintése csakis előre egyeztetett időpontokban.

Ezekkel támogatom a vásárlást:
- teljes körű, DÍJMENTES hitelügyintézés
- ügyvédi háttértámogatás

Portfóliómban további igényes, új építésű ingatlanok várják. A Referens további hirdetései gombra kattintva érheti el őket.
Keressen bizalommal.

*** A kész házakról készült fotók, referenciaházakról készültek***

Hirdetés feltöltve: 2025. 11. 25. Utoljára módosítva: 2026. 01. 13.

4 szobás családi házak ára Gödöllőn

Ebből az összehasonlításból megtudhatod, hogyan viszonyul a lakás ára a környékbeli családi házak átlagos árához. Ez nem azt jelenti, hogy ennyivel olcsóbb vagy drágább, mint amennyit a lakás ér, hanem hogy ennyivel tér el a környékbeli átlagtól.

Ennek a m² ára
Gödöllő m² ár
1150 e Ft
795 e Ft -45%
Ennek az ára
Gödöllő átlagár
115 M Ft m Ft
127.1 m Ft 9%

Az ingatlan elhelyezkedése

Cím: Gödöllő, földszint

Eladó családi házak a környékről

Eladó családi ház
Eladó családi ház

Remeteszőlős

399.9 M Ft
5 + 2 szoba
260 m2
Eladó családi ház
Eladó családi ház

Gödöllő

199 M Ft
14 szoba
516 m2
Eladó családi ház
Eladó családi ház

Gödöllő

47 M Ft
4 szoba
70 m2
Eladó családi ház
Eladó családi ház

Gödöllő

330 M Ft
7 szoba
393 m2
Eladó családi ház
Eladó családi ház

Budakeszi, Makkosmária

100 M Ft
1 szoba
10 m2
Eladó családi ház
Eladó családi ház

Dunakeszi

250 M Ft
4 szoba
180 m2
Eladó családi ház
Eladó családi ház

Gödöllő

165 M Ft
8 szoba
275 m2
Eladó családi ház
Eladó családi ház

Gödöllő, Királytelep, Alkotmány utca

165 M Ft
8 szoba
275 m2
Eladó családi ház
Eladó családi ház

Tápiószőlős

34.9 M Ft
5 szoba
210 m2
Eladó családi ház
Eladó családi ház

Gödöllő

165 M Ft
8 szoba
275 m2
Eladó családi ház
Eladó családi ház

Gödöllő

280 M Ft
7 szoba
336 m2
Eladó családi ház
Eladó családi ház

Kerepes

81.99 M Ft
5 szoba
102 m2
Eladó családi ház
Eladó családi ház

Kerepes

199 M Ft
6 szoba
360 m2
Eladó családi ház
Eladó családi ház

Gödöllő, Haraszt, Táncsics Mihály út 74

159 M Ft
4 szoba
290 m2
Eladó családi ház
Eladó családi ház

Tápiószentmárton

7.9 M Ft
2 + 1 szoba
86 m2
Eladó családi ház
Eladó családi ház

Tápiógyörgye

19.9 M Ft
3 szoba
65 m2
Eladó családi ház
Eladó családi ház

Gödöllő

279 M Ft
5 szoba
292 m2
Eladó családi ház
Eladó családi ház

Tápiószele

37.9 M Ft
4 szoba
141 m2
Eladó családi ház
Eladó családi ház

Pécel, Reményik Sándor utca

296 M Ft
6 szoba
396 m2
Eladó családi ház
Eladó családi ház

Gödöllő

47 M Ft
5 szoba
70 m2
Eladó családi ház
Eladó családi ház

Budakeszi

130 M Ft
5 szoba
30 m2
Eladó családi ház
Eladó családi ház

Gödöllő

199.9 M Ft
8 szoba
300 m2
Eladó családi ház
Eladó családi ház

Budaörs, Bányász utca

385 M Ft
6 szoba
300 m2
Eladó családi ház
Eladó családi ház

Budaörs, Városközpont utca

119.5 M Ft
5 + 1 szoba
140 m2

Falusi CSOK ingatlanok

Eladó családi ház
Eladó családi ház

Szabadbattyán

136 M Ft
5 szoba
226 m2
Eladó családi ház
Eladó családi ház

Recsk

59 M Ft
2 szoba
70 m2
Eladó családi ház
Eladó családi ház

Gáborján

5.5 M Ft
2 szoba
68 m2
Eladó családi ház
Eladó családi ház

Ceglédbercel

67 M Ft
4 szoba
165 m2
Eladó családi ház
Eladó családi ház

Dombrád

8 M Ft
2 szoba
85 m2
Eladó családi ház
Eladó családi ház

Alattyán

45 M Ft
4 + 1 szoba
186 m2
Eladó családi ház
Eladó családi ház

Bátmonostor

22.9 M Ft
3 szoba
82 m2
Eladó családi ház
Eladó családi ház

Szentbékkálla, Szentbékkálla

63.9 M Ft
2 szoba
143 m2