Eladó családi ház
Gesztely

Figyelem!

Ez az ingatlan a 2019.07.01-től induló falusi CSOK által támogatott településen található

+ 15 kép 1/18
24 900 000 Ft24.9 M Ft 239 423 Ft/m2
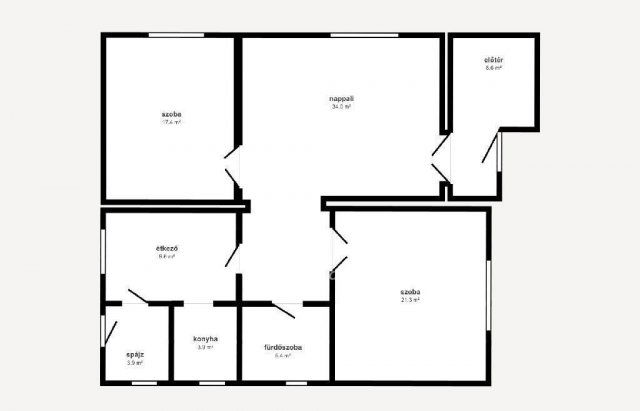
3 szoba
104 m2
építés éve:1985

Részletes adatok

Állapot: Felújítandó
Telekméret: 626 m2
Fűtés: Gázkonvektor
Energetikai besorolás: Nem adta meg a hirdető

Az OTP Bank lakáshitel ajánlataFizetett hirdetés

+36 70 322
Piskóti Tibor Lajos
OTP Ingatlanpont Miskolc Szemere

Érdekel az OTP Bank kedvezményes lakáshitel ajánlata? *

* A kérdésre „Igen” válasz bejelölése esetén, az „Üzenet küldése” gombra kattintva kijelentem, hogy az OTP Bank Nyrt. Adatkezelési tájékoztatójának tartalmát megismertem és tudomásul vettem.

Eladó családi ház leírása

Gesztely település kertvárosi részén eladó egy felújítandó 104 nm-es tégla építésű családi ház! Az ingatlan egy 626 m2-es portán helyezkedik el, tetőtér beépítési lehetőséggel. A tágas nappaliból érhető el a külön nyíló 2 szoba, fürdőszoba, az étkezőből nyíló konyha és spájz. Fűtése gázkonvektoros, a használati melegvíz hőtárolós bojlerrel megoldott. A tető jó állapotú, nyílászárói eredeti fa nyílászárók. Minden közművel ellátott, szennyvíz csatlakozási lehetőség telken belül. Az ingatlan stabil szerkezetű, jó adottságokkal rendelkező, csendes környezetben található.
Elhelyezkedése jó, 500 méterre a 37-es úttól, 10 km-re Miskolctól.
A település rendelkezik az alapvető szociális, nevelési intézményekkel. Infrastruktúrája kiépített, kereskedelmi és szolgáltatási ellátása biztosított.
A ház per és tehermentesen vehető át, birtokbaadás rövid idő alatt megoldott.
OTP Banki hátterünkkel állunk ügyfeleink rendelkezésére finanszírozási kérdésekben legyen szó akár CSOK-ról, lakáshitelről. Az ingatlan alkalmas az Otthon Start Program 3 %-os hitelre!
Amennyiben ház adottságai, előnyös elhelyezkedése felkeltette érdeklődését, és szívesen megtekintené személyesen az ingatlant, kérem hívjon bizalommal akár hétvégén is! M307189

Referencia szám: M307189

Hirdetés feltöltve: 2025. 10. 15. Utoljára módosítva: 2025. 10. 15.

Az ingatlan elhelyezkedése

Cím: Gesztely

Eladó ingatlanok a környékről

Eladó panellakás
Eladó panellakás

Miskolc

28.9 M Ft
2 szoba
51 m2
Eladó családi ház
Eladó családi ház

Onga

45 M Ft
4 szoba
120 m2
Eladó családi ház
Eladó családi ház

Ónod, Nyéki utca

20.7 M Ft
2 + 1 szoba
90 m2
Eladó téglalakás
Eladó téglalakás

Miskolc

24.9 M Ft
1 + 1 szoba
44 m2
Eladó családi ház
Eladó családi ház

Gesztely

24.9 M Ft
3 szoba
104 m2
Eladó családi ház
Eladó családi ház

Bükkábrány

75 M Ft
5 szoba
140 m2
Eladó panellakás
Eladó panellakás

Miskolc

33.9 M Ft
2 szoba
55 m2
Eladó családi ház
Eladó családi ház

Szuhogy

26.99 M Ft
3 szoba
250 m2
Eladó családi ház
Eladó családi ház

Szendrő

22 M Ft
4 szoba
110 m2
Eladó panellakás
Eladó panellakás

Miskolc

39.9 M Ft
3 szoba
73 m2
Eladó családi ház
Eladó családi ház

Nemesbikk, Kossuth utca 3

4.5 M Ft
2 szoba
80 m2
Eladó családi ház
Eladó családi ház

Miskolc

61.9 M Ft
4 szoba
96 m2
Eladó téglalakás
Eladó téglalakás

Kazincbarcika

10.99 M Ft
1 szoba
25 m2
Eladó családi ház
Eladó családi ház

Kisgyőr, Rákóczi

59.9 M Ft
3 szoba
100 m2
Eladó családi ház
Eladó családi ház

Miskolc

175 M Ft
4 szoba
230 m2
Eladó családi ház
Eladó családi ház

Ózd

13 M Ft
5 szoba
150 m2
Eladó családi ház
Eladó családi ház

Szikszó

36.9 M Ft
3 szoba
88 m2
Eladó panellakás
Eladó panellakás

Miskolc

33.9 M Ft
2 szoba
55 m2
Eladó családi ház
Eladó családi ház

Miskolc

69.5 M Ft
4 + 1 szoba
142 m2
Eladó családi ház
Eladó családi ház

Gesztely

9.9 M Ft
2 szoba
75 m2
Eladó panellakás
Eladó panellakás

Miskolc

24.4 M Ft
1 + 1 szoba
35 m2
Eladó téglalakás
Eladó téglalakás

Miskolc

74.9 M Ft
2 + 1 szoba
89 m2
Eladó családi ház
Eladó családi ház

Mezőkövesd

29.9 M Ft
3 szoba
72 m2
Eladó családi ház
Eladó családi ház

Miskolc

18.9 M Ft
3 szoba
61 m2

Falusi CSOK ingatlanok

Eladó családi ház
Eladó családi ház

Szil

25 M Ft
2 szoba
90 m2
Eladó családi ház
Eladó családi ház

Bácsborsód

13 M Ft
3 szoba
84 m2
Eladó családi ház
Eladó családi ház

Szőlősgyörök, Táncsics Mihály utca

47.999 M Ft
5 szoba
105 m2
Eladó családi ház
Eladó családi ház

Erdősmecske

32 M Ft
3 szoba
115 m2
Eladó családi ház
Eladó családi ház

Kánya

27.6 M Ft
3 + 1 szoba
62 m2
Eladó családi ház
Eladó családi ház

Magyarpolány

53 M Ft
2 szoba
71 m2
Eladó családi ház
Eladó családi ház

Ceglédbercel

63 M Ft
3 szoba
70 m2
Eladó családi ház
Eladó családi ház

Tés

34.9 M Ft
2 szoba
60 m2

Falusi CSOK ingatlanok

Eladó családi ház
Eladó családi ház

Segesd

3.9 M Ft
2 szoba
65 m2
Eladó családi ház
Eladó családi ház

Rém

11 M Ft
2 szoba
60 m2
Eladó családi ház
Eladó családi ház

Gáborjánháza

23 M Ft
2 szoba
117 m2
Eladó családi ház
Eladó családi ház

Szigetújfalu

36 M Ft
2 szoba
58 m2
Eladó családi ház
Eladó családi ház

Újszilvás

34.9 M Ft
3 szoba
66 m2
Eladó családi ház
Eladó családi ház

Zsámbok

45 M Ft
2 szoba
60 m2
Eladó családi ház
Eladó családi ház

Ceglédbercel

23 M Ft
2 + 1 szoba
80 m2
Eladó családi ház
Eladó családi ház

Nyírtura

99 M Ft
4 szoba
280 m2