BAM Living

Eladó családi ház
Gárdony

+ 17 kép 1/20
99 900 000 Ft99.9 M Ft 580 814 Ft/m2
3 + 3 szoba
172 m²
építés éve:1988

Részletes adatok

Állapot: Átlagos
Telekméret: 1169 m2
Fűtés: Gázkazán
Energetikai besorolás: Nem adta meg a hirdető

Az OTP Bank lakáshitel ajánlataFizetett hirdetés

+36 20 534
Gombos Zita
Szigetszentmiklós OTP Ip

Érdekel az OTP Bank kedvezményes lakáshitel ajánlata? *

* A kérdésre „Igen” válasz bejelölése esetén, az „Üzenet küldése” gombra kattintva kijelentem, hogy az OTP Bank Nyrt. Adatkezelési tájékoztatójának tartalmát megismertem és tudomásul vettem.

Eladó családi ház leírása

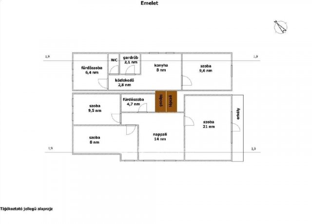
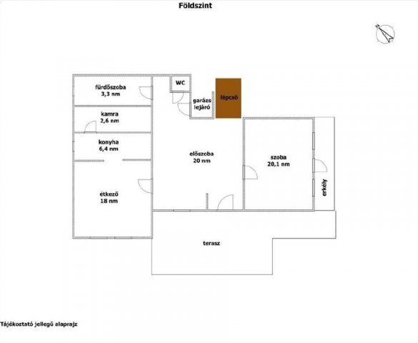
Fejér megye, Gárdony, Dinnyés 172 nm-es kétgenerációs családi ház eladó. A tehermentes, tégla falazatú ingatlan egy 1169 nm-es összközműves telken helyezkedik el, közel a vasútállomáshoz. A duplakomfortos családi házban 2 nappali, 1 szoba, 3 félszoba, 2 konyha, tágas étkező, kamra, 3 fürdőszoba, 2 külön WC található, valamint tartozik hozzá terasz, 2 erkély, garázs, pince és kazánház. A fűtésről gázkazán és vegyes tüzelésű kazán gondoskodik, radiátoros hő leadással. Az ingatlan kétgenerációs, rezsije kedvező.
A vasútállomás, buszmegálló, bolt séta távolságra találhatóak. Az ingatlanban rengeteg lehetőség rejlik, több szoba kialakítható, egy hangulatos családi ház a Velencei tó közelében.

Referencia szám: M322839

Az OTP Bankcsoport teljeskörű ügyintézéssel áll az eladók és a vevők rendelkezésére! A kínálatunkból választott ingatlan finanszírozásához kedvezményes hitelkonstrukciókat kínálunk. Az adásvételi szerződés megkötéséhez igény szerint megbízható ügyvédi közreműködést biztosítunk és segítséget nyújtunk az adásvételhez kapcsolódó ügyek intézéséhez.

Az energetikai tanúsítvány készítése folyamatban van, amint rendelkezésre áll, úgy azzal a hirdetés frissítésre kerül.

Hirdetés feltöltve: 2026. 04. 20. Utoljára módosítva: 2026. 05. 10.

Az ingatlan elhelyezkedése

Cím: Gárdony

Eladó családi házak a környékről

Pusztaszabolcs
Eladó családi ház

Pusztaszabolcs

143.9 M Ft
4 szoba
149 m²
Gárdony, Géza fejedelem útja
Eladó családi ház

Gárdony

49.9 M Ft
2 szoba
47 m²
Gánt, Gánti út
Eladó családi ház

Gánt

29.9 M Ft
2 + 1 szoba
40 m²
Gárdony
Eladó családi ház

Gárdony

148.9 M Ft
6 szoba
182 m²
Gárdony, Gárdonyi Géza utca
Eladó családi ház

Gárdony

59 M Ft
3 szoba
100 m²
Székesfehérvár
Eladó családi ház

Székesfehérvár

59 M Ft
3 szoba
100 m²
Gárdony
Eladó családi ház

Gárdony

163 M Ft
5 + 4 szoba
200 m²
Velence, Liget utca
Eladó családi ház

Velence

99.8 M Ft
2 + 1 szoba
134 m²
Gárdony
Eladó családi ház

Gárdony

120 M Ft
5 szoba
164 m²
Szabadbattyán
Eladó családi ház

Szabadbattyán

357.518 M Ft
9 + 2 szoba
1053 m²
Felcsút, Rákóczi Ferenc utca
Eladó családi ház

Felcsút

32 M Ft
2 + 1 szoba
55 m²
Gárdony, Gárdonyi Géza utca
Eladó családi ház

Gárdony

59 M Ft
3 szoba
100 m²
Gárdony
Eladó családi ház

Gárdony

145 M Ft
4 szoba
150 m²
Gárdony
Eladó családi ház

Gárdony

89.5 M Ft
2 + 2 szoba
100 m²
Gárdony
Eladó családi ház

Gárdony

69 M Ft
4 szoba
113 m²
Alcsútdoboz, Szabadság utca
Eladó családi ház

Alcsútdoboz

320 M Ft
12 szoba
620 m²
Gárdony
Eladó családi ház

Gárdony

39.9 M Ft
2 szoba
49 m²
Gárdony
Eladó családi ház

Gárdony

59.99 M Ft
4 szoba
85 m²
Gárdony
Eladó családi ház

Gárdony

115 M Ft
4 szoba
116 m²
Bicske, Baboshegy
Eladó családi ház

Bicske

26.9 M Ft
1 szoba
30 m²
Iváncsa, Táncsics Mihály utca
Eladó családi ház

Iváncsa

86 M Ft
4 szoba
120 m²
Tabajd
Eladó családi ház

Tabajd

22 M Ft
3 szoba
75 m²
Gárdony
Eladó családi ház

Gárdony

73 M Ft
7 szoba
120 m²
Mány
Eladó családi ház

Mány

18.5 M Ft
3 szoba
70 m²

Falusi CSOK ingatlanok

Zalaszentiván
Eladó ikerház

Zalaszentiván

54.99 M Ft
5 szoba
160 m²
Jánosháza
Eladó családi ház

Jánosháza

32 M Ft
2 szoba
116 m²
Sződ
Eladó családi ház

Sződ

116 M Ft
5 szoba
136 m²
Sásd
Eladó családi ház

Sásd

35.9 M Ft
4 + 1 szoba
71 m²
Nagyhegyes
Eladó családi ház

Nagyhegyes

92900 M Ft
3 + 1 szoba
120 m²
Érpatak
Eladó családi ház

Érpatak

35 M Ft
4 szoba
160 m²
Beremend, 7827 Beremend, Petőfi Sándor utca 10
Eladó családi ház

Beremend

11.95 M Ft
1 + 1 szoba
124 m²
Fonyód, Rózsa utca
Eladó ikerház

Fonyód

105 M Ft
5 szoba
134 m²