Astora Márvány8

Eladó családi ház
Gárdony

+ 17 kép 1/20
99 900 000 Ft99.9 M Ft 580 814 Ft/m2
3 + 3 szoba
172 m²
építés éve:1988

Részletes adatok

Állapot: Átlagos
Telekméret: 1169 m2
Fűtés: Gázkazán
Parkolás: Garázs
Energetikai besorolás: C

Az OTP Bank lakáshitel ajánlataFizetett hirdetés

+36 20 487
Darnai Henrietta
referens

Érdekel az OTP Bank kedvezményes lakáshitel ajánlata? *

* A kérdésre „Igen” válasz bejelölése esetén, az „Üzenet küldése” gombra kattintva kijelentem, hogy az OTP Bank Nyrt. Adatkezelési tájékoztatójának tartalmát megismertem és tudomásul vettem.

Eladó családi ház leírása

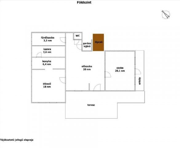
Fejér megye, Gárdony, Dinnyés 172 nm-es kétgenerációs családi ház eladó. A tehermentes, tégla falazatú ingatlan egy 1169 nm-es összközműves telken helyezkedik el, közel a vasútállomáshoz. A duplakomfortos családi házban 2 nappali, 1 szoba, 3 félszoba, 2 konyha, tágas étkező, kamra,3 fürdőszoba, 2 külön WC található, valamint tartozik hozzá terasz, 2 erkély, garázs, pince és kazánház. A fűtésről gázkazán és vegyes tüzelésű kazán gondoskodik, radiátoros hő leadással. Az ingatlan kétgenerációs, rezsije kedvező. A vasútállomás, buszmegálló, bolt séta távolságra találhatóak. Az ingatlanban rengeteg lehetőség rejlik, több szoba kialakítható, egy hangulatos családi ház a Velencei tó közelében. Teljes körű ügyintézésben segítjük ügyfeleinket díjtalanul: CSOK igénylése, kedvezményes hitel mobil bankári szolgáltatással, adásvétel teljes lebonyolításával.

Hirdetés feltöltve: 2026. 02. 19. Utoljára módosítva: 2026. 04. 01.

Az ingatlan elhelyezkedése

Cím: Gárdony

Eladó családi házak a környékről

Gárdony
Eladó családi ház

Gárdony

98 M Ft
4 szoba
104 m²
Velence, Liget utca
Eladó családi ház

Velence

149 M Ft
2 + 2 szoba
150 m²
Bicske, Baboshegy
Eladó családi ház

Bicske

26.9 M Ft
1 szoba
30 m²
Gárdony, Gárdonyi Géza utca
Eladó családi ház

Gárdony

59 M Ft
3 szoba
100 m²
Pusztaszabolcs
Eladó családi ház

Pusztaszabolcs

143.9 M Ft
4 szoba
149 m²
Gárdony
Eladó családi ház

Gárdony

255 M Ft
10 szoba
280 m²
Mány
Eladó családi ház

Mány

18.5 M Ft
3 szoba
70 m²
Etyek
Eladó családi ház

Etyek

160 M Ft
6 szoba
228 m²
Lepsény, Róka sétány
Eladó családi ház

Lepsény

64.9 M Ft
5 + 1 szoba
203 m²
Adony
Eladó családi ház

Adony

8.7 M Ft
2 szoba
30 m²
Alcsútdoboz, Szabadság utca
Eladó családi ház

Alcsútdoboz

320 M Ft
12 szoba
620 m²
Velence
Eladó családi ház

Velence

42.9 M Ft
1 szoba
40 m²
Székesfehérvár
Eladó családi ház

Székesfehérvár

59 M Ft
3 szoba
100 m²
Gárdony
Eladó családi ház

Gárdony

89.9 M Ft
4 + 1 szoba
102 m²
Gárdony
Eladó családi ház

Gárdony

59.99 M Ft
4 szoba
85 m²
Mór
Eladó családi ház

Mór

110 M Ft
12 szoba
340 m²
Gárdony, Álmos Vezér utca
Eladó családi ház

Gárdony

95.6 M Ft
3 + 2 szoba
111 m²
Gárdony
Eladó családi ház

Gárdony

163 M Ft
5 + 4 szoba
200 m²
Gárdony, Géza fejedelem útja
Eladó családi ház

Gárdony

49.9 M Ft
2 szoba
47 m²
Bakonycsernye
Eladó családi ház

Bakonycsernye

39 M Ft
3 szoba
350 m²
Gárdony
Eladó családi ház

Gárdony

154.9 M Ft
4 szoba
173 m²
Gárdony
Eladó családi ház

Gárdony

145 M Ft
4 szoba
150 m²
Gárdony
Eladó családi ház

Gárdony

129 M Ft
4 szoba
130 m²
Gárdony, Gárdonyi Géza utca
Eladó családi ház

Gárdony

59 M Ft
3 szoba
100 m²

Falusi CSOK ingatlanok

Tápiógyörgye
Eladó családi ház

Tápiógyörgye

8.5 M Ft
2 szoba
63 m²
Sárosd
Eladó családi ház

Sárosd

21.9 M Ft
3 szoba
86 m²
Bag
Eladó családi ház

Bag

16.9 M Ft
6 szoba
160 m²
Balatonederics
Eladó családi ház

Balatonederics

119 M Ft
3 szoba
140 m²
Szegvár
Eladó családi ház

Szegvár

14.3 M Ft
3 + 1 szoba
130 m²
Adony
Eladó családi ház

Adony

48 M Ft
4 szoba
75 m²
Kőröshegy
Eladó családi ház

Kőröshegy

98.9 M Ft
5 szoba
104 m²
Balatonőszöd
Eladó téglalakás

Balatonőszöd

167 M Ft
4 szoba
81 m²