River Life

Eladó családi ház
Gárdony

69 800 000 Ft69.8 M Ft 606 957 Ft/m2
3 + 1 szoba
115 m2
építés éve:1980

Részletes adatok

Állapot: Felújítandó
Telekméret: 346 m2
Fűtés: Gázkazán
Közmű: Víz, Gáz, Villany, Csatorna
Energetikai besorolás: Nem adta meg a hirdető
Zenga Premier

Friss hirdetések, amiket nem találsz meg más ingatlankereső portálon.

Fedezd fel elsőként a Zenga Premier címkés eladó ingatlanokat!

További részletek a zenga.hu-n

Az OTP Bank lakáshitel ajánlataFizetett hirdetés

+36 70 884
Lepsényi Kornél
referens

Érdekel az OTP Bank kedvezményes lakáshitel ajánlata? *

* A kérdésre „Igen” válasz bejelölése esetén, az „Üzenet küldése” gombra kattintva kijelentem, hogy az OTP Bank Nyrt. Adatkezelési tájékoztatójának tartalmát megismertem és tudomásul vettem.

Eladó családi ház leírása

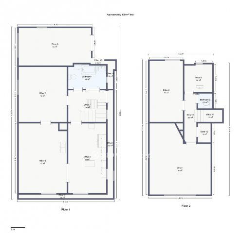
Gárdony csendes részén eladó egy 115 m?-es, téglaépítésű családi ház, amely kiváló lehetőséget kínál saját igények szerinti felújításra és átalakításra.

Az 346 m?-es telken elhelyezkedő ingatlan praktikus elosztású: a földszinten konyha?nappali, fürdőszoba és egy szoba, míg az emeleten három külön nyíló szoba, valamint külön zuhanyzó és mosdóhelyiség található, így ideális akár nagyobb család számára is.

A fűtésről gáz-cirkó kazán gondoskodik, emellett az ingatlanban cserépkályha is helyet kapott, amely kellemes hangulatot és alternatív fűtési lehetőséget biztosít.

Az ingatlan felújításra szorul, így új tulajdonosa saját elképzelései szerint alakíthatja ki otthonát vagy akár befektetési célra is kiváló választás lehet.

Hirdetés feltöltve: 2026. 01. 24. Utoljára módosítva: 2026. 01. 24.

4 szobás családi házak ára Gárdonyban

Ebből az összehasonlításból megtudhatod, hogyan viszonyul a lakás ára a környékbeli családi házak átlagos árához. Ez nem azt jelenti, hogy ennyivel olcsóbb vagy drágább, mint amennyit a lakás ér, hanem hogy ennyivel tér el a környékbeli átlagtól.

Ennek a m² ára
Gárdony m² ár
607 e Ft
957 e Ft 37%
Ennek az ára
Gárdony átlagár
69.8 M Ft m Ft
107.5 m Ft 35%

Az ingatlan elhelyezkedése

Cím: Gárdony

Eladó családi házak a környékről

Eladó családi ház
Eladó családi ház

Besnyő

25 M Ft
1 szoba
30 m2
Eladó családi ház
Eladó családi ház

Gárdony

57.5 M Ft
5 szoba
104 m2
Eladó családi ház
Eladó családi ház

Csákvár, Kossuth utca

76 M Ft
1 szoba
181 m2
Eladó családi ház
Eladó családi ház

Gárdony

163 M Ft
5 + 4 szoba
200 m2
Eladó családi ház
Eladó családi ház

Pusztavám

22.9 M Ft
3 szoba
103 m2
Eladó családi ház
Eladó családi ház

Sárbogárd, Tinódy utca

19.9 M Ft
3 szoba
75 m2
Eladó családi ház
Eladó családi ház

Gárdony

154.9 M Ft
5 + 3 szoba
200 m2
Eladó családi ház
Eladó családi ház

Alcsútdoboz, Szabadság utca

320 M Ft
12 szoba
620 m2
Eladó családi ház
Eladó családi ház

Gárdony

154.9 M Ft
7 szoba
196 m2
Eladó családi ház
Eladó családi ház

Gárdony, Álmos Vezér utca

89.5 M Ft
3 + 2 szoba
111 m2
Eladó családi ház
Eladó családi ház

Gárdony

255 M Ft
10 szoba
280 m2
Eladó családi ház
Eladó családi ház

Gárdony

148.9 M Ft
6 szoba
182 m2
Eladó családi ház
Eladó családi ház

Gárdony

115 M Ft
2 + 2 szoba
116 m2
Eladó családi ház
Eladó családi ház

Székesfehérvár

59 M Ft
3 szoba
100 m2
Eladó családi ház
Eladó családi ház

Gárdony

249.9 M Ft
4 szoba
275 m2
Eladó családi ház
Eladó családi ház

Kápolnásnyék, Bem utca

119.175 M Ft
5 szoba
156 m2
Eladó családi ház
Eladó családi ház

Mór

110 M Ft
12 szoba
340 m2
Eladó családi ház
Eladó családi ház

Velence

42.9 M Ft
1 szoba
40 m2
Eladó családi ház
Eladó családi ház

Lepsény, Róka sétány

64.9 M Ft
5 + 1 szoba
203 m2
Eladó családi ház
Eladó családi ház

Gárdony

148.9 M Ft
6 szoba
182 m2
Eladó családi ház
Eladó családi ház

Gárdony

145.5 M Ft
4 szoba
150 m2
Eladó családi ház
Eladó családi ház

Szabadbattyán

357.518 M Ft
9 + 2 szoba
1053 m2
Eladó családi ház
Eladó családi ház

Velence

85.9 M Ft
4 szoba
103 m2
Eladó családi ház
Eladó családi ház

Pusztavám

22.9 M Ft
3 szoba
103 m2

Falusi CSOK ingatlanok

Eladó téglalakás
Eladó téglalakás

Várbalog

38.9 M Ft
3 szoba
45 m2
Eladó ikerház
Eladó ikerház

Balatonakali

129 M Ft
4 szoba
145 m2
Eladó családi ház
Eladó családi ház

Tormafölde

15 M Ft
2 szoba
74 m2
Eladó családi ház
Eladó családi ház

Somogyszil

27.9 M Ft
3 szoba
140 m2
Eladó családi ház
Eladó családi ház

Kenderes

149.9 M Ft
6 + 2 szoba
420 m2
Eladó családi ház
Eladó családi ház

Újlengyel

110 M Ft
4 szoba
121 m2
Eladó családi ház
Eladó családi ház

Nagyhegyes

45.7 M Ft
2 szoba
55 m2
Eladó családi ház
Eladó családi ház

Kaposgyarmat

695 M Ft
6 szoba
610 m2