Astora Art House

Eladó családi ház
Gárdony

+ 9 kép 1/12
82 000 000 Ft82 M Ft 780 952 Ft/m2
2 szoba
105 m2
építés éve:1960

Részletes adatok

Állapot: Felújított
Telekméret: 873 m2
Fűtés: Elektromos
Parkolás: Kocsibeálló
Energetikai besorolás: Nem adta meg a hirdető

Az OTP Bank lakáshitel ajánlataFizetett hirdetés

+36 20 927
Szegedi Éva
referens

Érdekel az OTP Bank kedvezményes lakáshitel ajánlata? *

* A kérdésre „Igen” válasz bejelölése esetén, az „Üzenet küldése” gombra kattintva kijelentem, hogy az OTP Bank Nyrt. Adatkezelési tájékoztatójának tartalmát megismertem és tudomásul vettem.

Eladó családi ház leírása

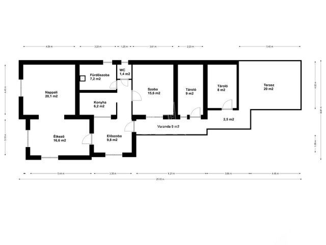
4890. Gárdonyban, 10 perc gyalogos távolságra a központtól és vasútállomástól, 1960-as években épült, 90-es évek elején bővített, 2016-ban és 2020-ban felújított, nettó 81 m2 nettó alapterületű, földszintes, szigetelt családi ház, verandával, terasszal, tárolóval, pincével, összközműves 873 m2-es telken eladó.

A kiváló állapotú eredeti vertfalú épület homlokzatára és a födémre kőzetgyapot hőszigetelés, a bővített tégla szerkezetű épületrész homlokzatára 8 cm-es grafitos hőszigetelés került. Az épület fűtését elektromos fűtőpanelek biztosítják alacsony fenntartási költségek mellett.

A ház 37 m2-es nappali-étkező, előszoba-étkező, konyha, fürdőszoba, wc, közlekedő helyiségekből áll. További hálószoba leválasztással kialakítható, illetve a verandáról nyíló jelenleg tároló funkciót ellátó helyiség is alkalmas lehet szoba kialakítására. Az épülethez csatlakozik egy tároló és egy 20 m2-es terasz, illetve a ház mellett található egy külön épület, fedett kiülő és pince. A kert gondozott, öntözése ásott kútból lehetséges. Ár: 82 MFt ...TOVÁBBI, TÖBBEZRES INGATLAN KÍNÁLAT: www.gdn-ingatlan.hu - GDN azonosító: 389610

Hirdetés feltöltve: 2025. 11. 13. Utoljára módosítva: 2025. 11. 13.

2 szobás családi házak ára Gárdonyban

Ebből az összehasonlításból megtudhatod, hogyan viszonyul a lakás ára a környékbeli családi házak átlagos árához. Ez nem azt jelenti, hogy ennyivel olcsóbb vagy drágább, mint amennyit a lakás ér, hanem hogy ennyivel tér el a környékbeli átlagtól.

Ennek a m² ára
Gárdony m² ár
781 e Ft
678 e Ft -15%
Ennek az ára
Gárdony átlagár
82 M Ft m Ft
41.8 m Ft -96%

Az ingatlan elhelyezkedése

Cím: Gárdony

Eladó családi házak a környékről

Eladó családi ház
Eladó családi ház

Gárdony

74.9 M Ft
3 + 1 szoba
98 m2
Eladó családi ház
Eladó családi ház

Pusztavám

22.9 M Ft
3 szoba
103 m2
Eladó családi ház
Eladó családi ház

Baracska, Határ utca

74.9 M Ft
3 szoba
155 m2
Eladó családi ház
Eladó családi ház

Székesfehérvár, Belváros

60 M Ft
2 szoba
100 m2
Eladó családi ház
Eladó családi ház

Gárdony

145 M Ft
4 szoba
150 m2
Eladó családi ház
Eladó családi ház

Gárdony

154.9 M Ft
7 szoba
196 m2
Eladó családi ház
Eladó családi ház

Gárdony, Álmos Vezér utca

89.5 M Ft
3 + 2 szoba
111 m2
Eladó családi ház
Eladó családi ház

Gárdony, Vak Bottyán utca

139 M Ft
6 szoba
208 m2
Eladó családi ház
Eladó családi ház

Kápolnásnyék, Bem utca

119.175 M Ft
5 szoba
156 m2
Eladó családi ház
Eladó családi ház

Gárdony

57.5 M Ft
5 szoba
104 m2
Eladó családi ház
Eladó családi ház

Gárdony

148.9 M Ft
6 szoba
182 m2
Eladó családi ház
Eladó családi ház

Dunaújváros, Óváros utca

79.9 M Ft
5 szoba
190 m2
Eladó családi ház
Eladó családi ház

Gárdony

255 M Ft
10 szoba
280 m2
Eladó családi ház
Eladó családi ház

Gárdony, Kossuth utca

127 M Ft
4 szoba
170 m2
Eladó családi ház
Eladó családi ház

Dunaújváros, Petőfi Sándor utca 54

44 M Ft
3 szoba
70 m2
Eladó családi ház
Eladó családi ház

Mór

110 M Ft
12 szoba
340 m2
Eladó családi ház
Eladó családi ház

Gárdony

54 M Ft
4 szoba
85 m2
Eladó családi ház
Eladó családi ház

Pusztaszabolcs

143.9 M Ft
4 szoba
149 m2
Eladó családi ház
Eladó családi ház

Gárdony

115 M Ft
2 + 2 szoba
116 m2
Eladó családi ház
Eladó családi ház

Pusztavám

22.9 M Ft
3 szoba
103 m2
Eladó családi ház
Eladó családi ház

Velence

42.9 M Ft
1 szoba
40 m2
Eladó családi ház
Eladó családi ház

Gárdony, Gárdonyi Géza utca

59 M Ft
3 szoba
100 m2
Eladó családi ház
Eladó családi ház

Székesfehérvár

64.9 M Ft
5 szoba
144 m2
Eladó családi ház
Eladó családi ház

Gárdony

125 M Ft
4 szoba
116 m2

Falusi CSOK ingatlanok

Eladó családi ház
Eladó családi ház

Tab, Rózsadomb utca

79 M Ft
3 szoba
93 m2
Eladó családi ház
Eladó családi ház

Tápióság

12.9 M Ft
1 szoba
50 m2
Eladó panellakás
Eladó panellakás

Pétfürdő

49.9 M Ft
3 szoba
71 m2
Eladó családi ház
Eladó családi ház

Fenyőfő

79 M Ft
2 szoba
150 m2
Eladó családi ház
Eladó családi ház

Iváncsa

73.9 M Ft
1 + 3 szoba
97 m2
Eladó családi ház
Eladó családi ház

Erdősmecske

32 M Ft
3 szoba
115 m2
Eladó családi ház
Eladó családi ház

Tiszaalpár

39.9 M Ft
3 szoba
132 m2
Eladó családi ház
Eladó családi ház

Újkígyós

19.99 M Ft
2 + 1 szoba
72 m2