Oasis Residence

Eladó családi ház
Gárdony

+ 17 kép 1/20
48 800 000 Ft48.8 M Ft 587 952 Ft/m2
3 szoba
83 m2
építés éve:1970

Részletes adatok

Állapot: Átlagos
Telekméret: 425 m2
Fűtés: Egyéb
Közmű: Víz, Villany, Csatorna
Energetikai besorolás: Nem adta meg a hirdető

Az OTP Bank lakáshitel ajánlataFizetett hirdetés

+36 30 394
Maja Ingatlanközvetítő Kft.
Maja Ingatlanközvetítő Kft.

Érdekel az OTP Bank kedvezményes lakáshitel ajánlata? *

* A kérdésre „Igen” válasz bejelölése esetén, az „Üzenet küldése” gombra kattintva kijelentem, hogy az OTP Bank Nyrt. Adatkezelési tájékoztatójának tartalmát megismertem és tudomásul vettem.

Eladó családi ház leírása

Gárdonyban eladó lakható ház!

Távolságok:
- Velencei tó, Spar 350 méterre;
- Vasútállomás kb. 900 méterre;
- vasúti sín 30 méterre az út túloldalán fut.
Telek:
- 425 m2-es telek, körbekerítve;
- vezetékes víz, villany, csatorna;
- udvarban szaletli, kerti szerszámosház, bográcsozóhely, kerti csap, fúrt kút.

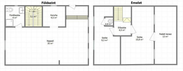
Ház:
- kétszintes 76 m2-es nyaraló 13 m2-es fedett terasszal;
- téglából épült, betonfödémmel rendelkezik;
- 2 szoba + nappali;
- szerkezetileg jó állapotú, korszerűsítést, felújítást igényel;
- 15 cm-es homlokzati szigetelést elkezdték;
- fűtése: vegyestüzelésű kazán radiátoros körön;
- 1 db klíma a nappaliban;
- a nappali egy része alatt elektromos padlófűtés van;
- 2 kémény van, egyikbe bekötve a vegyes tüzelésű kazán.

Ára: 50 millió Ft

Érdeklődni: Kardos Marianna, 06 30 394 9247

Hirdetés feltöltve: 2025. 11. 08. Utoljára módosítva: 2025. 12. 30.

3 szobás családi házak ára Gárdonyban

Ebből az összehasonlításból megtudhatod, hogyan viszonyul a lakás ára a környékbeli családi házak átlagos árához. Ez nem azt jelenti, hogy ennyivel olcsóbb vagy drágább, mint amennyit a lakás ér, hanem hogy ennyivel tér el a környékbeli átlagtól.

Ennek a m² ára
Gárdony m² ár
588 e Ft
774 e Ft 24%
Ennek az ára
Gárdony átlagár
48.8 M Ft m Ft
55.1 m Ft 12%

Az ingatlan elhelyezkedése

Cím: Gárdony

Eladó családi házak a környékről

Eladó családi ház
Eladó családi ház

Gárdony

163 M Ft
5 + 4 szoba
200 m2
Eladó családi ház
Eladó családi ház

Gárdony

154.9 M Ft
5 + 3 szoba
200 m2
Eladó családi ház
Eladó családi ház

Gárdony

154.9 M Ft
7 szoba
196 m2
Eladó családi ház
Eladó családi ház

Gárdony

47.5 M Ft
2 szoba
56 m2
Eladó családi ház
Eladó családi ház

Gárdony

125 M Ft
4 szoba
116 m2
Eladó családi ház
Eladó családi ház

Bakonycsernye

39 M Ft
3 szoba
350 m2
Eladó családi ház
Eladó családi ház

Gárdony

57.5 M Ft
5 szoba
104 m2
Eladó családi ház
Eladó családi ház

Szabadbattyán

357.518 M Ft
9 + 2 szoba
1053 m2
Eladó családi ház
Eladó családi ház

Gárdony, Gárdonyi Géza utca

59 M Ft
3 szoba
100 m2
Eladó családi ház
Eladó családi ház

Tordas, Szabadság út

29.9 M Ft
2 szoba
63 m2
Eladó családi ház
Eladó családi ház

Kápolnásnyék

35 M Ft
2 szoba
74 m2
Eladó családi ház
Eladó családi ház

Gárdony

39.9 M Ft
2 + 1 szoba
70 m2
Eladó családi ház
Eladó családi ház

Kápolnásnyék, Bem utca

108.675 M Ft
5 szoba
136 m2
Eladó családi ház
Eladó családi ház

Sárbogárd, Tinódy utca

19.9 M Ft
3 szoba
75 m2
Eladó családi ház
Eladó családi ház

Kápolnásnyék, Bem utca

119.175 M Ft
5 szoba
156 m2
Eladó családi ház
Eladó családi ház

Velence

85.9 M Ft
4 szoba
103 m2
Eladó családi ház
Eladó családi ház

Mór

110 M Ft
12 szoba
340 m2
Eladó családi ház
Eladó családi ház

Gárdony

129 M Ft
4 szoba
130 m2
Eladó családi ház
Eladó családi ház

Mány

18.5 M Ft
3 szoba
70 m2
Eladó családi ház
Eladó családi ház

Gárdony

148.9 M Ft
6 szoba
182 m2
Eladó családi ház
Eladó családi ház

Velence

80 M Ft
6 szoba
200 m2
Eladó családi ház
Eladó családi ház

Tordas

105 M Ft
3 szoba
75 m2
Eladó családi ház
Eladó családi ház

Gárdony

255 M Ft
10 szoba
280 m2
Eladó családi ház
Eladó családi ház

Gárdony

179 M Ft
5 szoba
194 m2

Falusi CSOK ingatlanok

Eladó családi ház
Eladó családi ház

Hosszúpereszteg

27.9 M Ft
4 szoba
121 m2
Eladó családi ház
Eladó családi ház

Magyarpolány

90 M Ft
2 szoba
70 m2
Eladó családi ház
Eladó családi ház

Tiszaroff

12.5 M Ft
2 szoba
63 m2
Eladó családi ház
Eladó családi ház

Sellye

21.6 M Ft
2 szoba
72 m2
Eladó családi ház
Eladó családi ház

Balatonfenyves

430 M Ft
4 szoba
274 m2
Eladó családi ház
Eladó családi ház

Vajszló

18 M Ft
2 szoba
91 m2
Eladó családi ház
Eladó családi ház

Tiszaroff

12.9 M Ft
3 szoba
87 m2
Eladó családi ház
Eladó családi ház

Pápakovácsi

79.9 M Ft
4 szoba
210 m2