Oasis Residence

Eladó családi ház
Gárdony

+ 17 kép 1/20
94 900 000 Ft94.9 M Ft 510 215 Ft/m2
3 + 2 szoba
186 m2
építés éve:1984

Részletes adatok

Telekméret: 646 m2
Fűtés: Gázkazán
Energetikai besorolás: Nem adta meg a hirdető

Az OTP Bank lakáshitel ajánlataFizetett hirdetés

+36 20 487
Darnai Henrietta
referens

Érdekel az OTP Bank kedvezményes lakáshitel ajánlata? *

* A kérdésre „Igen” válasz bejelölése esetén, az „Üzenet küldése” gombra kattintva kijelentem, hogy az OTP Bank Nyrt. Adatkezelési tájékoztatójának tartalmát megismertem és tudomásul vettem.

Eladó családi ház leírása

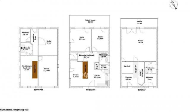
Fejér megye, Gárdony 186 nm-es családi ház eladó. A szigetelt, tégla falazatú lakóingatlan Gárdony központjától séta távolságra, mégis egy csendes, barátságos utcában egy 646 nm-es parkosított telken helyezkedik el. A felújított családi ház lakóterülete 115 nm (földszint + tetőtér), ezenfelül a szuterén 69,7 nm, a terasz 15 nm és az erkély 12 nm. A földszinten nappali, 1 szoba, konyha, étkező, kamra, fürdőszoba, külön WC található, valamint tartozik hozzá egy fedett terasz. A tetőtérben egy tágas szoba (két szobává alakítható), 2 félszoba, fürdőszoba, valamint egy erkély található. A szuterén részben 1 szoba, 1 félszoba, kazánház, garázs és fürdőszoba kapott helyet. A rendezett kertben tűzrakó beépített bográcsállvánnyal és egy nagy méretű melléképület található. A tetőtér a földszintről és külső feljáróval is megközelíthető. Az ingatlan alkalmas több generáció együttélésére, kiadásra, vagy akár a szuterén részen kialakítható üzlethelyiség is. A fűtésről kondenzációs gázkazán radiátoros hőleadással, hűtő fűtő klíma és elektromos panelek is gondoskodnak. A meleg vizet 120 literes gázbojler szolgáltatja, mely átköthető a kondenzációs gázkazánra. A felújítás során cserélték az összes külső nyílászárót 3 rétegű műanyagra, melyek szúnyoghálóval ellátottak, az utcafronti ablakok pedig redőnnyel is felszereltek. A felújítás során az épület 14 cm-es homlokzati, 10 cm-es lábazati szigetelést, új műanyag nyílászárókat, burkolatokat, konyhát kapott, cserélték a teljes elektromos hálózatot. Séta távolságra óvoda, iskola, orvosi rendelő, posta, bevásárlási lehetőségek, a vasútállomás és a tópart 15 perces sétával elérhető. Nyugodt, biztonságos környék, átmenőforgalomtól mentes utcában. Amennyiben felkeltette az érdeklődését, további kérdések esetén várom hívását, akár hétvégén is! Kedvezményes kamatú hitellel, teljes körű ügyintézéssel segítjük ügyfeleinket díjtalanul, az adásvétel és ingatlanátírás teljes lebonyolításával.

Hirdetés feltöltve: 2025. 10. 17. Utoljára módosítva: 2025. 12. 04.

5 szobás családi házak ára Gárdonyban

Ebből az összehasonlításból megtudhatod, hogyan viszonyul a lakás ára a környékbeli családi házak átlagos árához. Ez nem azt jelenti, hogy ennyivel olcsóbb vagy drágább, mint amennyit a lakás ér, hanem hogy ennyivel tér el a környékbeli átlagtól.

Ennek a m² ára
Gárdony m² ár
510 e Ft
766 e Ft 33%
Ennek az ára
Gárdony átlagár
94.9 M Ft m Ft
133.4 m Ft 29%

Az ingatlan elhelyezkedése

Cím: Gárdony

Eladó családi házak a környékről

Eladó családi ház
Eladó családi ház

Gárdony

57.5 M Ft
5 szoba
104 m2
Eladó családi ház
Eladó családi ház

Velence

42.9 M Ft
1 szoba
40 m2
Eladó családi ház
Eladó családi ház

Pusztaszabolcs

143.9 M Ft
4 szoba
149 m2
Eladó családi ház
Eladó családi ház

Sárbogárd, Tinódy utca

19.9 M Ft
3 szoba
75 m2
Eladó családi ház
Eladó családi ház

Szabadbattyán

357.518 M Ft
9 + 2 szoba
1053 m2
Eladó családi ház
Eladó családi ház

Iváncsa

39.9 M Ft
4 szoba
112 m2
Eladó családi ház
Eladó családi ház

Besnyő

25 M Ft
1 szoba
30 m2
Eladó családi ház
Eladó családi ház

Gárdony

154.9 M Ft
5 + 3 szoba
200 m2
Eladó családi ház
Eladó családi ház

Gárdony

163 M Ft
5 + 4 szoba
200 m2
Eladó családi ház
Eladó családi ház

Gárdony

159 M Ft
7 szoba
290 m2
Eladó családi ház
Eladó családi ház

Gárdony

115 M Ft
2 + 2 szoba
116 m2
Eladó családi ház
Eladó családi ház

Gárdony

129 M Ft
4 szoba
130 m2
Eladó családi ház
Eladó családi ház

Pusztavám

22.9 M Ft
3 szoba
103 m2
Eladó családi ház
Eladó családi ház

Gárdony

148.9 M Ft
6 szoba
182 m2
Eladó családi ház
Eladó családi ház

Gárdony

47.5 M Ft
2 szoba
56 m2
Eladó családi ház
Eladó családi ház

Baracska, Határ utca

74.9 M Ft
3 szoba
155 m2
Eladó családi ház
Eladó családi ház

Székesfehérvár

69.9 M Ft
3 szoba
95 m2
Eladó családi ház
Eladó családi ház

Gárdony, Vak Bottyán utca

139 M Ft
6 szoba
208 m2
Eladó családi ház
Eladó családi ház

Gárdony, Gárdonyi Géza utca

59 M Ft
3 szoba
100 m2
Eladó családi ház
Eladó családi ház

Velence

80 M Ft
6 szoba
200 m2
Eladó családi ház
Eladó családi ház

Székesfehérvár

59 M Ft
3 szoba
100 m2
Eladó családi ház
Eladó családi ház

Gárdony, Álmos Vezér utca

89.5 M Ft
3 + 2 szoba
111 m2
Eladó családi ház
Eladó családi ház

Tordas, Szabadság út

29.9 M Ft
2 szoba
63 m2
Eladó családi ház
Eladó családi ház

Bakonycsernye

39 M Ft
3 szoba
350 m2

Falusi CSOK ingatlanok

Eladó családi ház
Eladó családi ház

Hahót

64.9 M Ft
5 szoba
118 m2
Eladó családi ház
Eladó családi ház

Kemeneshőgyész

8 M Ft
2 szoba
60 m2
Eladó családi ház
Eladó családi ház

Jakabszállás

69.99 M Ft
1 + 4 szoba
91 m2
Eladó családi ház
Eladó családi ház

Gyömöre

45.99 M Ft
2 szoba
118 m2
Eladó családi ház
Eladó családi ház

Tápióság

30 M Ft
3 szoba
67 m2
Eladó családi ház
Eladó családi ház

Zákány, Május 1. utca

39.9 M Ft
2 szoba
112 m2
Eladó családi ház
Eladó családi ház

Becsehely

28.5 M Ft
3 + 1 szoba
96 m2
Eladó családi ház
Eladó családi ház

Előszállás

69.9 M Ft
6 szoba
238 m2