Avico Greentop

Eladó családi ház
Fábiánsebestyén

Figyelem!

Ez az ingatlan a 2019.07.01-től induló falusi CSOK által támogatott településen található

+ 17 kép 1/20
21 000 000 Ft21 M Ft 265 823 Ft/m2
2 + 1 szoba
79 m²
építés éve:1980

Részletes adatok

Állapot: Átlagos
Telekméret: 700 m2
Fűtés: Héra
Energetikai besorolás: Nem adta meg a hirdető
Zenga Premier

Friss hirdetések, amiket nem találsz meg más ingatlankereső portálon.

Fedezd fel elsőként a Zenga Premier címkés eladó ingatlanokat!

További részletek a zenga.hu-n

Az OTP Bank lakáshitel ajánlataFizetett hirdetés

+36 30 535
Orovecz Józsefné
referens

Érdekel az OTP Bank kedvezményes lakáshitel ajánlata? *

* A kérdésre „Igen” válasz bejelölése esetén, az „Üzenet küldése” gombra kattintva kijelentem, hogy az OTP Bank Nyrt. Adatkezelési tájékoztatójának tartalmát megismertem és tudomásul vettem.

Eladó családi ház leírása

Csak az OTP Ingatlanpont kínálatában!!!
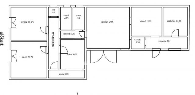
Eladó 79m2-es jó szerkezeti állapotú téglaház Csongrád-Csanád vármegyében, Fábiánsebestyén csendes, nyugodt utcájában. Az ingatlan ideális választás mindazok számára, akik vidéki környezetben, mégis jól ellátott településen szeretnének élni.

A ház belső elrendezése praktikus és élhető: két és fél szoba, fürdőszoba, külön WC és kamra áll rendelkezésre. A bejárat előtt egy hangulatos, fedett terasz kapott helyet, amely esős időben is kényelmes érkezést biztosít. A konyha külön épületrészben található, amely az udvarról közelíthető meg, és egy tágas előszobával, valamint étkezővel egészül ki. Itt kapott helyet a fűtésről gondoskodó gáz- és vegyes tüzelésű kazán is.

A 700 m2-es telek rendezett, a ház mögött két autó számára alkalmas garázs található. A telek végében jelenleg ólak és tárolók állnak, amelyek igény szerint könnyen elbonthatók, így a terület további lehetőségeket kínál.

Az ingatlan teljes közművel ellátott, a melegvizet kedvezményes áramról működő villanybojler biztosítja. A villamos hálózat 3x10A teljesítményű, valamint ipari áram is be van vezetve, ami külön előnyt jelenthet.

A település jól felszerelt: óvoda, iskola, gyógyszertár, üzletek és cukrászda is megtalálható, így minden adott a kényelmes mindennapokhoz. Szentes autóval rövid idő alatt elérhető, de a tömegközlekedés is rendszeres.

Az OTP Bankcsoport teljes körű ügyintézéssel segíti az adásvételt, legyen szó finanszírozásról vagy jogi háttérről. Kedvezményes hitellehetőségek, Babaváró, CSOK Plusz és egyéb konstrukciók is elérhetők, személyre szabott ügyintézéssel.

Irodáink Szentesen a Petőfi utca 12. szám alatt, valamint Csongrádon a Fő utca 54. szám alatt várják a személyes érdeklődőket.

Válasszuk ki együtt az Ön számára legmegfelelőbb ingatlant ? banki sorban állás nélkül!

Hirdetés feltöltve: 2026. 04. 01. Utoljára módosítva: 2026. 04. 01.

3 szobás családi házak ára Fábiánsebestyénben

Ebből az összehasonlításból megtudhatod, hogyan viszonyul a lakás ára a környékbeli családi házak átlagos árához. Ez nem azt jelenti, hogy ennyivel olcsóbb vagy drágább, mint amennyit a lakás ér, hanem hogy ennyivel tér el a környékbeli átlagtól.

Ennek a m² ára
Fábiánsebestyén m² ár
266 e Ft
145 e Ft -83%
Ennek az ára
Fábiánsebestyén átlagár
21 M Ft m Ft
14.1 m Ft -49%

Az ingatlan elhelyezkedése

Cím: Fábiánsebestyén

Eladó ingatlanok a környékről

Szeged
Eladó családi ház

Szeged

62 M Ft
5 szoba
116 m²
Szeged
Eladó téglalakás

Szeged

50.9 M Ft
3 szoba
49 m²
Hódmezővásárhely, Kishomok, Új-Kishomok
Eladó családi ház

Hódmezővásárhely

69 M Ft
3 szoba
100 m²
Csongrád
Eladó családi ház

Csongrád

45.9 M Ft
3 szoba
115 m²
Szeged
Eladó családi ház

Szeged

105 M Ft
3 szoba
102 m²
Szentes
Eladó családi ház

Szentes

58 M Ft
4 szoba
147 m²
Szeged
Eladó családi ház

Szeged

130 M Ft
3 szoba
105 m²
Szeged
Eladó családi ház

Szeged

37.425 M Ft
3 szoba
75 m²
Szeged
Eladó panellakás

Szeged

74.85 M Ft
3 szoba
77 m²
Szeged
Eladó családi ház

Szeged

125 M Ft
4 szoba
106 m²
Szeged
Eladó családi ház

Szeged

259 M Ft
6 szoba
314 m²
Szeged
Eladó családi ház

Szeged

149.9 M Ft
10 szoba
310 m²
Tiszasziget
Eladó családi ház

Tiszasziget

49.9 M Ft
4 szoba
160 m²
Szeged
Eladó családi ház

Szeged

225 M Ft
5 szoba
203 m²
Szeged
Eladó családi ház

Szeged

130 M Ft
3 szoba
105 m²
Szeged, Újszeged, Radnóti utca
Eladó családi ház

Szeged

329.9 M Ft
12 + 2 szoba
619 m²
Szeged
Eladó családi ház

Szeged

90 M Ft
4 szoba
110 m²
Szeged
Eladó téglalakás

Szeged

88 M Ft
1 + 1 szoba
47 m²
Szeged
Eladó téglalakás

Szeged

145 M Ft
4 szoba
90 m²
Röszke
Eladó családi ház

Röszke

75 M Ft
4 szoba
95 m²
Szeged
Eladó panellakás

Szeged

58 M Ft
3 szoba
55 m²
Szeged
Eladó családi ház

Szeged

220 M Ft
12 + 2 szoba
760 m²
Szeged
Eladó panellakás

Szeged

74.85 M Ft
3 szoba
77 m²
Szeged
Eladó panellakás

Szeged

78.5 M Ft
3 szoba
56 m²

Falusi CSOK ingatlanok

Újlengyel
Eladó családi ház

Újlengyel

110 M Ft
4 szoba
121 m²
Bag
Eladó családi ház

Bag

16.9 M Ft
6 szoba
160 m²
Fonyód
Eladó családi ház

Fonyód

89 M Ft
2 szoba
90 m²
Mikepércs
Eladó sorház

Mikepércs

700 M Ft
45 szoba
1150 m²
Tápióság
Eladó családi ház

Tápióság

59.9 M Ft
4 szoba
99 m²
Szigetcsép, Rákóczi utca
Eladó családi ház

Szigetcsép

63 M Ft
4 szoba
89 m²
Zalavár
Eladó családi ház

Zalavár

65 M Ft
2 + 1 szoba
100 m²
Ceglédbercel
Eladó családi ház

Ceglédbercel

79.9 M Ft
5 szoba
140 m²

Falusi CSOK ingatlanok

Magyarszék
Eladó családi ház

Magyarszék

48.5 M Ft
3 + 1 szoba
86 m²
Törtel
Eladó családi ház

Törtel

55 M Ft
3 + 1 szoba
120 m²
Ábrahámhegy
Eladó családi ház

Ábrahámhegy

139 M Ft
4 szoba
106 m²
Gyöngyössolymos
Eladó családi ház

Gyöngyössolymos

57.99 M Ft
4 szoba
160 m²
Zalavár
Eladó családi ház

Zalavár

65 M Ft
2 + 1 szoba
100 m²
Tóalmás
Eladó családi ház

Tóalmás

109 M Ft
4 szoba
241 m²
Fonyód
Eladó családi ház

Fonyód

89 M Ft
2 szoba
90 m²
Vokány
Eladó családi ház

Vokány

30 M Ft
4 szoba
100 m²