Astora Márvány8

Eladó családi ház
Erdőkertes

1/2
105 000 000 Ft105 M Ft 929 204 Ft/m2
5 szoba
113 m²

Részletes adatok

Telekméret: 1000 m2
Fűtés: Egyéb
Energetikai besorolás: Nem adta meg a hirdető

Az OTP Bank lakáshitel ajánlataFizetett hirdetés

+36 20 236
Bagóczky Attila
Családi Ingatlan

Érdekel az OTP Bank kedvezményes lakáshitel ajánlata? *

* A kérdésre „Igen” válasz bejelölése esetén, az „Üzenet küldése” gombra kattintva kijelentem, hogy az OTP Bank Nyrt. Adatkezelési tájékoztatójának tartalmát megismertem és tudomásul vettem.

Eladó családi ház leírása

Kiemelt lokáció: Erdőkertes szíve!

ÖNÁLLÓ CSALÁDI HÁZ EXTRA NAGY TELEKKEL, IGÉNYRE FORMÁLHATÓ!!!

3% OTTHON START HITELLEL MEGVÁSÁROLHATÓ, 30 % önrésszel !

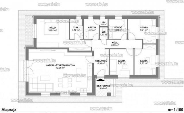
ERDŐKERTESEN, csendes utcában ELADÓ egy ÚJ ÉPÍTÉSŰ, egyszintes, nettó 113 nm-es, Nappali + 4 szobás családi ház, 1000 nm-es telken.

A házban egy amerikai konyhás nappali: 41 nm, 4 hálószoba, háztartási helyiség:5,03 nm, fürdőszoba: 8,05 nm, WC: 1,7 nm, közlekedő, előszoba: 3,26 nm, és egy 16,11 nm-es kertkapcsolatos terasz kerül kialakításra.

A terv igény szerint még alakítható!!!

Műszaki tartalomból:
- 30 pth téglából
- 10 cm dryvit szigetelés
- Bramac cserép
- Műanyag hőszigetelt nyílászáró
- Járda és gépkocsi beálló
- Hőszivattyús fűtés, PADLÓFÜTÉSSEL !

Ha ingatlan vásárláshoz még el kell adnia ingatlanát, kedvezményesen vállaljuk annak értékesítését! Ha vásárláshoz hitelre van szüksége, INGYENESEN segítünk önnek megtalálni a piacon fellelhető legkedvezőbb hitelkonstrukciót.

Miért érdemes velünk vásárolni?
- teljes körű, díjmentes hiteltanácsadás
- gyors és rugalmas ügyintézés
- megbízható ügyvédi háttér
- tapasztalt, professzionális értékesítési támogatás

Végig kísérjük a teljes folyamaton a megtekintéstől a birtokbaadásig Nálunk a vásárlás nem stressz, hanem biztonságos és átlátható folyamat.

Elhelyezkedés!:
Az ingatlan a település frekventált, mégis rendezett, kertvárosi övezetében, található. Ez a környék azért különleges, mert karnyújtásnyira van a központtól, így a mindennapi ügyintézéshez nincs szükség feltétlenül autóra.
• Sétatávolságra minden:Néhány perces sétával elérhető az általános iskola, óvoda, élelmiszerbolt és a polgármesteri hivatal is Erdőkertes intézményei.
• Kiváló közlekedés:
o Az Erdőkertes vasúti megállóhely kényelmes sétatávolságra van MÁV Erdőkertes megállóhely, ahonnan az S71-es vonattal közvetlenül a Nyugati pályaudvarra juthatunk.
• Természet és Modernitás:Az utca aszfaltozott, rendezett, a szomszédságban több új építésű ingatlan is található.

Miért válassza ezt az új építésű otthont?
Ez a ház ideális választás azoknak, akik nem akarnak kompromisszumot kötni a nyugalom és a városi infrastruktúra között. Míg a kertben élvezheti a csendet, addig Veresegyház vibráló élete (piac, termálfürdő, éttermek) mindössze 5-8 perc autóútra fekszik.

Amennyiben egy modern, energiahatékony, hosszú távon is értékálló otthont keres alacsony fenntartási költséggel, keressen bizalommal!

Hirdetés feltöltve: 2025. 12. 16. Utoljára módosítva: 2026. 04. 18.

5 szobás családi házak ára Erdőkertesen

Ebből az összehasonlításból megtudhatod, hogyan viszonyul a lakás ára a környékbeli családi házak átlagos árához. Ez nem azt jelenti, hogy ennyivel olcsóbb vagy drágább, mint amennyit a lakás ér, hanem hogy ennyivel tér el a környékbeli átlagtól.

Ennek a m² ára
Erdőkertes m² ár
929 e Ft
780 e Ft -19%
Ennek az ára
Erdőkertes átlagár
105 M Ft m Ft
128.7 m Ft 18%

Az ingatlan elhelyezkedése

Cím: Erdőkertes

Eladó családi házak a környékről

Erdőkertes
Eladó családi ház

Erdőkertes

325 M Ft
5 szoba
282 m²
Erdőkertes, Kolozsvári utca
Eladó családi ház

Erdőkertes

140 M Ft
4 szoba
114 m²
Erdőkertes
Eladó családi ház

Erdőkertes

129 M Ft
4 + 2 szoba
336 m²
Erdőkertes
Eladó családi ház

Erdőkertes

149.9 M Ft
5 szoba
115 m²
Erdőkertes
Eladó családi ház

Erdőkertes

65.5 M Ft
2 szoba
100 m²
Erdőkertes
Eladó családi ház

Erdőkertes

49.9 M Ft
2 szoba
38 m²
Tápiószele
Eladó családi ház

Tápiószele

45 M Ft
6 szoba
360 m²
Tápiószentmárton
Eladó családi ház

Tápiószentmárton

48 M Ft
5 szoba
180 m²
Tápiószele
Eladó családi ház

Tápiószele

32.9 M Ft
4 szoba
200 m²
Tápiószele
Eladó családi ház

Tápiószele

37.9 M Ft
4 szoba
141 m²
Érd
Eladó családi ház

Érd

164.9 M Ft
5 szoba
192 m²
Budakeszi
Eladó családi ház

Budakeszi

130 M Ft
5 szoba
30 m²
Dunakeszi
Eladó családi ház

Dunakeszi

250 M Ft
4 szoba
180 m²
Tápiószele
Eladó családi ház

Tápiószele

11.9 M Ft
3 szoba
62 m²
Erdőkertes
Eladó családi ház

Erdőkertes

149.9 M Ft
6 szoba
300 m²
Tápiógyörgye
Eladó családi ház

Tápiógyörgye

19.9 M Ft
3 szoba
65 m²
Erdőkertes, Fő út
Eladó családi ház

Erdőkertes

129.9 M Ft
4 + 2 szoba
164 m²
Budakeszi, Budakeszi kertváros
Eladó családi ház

Budakeszi

229 M Ft
10 szoba
450 m²
Erdőkertes
Eladó családi ház

Erdőkertes

155 M Ft
4 szoba
175 m²
Budaörs
Eladó családi ház

Budaörs

400 M Ft
12 szoba
583 m²
Erdőkertes
Eladó családi ház

Erdőkertes

150 M Ft
4 szoba
155 m²
Tápiószőlős
Eladó családi ház

Tápiószőlős

34.9 M Ft
5 szoba
210 m²
Erdőkertes
Eladó családi ház

Erdőkertes

140 M Ft
4 szoba
114 m²
Erdőkertes
Eladó családi ház

Erdőkertes

149.9 M Ft
6 szoba
300 m²

Falusi CSOK ingatlanok

Ceglédbercel
Eladó családi ház

Ceglédbercel

79.9 M Ft
5 szoba
140 m²
Nyáregyháza
Eladó családi ház

Nyáregyháza

15.9 M Ft
2 szoba
39 m²
Iklad
Eladó családi ház

Iklad

60 M Ft
3 szoba
76 m²
Szigetcsép
Eladó családi ház

Szigetcsép

110 M Ft
3 szoba
137 m²
Szarvaskend
Eladó családi ház

Szarvaskend

26.9 M Ft
2 szoba
83 m²
Balatonszemes
Eladó téglalakás

Balatonszemes

119.9 M Ft
2 szoba
81 m²
Balatonederics
Eladó családi ház

Balatonederics

119 M Ft
3 szoba
140 m²
Recsk
Eladó családi ház

Recsk

40 M Ft
3 + 1 szoba
110 m²