Astora Art House

Eladó családi ház
Erdőkertes

1/1
95 000 000 Ft95 M Ft 950 000 Ft/m2
5 szoba
100 m2
építés éve:2026

Részletes adatok

Telekméret: 690 m2
Fűtés: Gázkazán
Parkolás: Kocsibeálló
Közmű: Víz, Gáz, Villany, Csatorna
Energetikai besorolás: Nem adta meg a hirdető

Az OTP Bank lakáshitel ajánlataFizetett hirdetés

+36 20 231
Bene Kriszti
referens

Érdekel az OTP Bank kedvezményes lakáshitel ajánlata? *

* A kérdésre „Igen” válasz bejelölése esetén, az „Üzenet küldése” gombra kattintva kijelentem, hogy az OTP Bank Nyrt. Adatkezelési tájékoztatójának tartalmát megismertem és tudomásul vettem.

Eladó családi ház leírása

Új építésű ingatlanokra vonatkozó kedvezmények igénybe vehetők!!!

Erdőkertesen központi részhez közel eladó 690 nm-es telekre épülő, amerikai-konyhás-nappalis+ 4 szobás egy szintes önálló családi ház, kocsibeállóval.

Az ingatlan számos referenciával rendelkező cég építi.

Jelen pillanatban még bele lehet szólni a tervrajzba, hogy saját ízlés szerint épüljön fel a ház!!!

A ház nettó: 100,00 nm
Fedett terasz: 15,00 nm
Telek: 690 nm
Parkolás: zárt udvaron belül

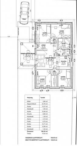
A ház elosztása:
előtér 3,66 nm
nappali+étkező+konyha 32,47 nm
közlekedő 1,65 nm
szoba 15,37 nm
szoba 10,26 nm
fürdőszoba 6,75 nm
közlekedő 1,42 nm
szoba 12,71 nm
szoba 12,90 nm
fedett terasz: 15,00 nm

Parkolás: zárt udvaron belül

Műszaki tartalom:
Szerkezeti részek:
Az alapozás a földben 90 cm mélyen vasalt betonnal, a lábazat zsalukő elemekkel melyeket
szintén betonnal kiöntve készítünk el. A teherhordó falak 30-as pth téglából kerülnek
falazásra. Az épületen betonfödém készül, melyre 20 cm-es üveg gyapot szigetelés kerül. A
külső homlokzaton 15 cm-es hungarocell szigetelés készül pasztellszínezéssel, a lábazat
szintén színezéssel lesz megoldva. A külső nyílászárók fehér műanyag 5 légkamrás 3 rétegű
üvegezéssel! A tetőhéjazat Bramac alap bádogozással!
Burkolatok:
A bejárat előtti terasz, illetve a bejárat előtti lépcső,
burkolata 4000.-Ft/m2 áron
választhatóak. A lakáson belüli hidegburkolat az előszobában, konyha padlón, kamrában,
konyhabútor közötti részen 4000.-Ft/m2 áron választható. Konyhabútort nem tartalmaz a
vételár. A hálószoba, helyiségekben laminált parketta kerül lerakásra mely 3.500.-Ft/m2 áron
választható szegély léccel együtt. Burkolási magasság: fürdőszoba 2,1 m-ig, a wc-ben a
burkolási magasság 1,25 m természetesen, ha a vevő 2,1 m magasságig kéri a burkolást, azt
árkülönbözet számolása, és az ár elfogadása után elvégezzük.
Külső műanyag fehér párkányok benne vannak az árban.
A terasz burkolása (14.36 nm )benne van az árban terasz fedése nélkül!
Szaniterek:
Kád kádlábbal együtt választható 40.000.-Ft-ig, ha a vevő zuhanyzót szeretne, akkor épített
zuhanyzó kerül megépítésre ( ytong falazó elemmel ) ezt a gépészet kiépítésénél kell jelezni.
Ha a gépészeti kiépítés elkészült, akkor csak egyeztetés után árkülönbözet elfogadásával lehet
módosítani. A csaptelep 10.000.-Ft-ig választható, amely kád illetve zuhany csaptelepre is
vonatkozik. Mosdó 10.000.-ft-ig illetve a mosdó csaptelep is 10.000.-Ft-ig választható. A wc
beépített típusú tartállyal, fehér nyomólappal, valamint alföldi csészével kerül beépítésre, 1 db
wc lehet kérni a fürdőbe is. A wc-ben hideg-meleg vizes kézmosó kiépítés készül a mosdó
10.000.-ft-ig, a csaptelep 10.000.-Ft-ig választható. Redőny előkészítés.
2/1
Felületképzés: A belső falak vakoltak 2-szeri glettelést, és 2-szeri diszperziós festést kapnak,
pasztellszínig az erősebb színek esetében az árkülönbözet számolása, és az ár elfogadása után
elvégezzük.
Belső ajtók:A belső ajtók 40.000.-ft-ig választhatók kilincsel együtt. A közlekedőnél belső ajtót
nem építjük, be felár ellenében lehet kérni.
Villanyszerelés:
A lakásokhoz 1 x 32 A. Áram tartozik, helyiségenként 1 db mennyezeti lámpa (nappaliban 2 db)
fürdőben plusz 1 db falikar a tükör fölé, valamint 1 db dugaszoló aljzat, a teraszon 1-2 db
oldalfali lámpa és 1 db kinti dugó aljzat, a külön wc-ben 1 db mennyezeti lámpa, ezeket
elosztva 60 db. Az e feletti szerelvény kiépítését anyaggal 20.000.-ft/db áron lehet kérni. A
szerelvények legrand (niloe vagy schneider Asfora) típusúak fehér, vagy elefántcsont színben.
A lakáson belül mozgásérzékelő riasztó vezetékezése elkészül a szerelvények nélkül. 2 db
inverteres klíma. A kiskapu illetve nagykapu elektromos kiépítése elkészül motorizálás nélkül.
Gépészet:
A házat gáz cirkó Ariston típusú kombi gázkazán mely a meleg vizet is biztosítja 300.000.-Ft
értékben padlófűtéssel. Ha a vevő kombinált fűtést szeretne ideértve radiátor és padlófűtés
az felárat képez.
Kerítések:
Az utcafronton Rivatto kerítéselem közti deszkázással lesz meg oldva. A járda a bejárati ajtóig
betonnal, valamint a kocsi beálló (20 nm2-ig) betonnal lesz lerakva, az épület körül
betonszegélykő kavics feltöltéssel. Az udvar a hulladéktól kitakarítva kerül átadásra a föld,
illetve a parkosítás a vevő feladata. Az utcafronton a kocsibeállót illetve a járdát plusz
költségért építjük meg.
Falazat 30 cm-es PTH. tégla, rajta 15 cm-es szigeteléssel 5 cm-es lábazati szigeteléssel
Födémszigetelés 20 cm-es üveggyapot betonfödémen

Hirdetés feltöltve: 2025. 11. 18. Utoljára módosítva: 2025. 12. 09.

5 szobás családi házak ára Erdőkertesen

Ebből az összehasonlításból megtudhatod, hogyan viszonyul a lakás ára a környékbeli családi házak átlagos árához. Ez nem azt jelenti, hogy ennyivel olcsóbb vagy drágább, mint amennyit a lakás ér, hanem hogy ennyivel tér el a környékbeli átlagtól.

Ennek a m² ára
Erdőkertes m² ár
950 e Ft
808 e Ft -18%
Ennek az ára
Erdőkertes átlagár
95 M Ft m Ft
134.8 m Ft 30%

Az ingatlan elhelyezkedése

Cím: Erdőkertes

Eladó családi házak a környékről

Eladó családi ház
Eladó családi ház

Remeteszőlős

399.9 M Ft
5 + 2 szoba
260 m2
Eladó családi ház
Eladó családi ház

Erdőkertes

140 M Ft
4 szoba
114 m2
Eladó családi ház
Eladó családi ház

Erdőkertes

119.9 M Ft
5 szoba
115 m2
Eladó családi ház
Eladó családi ház

Budaörs, Bányász utca

385 M Ft
6 szoba
300 m2
Eladó családi ház
Eladó családi ház

Budaörs, Városközpont utca

119.5 M Ft
5 + 1 szoba
140 m2
Eladó családi ház
Eladó családi ház

Erdőkertes

149.9 M Ft
6 szoba
300 m2
Eladó családi ház
Eladó családi ház

Kerepes

81.99 M Ft
5 szoba
102 m2
Eladó családi ház
Eladó családi ház

Erdőkertes

149.9 M Ft
6 szoba
300 m2
Eladó családi ház
Eladó családi ház

Leányfalu

237 M Ft
9 szoba
800 m2
Eladó családi ház
Eladó családi ház

Kerepes

199 M Ft
6 szoba
360 m2
Eladó családi ház
Eladó családi ház

Dunavarsány

49.9 M Ft
3 + 2 szoba
130 m2
Eladó családi ház
Eladó családi ház

Erdőkertes

155 M Ft
4 szoba
175 m2
Eladó családi ház
Eladó családi ház

Erdőkertes

97.5 M Ft
1 + 3 szoba
91 m2
Eladó családi ház
Eladó családi ház

Budakeszi, Makkosmária

100 M Ft
1 szoba
10 m2
Eladó családi ház
Eladó családi ház

Erdőkertes, Kolozsvári utca

140 M Ft
4 szoba
114 m2
Eladó családi ház
Eladó családi ház

Tápiószentmárton

48 M Ft
5 szoba
180 m2
Eladó családi ház
Eladó családi ház

Erdőkertes

54.5 M Ft
2 szoba
60 m2
Eladó családi ház
Eladó családi ház

Erdőkertes

325 M Ft
5 szoba
282 m2
Eladó családi ház
Eladó családi ház

Tahitótfalu

188 M Ft
7 szoba
280 m2
Eladó családi ház
Eladó családi ház

Erdőkertes

115 M Ft
3 + 2 szoba
125 m2
Eladó családi ház
Eladó családi ház

Erdőkertes

124 M Ft
4 + 2 szoba
336 m2
Eladó családi ház
Eladó családi ház

Érd

164.9 M Ft
5 szoba
192 m2
Eladó családi ház
Eladó családi ház

Erdőkertes

65.5 M Ft
2 szoba
100 m2
Eladó családi ház
Eladó családi ház

Erdőkertes

124 M Ft
4 + 2 szoba
336 m2

Falusi CSOK ingatlanok

Eladó családi ház
Eladó családi ház

Nagybörzsöny

79.9 M Ft
4 szoba
149 m2
Eladó családi ház
Eladó családi ház

Fertőd

189.9 M Ft
4 szoba
175 m2
Eladó családi ház
Eladó családi ház

Balogunyom, Petőfi Sándor utca

74.9 M Ft
4 szoba
242 m2
Eladó családi ház
Eladó családi ház

Iváncsa

73.9 M Ft
1 + 3 szoba
97 m2
Eladó családi ház
Eladó családi ház

Ősi

55 M Ft
3 szoba
74 m2
Eladó családi ház
Eladó családi ház

Győrság

86.9 M Ft
4 szoba
92 m2
Eladó családi ház
Eladó családi ház

Szarvaskend

26.9 M Ft
2 szoba
83 m2
Eladó téglalakás
Eladó téglalakás

Balatonszemes

125.2 M Ft
2 szoba
50 m2