Avico Greentop

Eladó családi ház
Érd

+ 17 kép 1/20
69 900 000 Ft69.9 M Ft 678 641 Ft/m2
3 szoba
103 m²
építés éve:1930

Részletes adatok

Állapot: Felújítandó
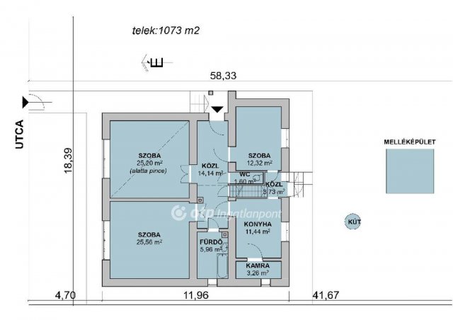
Telekméret: 1073 m2
Fűtés: Gázkazán
Komfort: Összkomfortos
Energetikai besorolás: Nem adta meg a hirdető

Az OTP Bank lakáshitel ajánlataFizetett hirdetés

+36 70 237
Zatykó Krisztina
Budapest XI. kerület OTP Ingatlanpont

Érdekel az OTP Bank kedvezményes lakáshitel ajánlata? *

* A kérdésre „Igen” válasz bejelölése esetén, az „Üzenet küldése” gombra kattintva kijelentem, hogy az OTP Bank Nyrt. Adatkezelési tájékoztatójának tartalmát megismertem és tudomásul vettem.

Eladó családi ház leírása

ELADÓ BONTANDÓ VAGY FELÚJíTANDÓ HÁZ TELEKKEL ÉRD VÁROSKÖZPONTBAN

Érd központjának kedvelt kertvárosi részén, mindkét vasútállomástól és a buszpályaudvartól 500-500 méterre eladó egy 1073m2-es, 18 m utcafronttal rendelkező lakóövezeti telek, 103 m2-es, három szobás, bontandó vagy felújítandó házzal.

A három szobás ház az 1930-as években épült téglából, részben alápincézett, fűtése gáz cirko és vegyestüzelésű kazán, radiátor hőleadókkal. Energetikai tanúsítvány nem áll rendelkezésre.
Az ingatlan összközműves, víz villany, gáz, csatorna épületen belül kiépített, a kertben kút található.

Az Ln-4 (Nagyvárosias lakóterület) övezeti besorolás 30 %-os bruttó beépítettséget enged. A megengedett homlokzatmagasság 14m.

KÖRNYÉK:
A kertvárosias utcai telek ötszáz méterre található Érd központjától. Az ingatlan a két vasútvonal között helyezkedik el, Érd-Alsó v.á., Érd-Felső v.á., és a Buszállomás öt perc sétára található. Az utcában a parkolás ingyenes.

Övezeti besorolás Ln-4
Beépíthetőség: 30%
Maximális építménymagasság: 14m
Zöldterületi mutató 30%
A telek méretei: 18m X 60m
Igény szerint hitelügyintézést, ügyvédi közreműködést biztosítunk, és segítséget nyújtunk az adásvétel folyamatában.

Amennyiben komolyan érdekli az ingatlan, vagy további kérdései vannak, hívjon telefonon.

Az energetikai tanúsítvány készítése folyamatban van, amint rendelkezésre áll, úgy azzal a hirdetés frissítésre kerül.

Referencia szám: M326450

Hirdetés feltöltve: 2026. 04. 23. Utoljára módosítva: 2026. 05. 15.

3 szobás családi házak ára Érden

Ebből az összehasonlításból megtudhatod, hogyan viszonyul a lakás ára a környékbeli családi házak átlagos árához. Ez nem azt jelenti, hogy ennyivel olcsóbb vagy drágább, mint amennyit a lakás ér, hanem hogy ennyivel tér el a környékbeli átlagtól.

Ennek a m² ára
Érd m² ár
679 e Ft
932 e Ft 27%
Ennek az ára
Érd átlagár
69.9 M Ft m Ft
96.9 m Ft 28%

Az ingatlan elhelyezkedése

Cím: Érd

Eladó családi házak a környékről

Remeteszőlős
Eladó családi ház

Remeteszőlős

399.9 M Ft
5 + 2 szoba
260 m²
Tápiógyörgye
Eladó családi ház

Tápiógyörgye

19.9 M Ft
3 szoba
65 m²
Érd
Eladó családi ház

Érd

149 M Ft
1 szoba
180 m²
Érd
Eladó családi ház

Érd

164.9 M Ft
5 szoba
192 m²
Érd
Eladó családi ház

Érd

79.9 M Ft
5 szoba
152 m²
Tápiószentmárton
Eladó családi ház

Tápiószentmárton

7.9 M Ft
2 + 1 szoba
86 m²
Tápiószentmárton
Eladó családi ház

Tápiószentmárton

16.5 M Ft
3 szoba
50 m²
Tápiószőlős
Eladó családi ház

Tápiószőlős

34.9 M Ft
5 szoba
210 m²
Érd
Eladó családi ház

Érd

139.9 M Ft
3 szoba
236 m²
Érd
Eladó családi ház

Érd

95 M Ft
5 szoba
226 m²
Érd, Érdliget - Kutyavár, 2030.ÉRDLIGET, KÖVIRÓZSA
Eladó családi ház

Érd

649 M Ft
6 szoba
380 m²
Érd
Eladó családi ház

Érd

160 M Ft
7 szoba
250 m²
Érd
Eladó családi ház

Érd

244 M Ft
5 szoba
175 m²
Érd
Eladó családi ház

Érd

164.9 M Ft
5 szoba
192 m²
Budakeszi, Budakeszi kertváros
Eladó családi ház

Budakeszi

229 M Ft
10 szoba
450 m²
Érd, Parkváros, Asztalos utca
Eladó családi ház

Érd

165 M Ft
5 szoba
191 m²
Érd
Eladó családi ház

Érd

99.9 M Ft
4 szoba
98 m²
Érd
Eladó családi ház

Érd

230 M Ft
5 szoba
175 m²
Érd
Eladó családi ház

Érd

225.5 M Ft
6 szoba
503 m²
Érd
Eladó családi ház

Érd

55 M Ft
6 szoba
155 m²
Tápiószele
Eladó családi ház

Tápiószele

32.9 M Ft
4 szoba
200 m²
Érd
Eladó családi ház

Érd

249.99 M Ft
6 szoba
210 m²
Tápiószele
Eladó családi ház

Tápiószele

45 M Ft
6 szoba
360 m²
Érd
Eladó családi ház

Érd

115 M Ft
122 m²

Falusi CSOK ingatlanok

Halimba
Eladó családi ház

Halimba

59.9 M Ft
6 szoba
182 m²
Kislippó
Eladó családi ház

Kislippó

30 M Ft
2 szoba
80 m²
Tótszentmárton
Eladó családi ház

Tótszentmárton

31.5 M Ft
5 szoba
130 m²
Márianosztra
Eladó családi ház

Márianosztra

38 M Ft
4 szoba
75 m²
Tab, Rákóczi utca 45
Eladó családi ház

Tab

17.13 M Ft
1 + 1 szoba
105 m²
Röszke
Eladó családi ház

Röszke

69.99 M Ft
4 szoba
99 m²
Mikepércs
Eladó családi ház

Mikepércs

56 M Ft
3 + 1 szoba
87 m²
Himesháza
Eladó családi ház

Himesháza

30 M Ft
3 szoba
92 m²