Seven Pearl

Eladó családi ház
Érd

+ 2 kép 1/5
102 000 000 Ft102 M Ft 772 727 Ft/m2
5 szoba
132 m2
építés éve:2025

Részletes adatok

Telekméret: 863 m2
Fűtés: Egyéb
Parkolás: Kocsibeálló
Közmű: Víz, Villany
Energetikai besorolás: Nem adta meg a hirdető

Az OTP Bank lakáshitel ajánlataFizetett hirdetés

+36 20 953
Szabó Rita
Otthon Plusz Ingatlan

Érdekel az OTP Bank kedvezményes lakáshitel ajánlata? *

* A kérdésre „Igen” válasz bejelölése esetén, az „Üzenet küldése” gombra kattintva kijelentem, hogy az OTP Bank Nyrt. Adatkezelési tájékoztatójának tartalmát megismertem és tudomásul vettem.

Eladó családi ház leírása

Hivatkozzon erre, kód: 5043SZR

- ÚJ ÉPÍTÉSŰ ÖNÁLLÓ HÁZ

- KÉT GENERÁCIÓNAK IS ALKALMAS

- NAGY AMERIKAI KONYHA-NAPPALI + 4 SZOBA, 2 FÜRDŐSZOBA

- HŐSZIVATTYÚ PADLÓFŰTÉSSEL

Érd Dombosváros részén 863m2-es telken nagy amerikai konyha - nappalis, 4 szobás, dupla komfortos, összesen nettó 132.24m2-es (+ teraszok), két generációnak is alkalmas új építésű önálló családi ház igény szerinti befejezéssel leköthető.

Várható átadás: 2026. május.

Megbízható beruházó, számos referencia ingatlan!

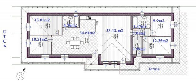
Az ingatlan felosztása a következő (132.24m2 + teraszok): elő-terasz, amerikai konyha - nappali + étkező (34.61m2 + 33.13m2), 2 fürdőszoba + wc (4.56m2, 5.47m2), előtér (3.99m2), közlekedő (3.01m2), 4 szoba (15.01m2, 10.21m2, 9.9m2, 12.35m2), terasz.

Szerkezeti leírás: Beton alap. Tégla főfalak + 15cm dryvit szigetelés. Ytong válaszfalak. A külső nyílászárók műanyag szerkezetűek, fokozott hőszigetelésű üvegezéssel. A belső nyílászárók dekorfóliás ajtók. Fa födém szigeteléssel. Cserép fedésű tető.

Az igény szerinti befejezésnek köszönhetően a hideg-meleg burkolatok választhatók a műszaki tartalomban rögzített árak szerint.

Fűtés: Az ingatlan fűtése hőszivattyús rendszerről üzemel, minden helyiségben padlófűtésen keresztül.

Parkolás: zárt udvaron belül fedetlen-felszíni beálló áll rendelkezésre.

Megközelíthetőség és infrastruktúra: Az ingatlan tömegközlekedéstől kieső területen helyezkedik el, ezért legfőképp autóval rendelkezőknek ajánljuk! Gépkocsival óvoda, iskola, gyógyszertár, bevásárlási lehetőségek, orvosi rendelők 10 perc alatt elérhetők!

További hasonló ingatlanok találhatók még a kínálatunkban!

Szüksége van hitelre? SEGÍTÜNK!

Bankfüggetlen hitel tanácsadónk díjmentesen áll az Ön rendelkezésére! Keressen bizalommal!

A hirdetésben szereplő adatok, információk, képek, alaprajzok stb... tájékoztató jellegűek! Irodánk az esetleges elírásokért felelősséget nem tud vállalni!

Tájékoztatjuk a Tisztelt Érdeklődőket, hogy az ingatlan hirdetésében szereplő telefonszám felhívásával Önök hozzájárulnak személyes adataik (név, telefonszám), a hirdetést feladó -Otthonplusz.hu Kft. - által a bizalmas kezeléshez és nyilvántartáshoz.

Hirdetés feltöltve: 2025. 10. 13. Utoljára módosítva: 2025. 11. 24.

5 szobás családi házak ára Érden

Ebből az összehasonlításból megtudhatod, hogyan viszonyul a lakás ára a környékbeli családi házak átlagos árához. Ez nem azt jelenti, hogy ennyivel olcsóbb vagy drágább, mint amennyit a lakás ér, hanem hogy ennyivel tér el a környékbeli átlagtól.

Ennek a m² ára
Érd m² ár
773 e Ft
880 e Ft 12%
Ennek az ára
Érd átlagár
102 M Ft m Ft
167 m Ft 39%

Az ingatlan elhelyezkedése

Cím: Érd

Eladó családi házak a környékről

Eladó családi ház
Eladó családi ház

Érd

164.9 M Ft
5 szoba
192 m2
Eladó családi ház
Eladó családi ház

Tápiószentmárton

48 M Ft
5 szoba
180 m2
Eladó családi ház
Eladó családi ház

Tápiógyörgye

19.9 M Ft
3 szoba
65 m2
Eladó családi ház
Eladó családi ház

Budakeszi, Makkosmária

100 M Ft
1 szoba
10 m2
Eladó családi ház
Eladó családi ház

Érd

84.9 M Ft
4 szoba
172 m2
Eladó családi ház
Eladó családi ház

Érd

67 M Ft
3 + 1 szoba
100 m2
Eladó családi ház
Eladó családi ház

Érd

250 M Ft
6 szoba
210 m2
Eladó családi ház
Eladó családi ház

Érd, Cserhalmi és Csobánci utca között utca

98 M Ft
5 + 2 szoba
200 m2
Eladó családi ház
Eladó családi ház

Érd

250 M Ft
6 szoba
207 m2
Eladó családi ház
Eladó családi ház

Érd

225.5 M Ft
6 szoba
503 m2
Eladó családi ház
Eladó családi ház

Érd

69.9 M Ft
4 szoba
90 m2
Eladó családi ház
Eladó családi ház

Sződ, Rátóti utca

149.99 M Ft
11 szoba
270 m2
Eladó családi ház
Eladó családi ház

Érd, Érdliget - Kutyavár, Érd-liget

230 M Ft
7 szoba
280 m2
Eladó családi ház
Eladó családi ház

Dunavarsány

69.9 M Ft
3 + 1 szoba
140 m2
Eladó családi ház
Eladó családi ház

Budakeszi

130 M Ft
5 szoba
30 m2
Eladó családi ház
Eladó családi ház

Érd

249.99 M Ft
6 szoba
210 m2
Eladó családi ház
Eladó családi ház

Budaörs, Odvshegy utca

268.9 M Ft
5 szoba
235 m2
Eladó családi ház
Eladó családi ház

Érd, Érdliget - Kutyavár, Liliom utca

300 M Ft
3 szoba
184 m2
Eladó családi ház
Eladó családi ház

Pécel, Reményik Sándor utca

296 M Ft
6 szoba
396 m2
Eladó családi ház
Eladó családi ház

Érd

189.7 M Ft
5 szoba
204 m2
Eladó családi ház
Eladó családi ház

Érd

120 M Ft
5 szoba
190 m2
Eladó családi ház
Eladó családi ház

Érd

129 M Ft
4 szoba
150 m2
Eladó családi ház
Eladó családi ház

Budakeszi, Budakeszi kertváros

140 M Ft
2 szoba
55 m2
Eladó családi ház
Eladó családi ház

Tápiószentmárton

7.9 M Ft
2 + 1 szoba
86 m2

Falusi CSOK ingatlanok

Eladó családi ház
Eladó családi ház

Tápszentmiklós

64.9 M Ft
5 szoba
110 m2
Eladó téglalakás
Eladó téglalakás

Balatonszemes

86.8 M Ft
2 szoba
58 m2
Eladó családi ház
Eladó családi ház

Németkér

149.9 M Ft
2 szoba
540 m2
Eladó családi ház
Eladó családi ház

Tápióság

17 M Ft
1 szoba
44 m2
Eladó családi ház
Eladó családi ház

Ceglédbercel, Iskola utca

89.99 M Ft
5 szoba
110 m2
Eladó családi ház
Eladó családi ház

Ónod, Barátság 9

31.999 M Ft
3 szoba
150 m2
Eladó családi ház
Eladó családi ház

Enese

72.025 M Ft
4 szoba
75 m2
Eladó ikerház
Eladó ikerház

Balatonakali

165 M Ft
4 szoba
138 m2