River Life

Eladó családi ház
Emőd

Figyelem!

Ez az ingatlan a 2019.07.01-től induló falusi CSOK által támogatott településen található

+ 11 kép 1/14
19 000 000 Ft19 M Ft 154 472 Ft/m2
2 szoba
123 m2
építés éve:1960

Részletes adatok

Állapot: Felújítandó
Telekméret: 400 m2
Fűtés: Egyéb
Energetikai besorolás: Nem adta meg a hirdető

Az OTP Bank lakáshitel ajánlataFizetett hirdetés

+36 70 907
Klubert Gergő
OTP Ingatlanpont Miskolc Szemere

Érdekel az OTP Bank kedvezményes lakáshitel ajánlata? *

* A kérdésre „Igen” válasz bejelölése esetén, az „Üzenet küldése” gombra kattintva kijelentem, hogy az OTP Bank Nyrt. Adatkezelési tájékoztatójának tartalmát megismertem és tudomásul vettem.

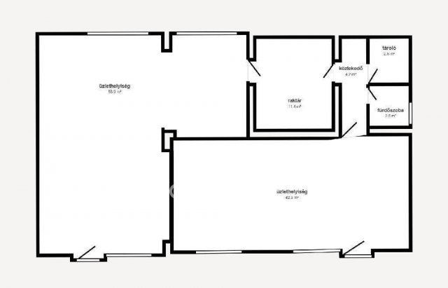
Eladó családi ház leírása

Fedezze fel Emőd fő utcáján ezt az egyedülálló INGATLANLEHETŐSÉGET!

Eladásra kínálunk egy 120 m2 nagyságú épületet, amely REMEK ALKALMAT nyújt mindazoknak, akik családi otthont keresnek, üzlethelyiséget alakítanának ki, vagy BÁRMILYEN VÁLLALKOZÁS számára keresnek ideális helyszínt. Az ingatlan elhelyezkedése KIVÁLÓ, központi fekvése miatt gyorsan elérhető minden fontos helyszín.

Az épület számos előnnyel rendelkezik, amelyek vonzóvá teszik a BEFEKTETŐK és MAGÁNSZEMÉLYEK számára egyaránt. A friss, 2024-es TETŐFELÚJÍTÁS során újralecezést, fóliázást és a szarufák cseréjét végezték el, így a tetőszerkezet hosszú távon MEGBÍZHATÓ. A VÍZVEZETÉKEK és egyéb infrastruktúra szintén korszerűsítésen esett át, így a jövőbeni tulajdonos KORSZERŰ és JÓL MŰKÖDŐ rendszereket vehet birtokba.

Az épület vegyes falazata és VASTAG BETONALAPJA biztosítja a szerkezet stabilitását és a vizesedés kivédését. Az elektromos hálózat RÉZKÁBELLEL van szerelve, ráadásul éjszakai árammal rendelkezik, ami energiatakarékos üzemeltetést tesz lehetővé.
Mindezen felül a vele járó lehetőségek szinte végtelenek: a vizesblokk már elkészült, és különféle helyiségek kialakítására is van lehetőség, hogy az új tulajdonos IGÉNYEI SZERINT alakíthassa tovább a teret.

Finanszírozási megoldásokban teljes OTP BANKI TERMÉKPALLETÁNKKAL (Babaváró, CSOK, személyi kölcsön, lakáshitel) segítjük a vásárlása lebonyolítását, így az ingatlan megvásárlása könnyedén elérhetővé válik minden érdeklődő számára.
Ne hagyja ki ezt a sokoldalú, KIVÉTELES INGATLANLEHETŐSÉGET Emőd szívében! Az ingatlan referenciaszámával kapcsolatban és további információkért kérjük, vegye fel velünk a kapcsolatot! Referenciaszám: M295462

Hirdetés feltöltve: 2025. 10. 14. Utoljára módosítva: 2025. 12. 03.

2 szobás családi házak ára Emődön

Ebből az összehasonlításból megtudhatod, hogyan viszonyul a lakás ára a környékbeli családi házak átlagos árához. Ez nem azt jelenti, hogy ennyivel olcsóbb vagy drágább, mint amennyit a lakás ér, hanem hogy ennyivel tér el a környékbeli átlagtól.

Ennek a m² ára
Emőd m² ár
154 e Ft
291 e Ft 47%
Ennek az ára
Emőd átlagár
19 M Ft m Ft
30.2 m Ft 37%

Az ingatlan elhelyezkedése

Cím: Emőd

Eladó családi házak a környékről

Eladó családi ház
Eladó családi ház

Miskolc

25.9 M Ft
4 szoba
148 m2
Eladó családi ház
Eladó családi ház

Emőd

62 M Ft
3 szoba
89 m2
Eladó családi ház
Eladó családi ház

Miskolc, Vargahegy, Margaréta utca

14.5 M Ft
1 szoba
42 m2
Eladó családi ház
Eladó családi ház

Emőd

19 M Ft
2 szoba
123 m2
Eladó családi ház
Eladó családi ház

Emőd

19.9 M Ft
5 szoba
81 m2
Eladó családi ház
Eladó családi ház

Emőd, Arany János

34.5 M Ft
2 + 1 szoba
100 m2
Eladó családi ház
Eladó családi ház

Tarcal

19.9 M Ft
3 szoba
110 m2
Eladó családi ház
Eladó családi ház

Emőd

19 M Ft
2 szoba
123 m2
Eladó családi ház
Eladó családi ház

Ózd

13 M Ft
5 szoba
150 m2
Eladó családi ház
Eladó családi ház

Miskolc

25.9 M Ft
4 szoba
148 m2
Eladó családi ház
Eladó családi ház

Emőd

215 M Ft
4 szoba
140 m2
Eladó családi ház
Eladó családi ház

Ózd, 48-as út

39.9 M Ft
3 + 1 szoba
300 m2
Eladó családi ház
Eladó családi ház

Gönc, Kossuth Lajos utca

26 M Ft
2 + 1 szoba
130 m2
Eladó családi ház
Eladó családi ház

Emőd

22.9 M Ft
3 szoba
67 m2
Eladó családi ház
Eladó családi ház

Tiszalúc, Alkotmány utca

16.9 M Ft
4 szoba
137 m2
Eladó családi ház
Eladó családi ház

Gönc

26 M Ft
3 szoba
130 m2
Eladó családi ház
Eladó családi ház

Emőd

19 M Ft
2 szoba
123 m2
Eladó családi ház
Eladó családi ház

Ózd

25.99 M Ft
4 szoba
198 m2
Eladó családi ház
Eladó családi ház

Emőd, Ilona utca 25

2.6 M Ft
1 + 1 szoba
49 m2
Eladó családi ház
Eladó családi ház

Taktaharkány, Magtár utca

9.9 M Ft
3 szoba
100 m2
Eladó családi ház
Eladó családi ház

Taktaszada, Thököly utca

37 M Ft
4 + 1 szoba
190 m2
Eladó családi ház
Eladó családi ház

Emőd, Ilona utca 25

2.6 M Ft
1 + 1 szoba
49 m2
Eladó családi ház
Eladó családi ház

Emőd

215 M Ft
4 szoba
140 m2
Eladó családi ház
Eladó családi ház

Tiszalúc

19.9 M Ft
4 szoba
180 m2

Falusi CSOK ingatlanok

Eladó sorház
Eladó sorház

Szob

16 M Ft
2 szoba
45 m2
Eladó családi ház
Eladó családi ház

Örkény

49.5 M Ft
5 szoba
100 m2
Eladó téglalakás
Eladó téglalakás

Balatonszemes

123.3 M Ft
2 szoba
70 m2
Eladó családi ház
Eladó családi ház

Bakonyszentkirály

99.99 M Ft
5 szoba
126 m2
Eladó panellakás
Eladó panellakás

Pétfürdő

49.9 M Ft
3 szoba
71 m2
Eladó téglalakás
Eladó téglalakás

Rétság

44.9 M Ft
2 szoba
55 m2
Eladó családi ház
Eladó családi ház

Hegyeshalom

85 M Ft
4 + 1 szoba
123 m2
Eladó családi ház
Eladó családi ház

Pécsely, Szőlő Dülő

499 M Ft
4 + 2 szoba
183 m2

Falusi CSOK ingatlanok

Eladó családi ház
Eladó családi ház

Kaposgyarmat

695 M Ft
6 szoba
610 m2
Eladó családi ház
Eladó családi ház

Himesháza

119.9 M Ft
4 szoba
160 m2
Eladó családi ház
Eladó családi ház

Törtel

10 M Ft
2 szoba
43 m2
Eladó családi ház
Eladó családi ház

Törtel

18 M Ft
6 szoba
188 m2
Eladó családi ház
Eladó családi ház

Fertőd

189.9 M Ft
4 szoba
175 m2
Eladó családi ház
Eladó családi ház

Tápiógyörgye

33 M Ft
3 + 2 szoba
140 m2
Eladó családi ház
Eladó családi ház

Tokod

89 M Ft
6 szoba
187 m2
Eladó téglalakás
Eladó téglalakás

Vasvár

40.52 M Ft
2 szoba
59 m2