City Pearl

Eladó családi ház
Eger

+ 14 kép 1/17
89 900 000 Ft89.9 M Ft 749 167 Ft/m2
3 + 1 szoba
120 m²
építés éve:2010

Részletes adatok

Telekméret: 244 m2
Fűtés: Gázkazán
Komfort: Duplakomfortos
Energetikai besorolás: Nem adta meg a hirdető

Az OTP Bank lakáshitel ajánlataFizetett hirdetés

+36 70 334
Farsang Sándor
referens

Érdekel az OTP Bank kedvezményes lakáshitel ajánlata? *

* A kérdésre „Igen” válasz bejelölése esetén, az „Üzenet küldése” gombra kattintva kijelentem, hogy az OTP Bank Nyrt. Adatkezelési tájékoztatójának tartalmát megismertem és tudomásul vettem.

Eladó családi ház leírása

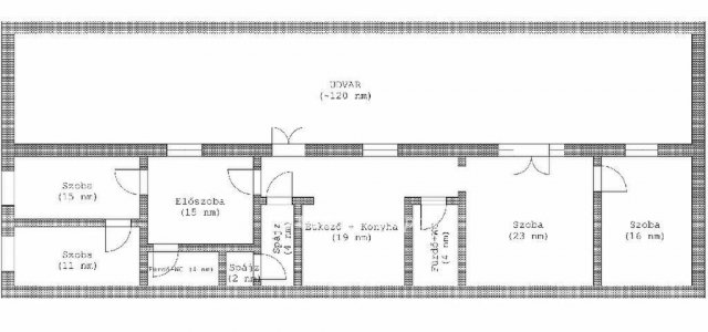
KIZÁRÓLAG INGATLANIRODÁNK KÍNÁLATÁBAN! Heves megye, Eger Hatvani hóstya városrészen, kb. 10 perc sétára a belvárostól, 120m2-es, 4 szobás, szigetelt, jó állapotú családi ház eladó. Helyiségei: bejárat, előszoba, konyha-étkező, 4 szoba, 2 fürdőszoba WC-vel és kamra, mely alatt pince található. A 2 lakrészre tagolódó ingatlan az 1970-es években épült 244m2-es telekre és a 2000-es évek elején 2 szoba hozzáépítésével bővült. A fűtésért kondenzációs cirko kazán felel radiátorokon keresztül, ill. 2 db Midea hűtő- fűtő klíma is beszerelésre került. A fűtés kényelmesen szabályozható távvezérléssel interneten keresztül. A ház az elmúlt években jelentős felújításokon esett át. A 2010-es években megújult a tető, 2022-ben új Westen kondenzációs gázcirko kazán került beépítésre, 2023-ban pedig új Berg külső- és belső nyílászárókat szereltek be. A villamoshálózat is megújult ill. 3 fázisra és éjszakai árammal bővült. A homlokzati kőzetgyapot szigetelésnek köszönhetően a ház rezsije alacsony. A biztonságért korszerű, bejelzős riasztórendszer felel. Parkolásra a térkövezett udvaron van lehetőség. Ez a belváros közeli, tágas, praktikus otthon ideális választás lehet kisebb vagy nagyobb családok számára, akár 2 generáció együtt élésére is, de lokációjánál fogva remek lehetőségeket rejt magában befektetési céllal is, akár rövid- akár hosszú távú kiadásra. Per-, teher- és igénymentes. Ingatlanirodánk ügyvédi háttérrel, Otthon Start, Babaváró, CSOK+, falusi CSOK és egyéb kamatkedvezményes hitel ügyintézés lehetőségével áll ügyfelei rendelkezésére. Rugalmas megtekintés lehetőségével várom megtisztelő hívását!
Otthon Start Hitelprogram

Az energetikai tanúsítvány készítése folyamatban van, amint rendelkezésre áll, úgy azzal a hirdetés frissítésre kerül.

Referencia szám: M320165

Hirdetés feltöltve: 2026. 03. 13. Utoljára módosítva: 2026. 05. 15.

4 szobás családi házak ára Egerben

Ebből az összehasonlításból megtudhatod, hogyan viszonyul a lakás ára a környékbeli családi házak átlagos árához. Ez nem azt jelenti, hogy ennyivel olcsóbb vagy drágább, mint amennyit a lakás ér, hanem hogy ennyivel tér el a környékbeli átlagtól.

Ennek a m² ára
Eger m² ár
749 e Ft
715 e Ft -5%
Ennek az ára
Eger átlagár
89.9 M Ft m Ft
113.4 m Ft 21%

Az ingatlan elhelyezkedése

Cím: Eger

Eladó családi házak a környékről

Hatvan
Eladó családi ház

Hatvan

97.95 M Ft
5 + 2 szoba
253 m²
Recsk
Eladó családi ház

Recsk

23.5 M Ft
1 + 2 szoba
72 m²
Eger, Radnóti Miklós utca
Eladó családi ház

Eger

169 M Ft
6 szoba
250 m²
Eger, Felsőváros
Eladó családi ház

Eger

159 M Ft
5 szoba
205 m²
Eger
Eladó családi ház

Eger

62 M Ft
4 szoba
77 m²
Gyöngyös
Eladó családi ház

Gyöngyös

940 M Ft
30 szoba
4000 m²
Andornaktálya
Eladó családi ház

Andornaktálya

28.5 M Ft
2 szoba
60 m²
Eger
Eladó családi ház

Eger

114.9 M Ft
5 szoba
220 m²
Egerbakta
Eladó családi ház

Egerbakta

36.5 M Ft
5 szoba
120 m²
Eger
Eladó családi ház

Eger

179 M Ft
7 szoba
294 m²
Eger
Eladó családi ház

Eger

440 M Ft
5 szoba
600 m²
Eger
Eladó családi ház

Eger

155 M Ft
300 m²
Eger
Eladó családi ház

Eger

79.999 M Ft
4 szoba
120 m²
Szilvásvárad
Eladó családi ház

Szilvásvárad

92 M Ft
4 + 1 szoba
220 m²
Eger
Eladó családi ház

Eger

440 M Ft
5 szoba
600 m²
Eger
Eladó családi ház

Eger

95 M Ft
11 szoba
373 m²
Eger, Almagyar domb, Íj utca
Eladó családi ház

Eger

199 M Ft
7 szoba
214 m²
Andornaktálya
Eladó családi ház

Andornaktálya

42.5 M Ft
3 szoba
115 m²
Eger
Eladó családi ház

Eger

79 M Ft
5 szoba
148 m²
Gyöngyös
Eladó családi ház

Gyöngyös

28.5 M Ft
1 + 1 szoba
62 m²
Parád
Eladó családi ház

Parád

47 M Ft
8 + 5 szoba
383 m²
Mátraderecske
Eladó családi ház

Mátraderecske

74 M Ft
4 szoba
200 m²
Bükkszék
Eladó családi ház

Bükkszék

78.9 M Ft
2 + 1 szoba
160 m²
Gyöngyös
Eladó családi ház

Gyöngyös

940 M Ft
1 szoba
4000 m²

Falusi CSOK ingatlanok

Maráza
Eladó családi ház

Maráza

29.9 M Ft
3 szoba
96 m²
Szentmártonkáta
Eladó családi ház

Szentmártonkáta

59.99 M Ft
6 szoba
117 m²
Győrság
Eladó családi ház

Győrság

89.9 M Ft
4 szoba
92 m²
Szigetújfalu
Eladó családi ház

Szigetújfalu

66 M Ft
3 szoba
118 m²
Csurgó
Eladó családi ház

Csurgó

29 M Ft
3 szoba
80 m²
Katymár
Eladó családi ház

Katymár

34 M Ft
5 szoba
200 m²
Nyírjákó
Eladó családi ház

Nyírjákó

19 M Ft
3 szoba
115 m²
Rétság
Eladó téglalakás

Rétság

34.9 M Ft
2 szoba
55 m²