Astora Olive Club House

Eladó családi ház
Eger

+ 17 kép 1/20
149 000 000 Ft149 M Ft 1 211 382 Ft/m2
3 szoba
123 m²
építés éve:1950

Részletes adatok

Állapot: Felújított
Telekméret: 164 m2
Fűtés: Egyéb
Komfort: Összkomfortos
Energetikai besorolás: Nem adta meg a hirdető

Az OTP Bank lakáshitel ajánlataFizetett hirdetés

+36 70 334
Farsang Sándor
referens

Érdekel az OTP Bank kedvezményes lakáshitel ajánlata? *

* A kérdésre „Igen” válasz bejelölése esetén, az „Üzenet küldése” gombra kattintva kijelentem, hogy az OTP Bank Nyrt. Adatkezelési tájékoztatójának tartalmát megismertem és tudomásul vettem.

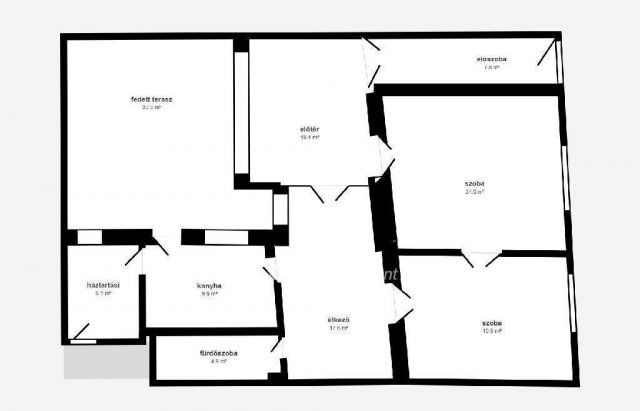
Eladó családi ház leírása

Heves vármegye, Eger belvárosnak közelében egy 140 m2-es elegáns és modern kényelmi megoldásokkal felszerelt családi ház eladó.
Az ingatlan a Deák Ferenc utcában található, rendezett környezetben. A házban előszoba, fényes nappali, 2 tágas hálószoba, étkező, konyha, zuhanyzós fürdőszoba WC-vel, valamint egy praktikus házimunka helyiség található, ahonnan a pince is megközelíthető. Az 50 m2-es, fűthető pince kis ablakkal rendelkezik, jelenleg klubszobaként van kialakítva. A házhoz tartozik továbbá egy 60 m2-es fedett terasz, amely ideális szabadtéri pihenésre és vendégfogadásra. A fürdőszoba járólappal, a többi helyiség pedig laminált padlóval burkolt. Az otthon melegét hőszivattyús rendszer biztosítja, alternatívaként gáz-cirkó és kályha is rendelkezésre áll.

Az ingatlan néhány éve jelentős felújításon esett át: hőszivattyús fűtési-hűtési rendszer kiépítése, 10 kW-os napelemrendszer telepítése a tetőre, a teljes villamos hálózat korszerűsítése, elektromos redőnyök, kamera-, riasztó- és beléptetőrendszer telepítése, az eredeti fa ablakokat felújítása, hőszigetelt üvegezéssel.

A ház előtt saját, 4-5 autó számára kényelmes parkoló áll rendelkezésre.
Az ingatlan minden részlete átgondolt, jól megtervezett és magas minőséget képvisel. Nemcsak családi háznak, de vendégháznak, elegáns orvosi rendelőnek vagy irodának is kiváló választás.
A ház jelenlegi berendezéssel együtt eladó, így akár azonnal költözhető. A bútorzat a vételár részét képezi, de igény esetén megállapodás tárgyát képezheti.
További információért hívjon bizalommal, akár hétvégén is. Ügyfeleink számára igény esetén kedvező hitellehetőséget, megbízható ügyvédi közreműködést és irodai hátteret biztosítunk a szerződéskötéshez. Kérem, érdeklődéskor hivatkozzon az M317855 számra.

Az energetikai tanúsítvány készítése folyamatban van, amint rendelkezésre áll, úgy azzal a hirdetés frissítésre kerül.

Referencia szám: M317855

Hirdetés feltöltve: 2026. 03. 13. Utoljára módosítva: 2026. 05. 15.

3 szobás családi házak ára Egerben

Ebből az összehasonlításból megtudhatod, hogyan viszonyul a lakás ára a környékbeli családi házak átlagos árához. Ez nem azt jelenti, hogy ennyivel olcsóbb vagy drágább, mint amennyit a lakás ér, hanem hogy ennyivel tér el a környékbeli átlagtól.

Ennek a m² ára
Eger m² ár
1211 e Ft
698 e Ft -73%
Ennek az ára
Eger átlagár
149 M Ft m Ft
76.4 m Ft -95%

Az ingatlan elhelyezkedése

Cím: Eger

Eladó családi házak a környékről

Eger
Eladó családi ház

Eger

79 M Ft
6 + 2 szoba
260 m²
Eger
Eladó családi ház

Eger

179 M Ft
7 szoba
294 m²
Eger, Mátyás király utca
Eladó családi ház

Eger

74.9 M Ft
6 szoba
211 m²
Eger, Felsőváros
Eladó családi ház

Eger

159 M Ft
5 szoba
205 m²
Gyöngyös
Eladó családi ház

Gyöngyös

940 M Ft
30 szoba
4000 m²
Eger
Eladó családi ház

Eger

145 M Ft
5 szoba
230 m²
Poroszló
Eladó családi ház

Poroszló

22 M Ft
2 szoba
65 m²
Egerbakta
Eladó családi ház

Egerbakta

36.5 M Ft
5 szoba
120 m²
Eger
Eladó családi ház

Eger

149 M Ft
6 szoba
159 m²
Eger, Almagyar domb, Íj utca
Eladó családi ház

Eger

199 M Ft
7 szoba
214 m²
Eger
Eladó családi ház

Eger

75 M Ft
4 szoba
95 m²
Eger
Eladó családi ház

Eger

95 M Ft
3 + 1 szoba
186 m²
Eger
Eladó családi ház

Eger

440 M Ft
5 szoba
600 m²
Karácsond
Eladó családi ház

Karácsond

29.5 M Ft
3 szoba
88 m²
Bodony
Eladó családi ház

Bodony

24.5 M Ft
3 szoba
95 m²
Recsk
Eladó családi ház

Recsk

23.5 M Ft
1 + 2 szoba
72 m²
Andornaktálya
Eladó családi ház

Andornaktálya

28.5 M Ft
2 szoba
60 m²
Eger
Eladó családi ház

Eger

79.999 M Ft
4 szoba
120 m²
Parád
Eladó családi ház

Parád

47 M Ft
8 + 5 szoba
383 m²
Felsőtárkány
Eladó családi ház

Felsőtárkány

135 M Ft
3 + 1 szoba
160 m²
Eger
Eladó családi ház

Eger

440 M Ft
5 szoba
600 m²
Szarvaskő
Eladó családi ház

Szarvaskő

230 M Ft
5 szoba
424 m²
Eger, Radnóti Miklós utca
Eladó családi ház

Eger

169 M Ft
6 szoba
250 m²
Eger
Eladó családi ház

Eger

79 M Ft
5 szoba
148 m²

Falusi CSOK ingatlanok

Sumony
Eladó családi ház

Sumony

19 M Ft
4 szoba
120 m²
Seregélyes
Eladó családi ház

Seregélyes

87 M Ft
4 szoba
96 m²
Bag
Eladó családi ház

Bag

16.9 M Ft
6 szoba
160 m²
Sásd
Eladó családi ház

Sásd

35.9 M Ft
4 + 1 szoba
71 m²
Kétegyháza
Eladó családi ház

Kétegyháza

21 M Ft
3 szoba
105 m²
Porva
Eladó családi ház

Porva

74.6 M Ft
3 szoba
115 m²
Ceglédbercel
Eladó családi ház

Ceglédbercel

89 M Ft
4 szoba
135 m²
Balatonszemes
Eladó téglalakás

Balatonszemes

125.2 M Ft
2 szoba
50 m²