BAM Living

Eladó családi ház
Écs

+ 2 kép 1/5
98 500 000 Ft98.5 M Ft 895 455 Ft/m2
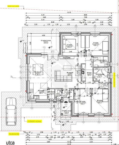
5 szoba
110 m2
építés éve:2026

Részletes adatok

Telekméret: 1400 m2
Fűtés: Geotermikus
Parkolás: Garázs
Közmű: Villany
Energetikai besorolás: Nem adta meg a hirdető

Az OTP Bank lakáshitel ajánlataFizetett hirdetés

+36 30 651
Balogh János
B&B Ingatlaniroda

Érdekel az OTP Bank kedvezményes lakáshitel ajánlata? *

* A kérdésre „Igen” válasz bejelölése esetén, az „Üzenet küldése” gombra kattintva kijelentem, hogy az OTP Bank Nyrt. Adatkezelési tájékoztatójának tartalmát megismertem és tudomásul vettem.

Eladó családi ház leírása

Győr közelében Écsen, újonnan épülő, igényes kialakítású, tégla építésű családi ház leköthető.

A nappali + négy szobával(vagy akár több szobával) rendelkező ingatlan alapterülete nettó 110 m2, mely igény szerint módosítható.
A praktikusan tervezett házban a szobákon kívül tágas és napfényes amerikai konyhás nappali, gardrób, kamra, szélfogó, közlekedő, fürdőszoba+wc, háztartási helyiség és egy külön mellékhelyiség is kialakításra kerül.
Az élhető méretű telek összesen 1400 m2-es, mely 30%-ban beépíthető.
A feltüntetett vételár az emelt szintű fűtés kész árat és a telek árát tartalmazza, de igény esetén kulcsra kész befejezésre is van lehetőség!
Továbbá az ár tartalmazza a komplett tervezői díjat(gépészet, metszetek, statika, energetika, engedélyek), plusz egy inverteres(hűtő-fűtő) klímát!
A jelenlegi árajánlatban az otthon melegéről hőszivattyús fűtésrendszer gondoskodik, padlófűtéses hőleadással, de a fűtésrendszer is az építtető igényei alapján módosítható!
A részletes műszaki leírást és az Építőipari cég weboldalát kérésére e-mailben elküldöm.

Más az elképzelése? Válassza ki Ön a saját elképzeléseinek megfelelő alaprajzot!
Amennyiben teljesen egyedi tervezést szeretne, az is lehetséges!
A képek látványtervek.

Jól átgondolt tervezés, megfelelő szakmai tudás és háttér garantálja a MINŐSÉGI OTTHON megvalósítását!

További kérdés esetén állok rendelkezésére!
Amennyiben megbízható építtetőt szeretne, referenciamunkákkal, minőségi anyagokkal és kivitelezéssel, hívjon bizalommal akár hétvégén is!
Teljes körű ügyintézéssel:
- Ügyvéd
- Biztosítás
- Hiteltanácsadás
- Generálkivitelezés
- Ingatlanértékesítés
- Teljeskörű ingatlanfelújítás
- CSOK, babaváró, áfa visszaigénylés - állunk rendelkezésére!

Hirdetés feltöltve: 2025. 06. 02. Utoljára módosítva: 2026. 01. 28.

Az ingatlan elhelyezkedése

Cím: Écs

Eladó ingatlanok a környékről

Eladó üzlethelyiség
Eladó üzlethelyiség

Cirák

47.9 M Ft
3 szoba
570 m2
Eladó családi ház
Eladó családi ház

Écs

92 M Ft
4 szoba
190 m2
Eladó üzlethelyiség
Eladó üzlethelyiség

Cirák

47.9 M Ft
3 szoba
570 m2
Eladó családi ház
Eladó családi ház

Écs

71.527 M Ft
4 szoba
81 m2
Eladó ikerház
Eladó ikerház

Pér

61.067 M Ft
4 szoba
80 m2
Eladó családi ház
Eladó családi ház

Jánossomorja

607.507 M Ft
12 szoba
405 m2
Eladó családi ház
Eladó családi ház

Győrszemere

90.588 M Ft
5 szoba
95 m2
Eladó panellakás
Eladó panellakás

Bakonyszentlászló, Fenyves utca

42.5 M Ft
4 szoba
68 m2
Eladó családi ház
Eladó családi ház

Csorna

43.9 M Ft
2 szoba
65 m2
Eladó családi ház
Eladó családi ház

Sopron, Deák tér környéke, Mikoviny utca

245 M Ft
6 szoba
371 m2
Eladó családi ház
Eladó családi ház

Harka

60.9 M Ft
3 + 1 szoba
67 m2
Eladó családi ház
Eladó családi ház

Fertőszéplak

92 M Ft
5 szoba
95 m2
Eladó téglalakás
Eladó téglalakás

Győr

49.99 M Ft
2 szoba
45 m2
Eladó családi ház
Eladó családi ház

Sopron

170 M Ft
4 szoba
122 m2
Eladó családi ház
Eladó családi ház

Enese

64.664 M Ft
3 szoba
75 m2
Eladó családi ház
Eladó családi ház

Écs

89.9 M Ft
4 szoba
136 m2
Eladó családi ház
Eladó családi ház

Harka

99 M Ft
4 szoba
103 m2
Eladó téglalakás
Eladó téglalakás

Győr

98 M Ft
3 szoba
88 m2
Eladó családi ház
Eladó családi ház

Nagycenk

64.8 M Ft
3 + 1 szoba
76 m2
Eladó családi ház
Eladó családi ház

Nagycenk

102.5 M Ft
4 szoba
98 m2
Eladó családi ház
Eladó családi ház

Écs

105 M Ft
3 szoba
100 m2
Eladó családi ház
Eladó családi ház

Rábapatona

165 M Ft
4 szoba
225 m2
Eladó családi ház
Eladó családi ház

Győrújbarát

154.5 M Ft
4 szoba
230 m2
Eladó ikerház
Eladó ikerház

Pér

61.067 M Ft
4 szoba
80 m2

Falusi CSOK ingatlanok

Eladó családi ház
Eladó családi ház

Nagypall, Szabadság utca

35.9 M Ft
3 szoba
125 m2
Eladó családi ház
Eladó családi ház

Nagyváty, Kossuth utca

51.9 M Ft
4 szoba
125 m2
Eladó családi ház
Eladó családi ház

Újhartyán, Gödör utca

81.99 M Ft
3 szoba
110 m2
Eladó családi ház
Eladó családi ház

Vasboldogasszony

85 M Ft
6 szoba
180 m2
Eladó családi ház
Eladó családi ház

Magyarszék

48.5 M Ft
3 + 1 szoba
86 m2
Eladó családi ház
Eladó családi ház

Kislőd

53.2 M Ft
3 szoba
86 m2
Eladó családi ház
Eladó családi ház

Hegyeshalom

190 M Ft
2 szoba
120 m2
Eladó családi ház
Eladó családi ház

Nagyhegyes

44.9 M Ft
2 szoba
72 m2