Oasis Residence

Eladó családi ház
Dunaharaszti

+ 16 kép 1/19
91 500 000 Ft91.5 M Ft 855 140 Ft/m2
2 + 1 szoba
107 m2
építés éve:1960

Részletes adatok

Állapot: Felújított
Telekméret: 536 m2
Fűtés: Gázkazán
Energetikai besorolás: Nem adta meg a hirdető

Az OTP Bank lakáshitel ajánlataFizetett hirdetés

+36 70 744
Grünwald Norbert
Szigetszentmiklós OTP Ip

Érdekel az OTP Bank kedvezményes lakáshitel ajánlata? *

* A kérdésre „Igen” válasz bejelölése esetén, az „Üzenet küldése” gombra kattintva kijelentem, hogy az OTP Bank Nyrt. Adatkezelési tájékoztatójának tartalmát megismertem és tudomásul vettem.

Eladó családi ház leírása

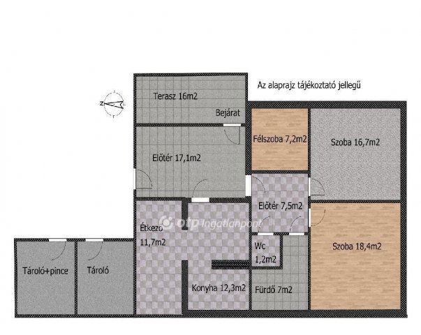
Eladóvá vált Dunaharaszti egyik nyugodt részén egy 536 m2-es telken lévő 107 m2-es, 2+1 szobás, felújított családi ház. Az ingatlan 60-as években épült, de ma már szinte minden porcikája megújult. A ház különlegessége, hogy az utcafronti része még a régi, masszív vályog falazattal készült, míg a hátsó rész már modern téglából épült, 10cm-es hőszigeteléssel ellátva, így a hangulatosság és a korszerűség szépen találkozik az ingatlanban. A ház nemrégiben jelentős felújításon ment keresztül, amely során számos lényeges felújítást végeztek el, a kényelmes és biztonságos mindennapok érdekében. A fűtési rendszer modern, az ablakok korszerűek, a burkolatok igényesek, és a klímakomfort is megoldott. A kert mérete ideális: van benne elég hely pihenésre, kertészkedésre vagy akár egy hétvégi grillezésre is. Több melléképület és kényelmes autóbeállási lehetőség is rendelkezésre áll. A környék családbarát és nyugodt, ugyanakkor remekül megközelíthető, autóval és tömegközlekedéssel egyaránt. A közeli óvodák, iskolák, boltok, valamint a sportolási és kulturális lehetőségek mind egy karnyújtásnyira vannak. Budapest autóval gyorsan elérhető, de a jól kiépített tömegközlekedésnek köszönhetően azok számára is kényelmes megoldás, akik naponta ingáznak a fővárosba munkába vagy iskolába. Az OTP Bankcsoport teljes körű ügyintézéssel áll az eladók és a vevők rendelkezésére! A kínálatunkból választott ingatlan finanszírozásához kedvezményes hitelkonstrukciókat kínálunk. Az adásvételi szerződés megkötéséhez igény szerint megbízható ügyvédi közreműködést biztosítunk és segítséget nyújtunk az adásvételhez kapcsolódó ügyek intézéséhez. Referenciaszám: M318950

Hirdetés feltöltve: 2025. 12. 08. Utoljára módosítva: 2026. 01. 13.

3 szobás családi házak ára Dunaharasztin

Ebből az összehasonlításból megtudhatod, hogyan viszonyul a lakás ára a környékbeli családi házak átlagos árához. Ez nem azt jelenti, hogy ennyivel olcsóbb vagy drágább, mint amennyit a lakás ér, hanem hogy ennyivel tér el a környékbeli átlagtól.

Ennek a m² ára
Dunaharaszti m² ár
855 e Ft
1113 e Ft 23%
Ennek az ára
Dunaharaszti átlagár
91.5 M Ft m Ft
97.8 m Ft 6%

Az ingatlan elhelyezkedése

Cím: Dunaharaszti

Eladó családi házak a környékről

Eladó családi ház
Eladó családi ház

Kerepes

81.99 M Ft
5 szoba
102 m2
Eladó családi ház
Eladó családi ház

Kerepes

199 M Ft
6 szoba
360 m2
Eladó családi ház
Eladó családi ház

Dunaharaszti

139.99 M Ft
4 + 1 szoba
239 m2
Eladó családi ház
Eladó családi ház

Budaörs, Városközpont utca

119.5 M Ft
5 + 1 szoba
140 m2
Eladó családi ház
Eladó családi ház

Dunaharaszti

204.999 M Ft
6 szoba
192 m2
Eladó családi ház
Eladó családi ház

Gyál, Gyál út

169.9 M Ft
2 szoba
90 m2
Eladó családi ház
Eladó családi ház

Dunaharaszti

34.99 M Ft
2 + 1 szoba
85 m2
Eladó családi ház
Eladó családi ház

Tápiószele

37.9 M Ft
4 szoba
141 m2
Eladó családi ház
Eladó családi ház

Tápiószele

11.9 M Ft
3 szoba
62 m2
Eladó családi ház
Eladó családi ház

Dunaharaszti

255 M Ft
15 szoba
440 m2
Eladó családi ház
Eladó családi ház

Dunakeszi

250 M Ft
4 szoba
180 m2
Eladó családi ház
Eladó családi ház

Remeteszőlős

399.9 M Ft
5 + 2 szoba
260 m2
Eladó családi ház
Eladó családi ház

Dunaharaszti

129.9 M Ft
5 szoba
236 m2
Eladó családi ház
Eladó családi ház

Dunaharaszti

75.99 M Ft
3 + 1 szoba
115 m2
Eladó családi ház
Eladó családi ház

Tápiószentmárton

7.9 M Ft
2 + 1 szoba
86 m2
Eladó családi ház
Eladó családi ház

Tápiószentmárton

48 M Ft
5 szoba
180 m2
Eladó családi ház
Eladó családi ház

Dunaharaszti

150 M Ft
6 szoba
260 m2
Eladó családi ház
Eladó családi ház

Dunaharaszti

150 M Ft
6 szoba
260 m2
Eladó családi ház
Eladó családi ház

Dunaharaszti

330 M Ft
4 szoba
421 m2
Eladó családi ház
Eladó családi ház

Dunaharaszti

109 M Ft
6 szoba
300 m2
Eladó családi ház
Eladó családi ház

Leányfalu

237 M Ft
9 szoba
800 m2
Eladó családi ház
Eladó családi ház

Dunaharaszti

159.9 M Ft
4 szoba
180 m2
Eladó családi ház
Eladó családi ház

Dunaharaszti

88.9 M Ft
3 szoba
90 m2
Eladó családi ház
Eladó családi ház

Pécel, Reményik Sándor utca

296 M Ft
6 szoba
396 m2

Falusi CSOK ingatlanok

Eladó családi ház
Eladó családi ház

Sály, Kossuth Lajos 128

30.8 M Ft
6 szoba
160 m2
Eladó családi ház
Eladó családi ház

Nyékládháza, Mátyás király utca

34.9 M Ft
2 szoba
88 m2
Eladó családi ház
Eladó családi ház

Szabadbattyán

67.5 M Ft
5 szoba
180 m2
Eladó családi ház
Eladó családi ház

Ácsteszér

59 M Ft
5 szoba
116 m2
Eladó családi ház
Eladó családi ház

Vép

38.9 M Ft
4 szoba
94 m2
Eladó családi ház
Eladó családi ház

Bag

16.9 M Ft
6 szoba
160 m2
Eladó családi ház
Eladó családi ház

Becsehely

18.5 M Ft
2 szoba
99 m2
Eladó téglalakás
Eladó téglalakás

Kőröshegy

68 M Ft
2 szoba
65 m2