Stay Family Park

Eladó családi ház
Dunaharaszti

+ 17 kép 1/20
114 800 000 Ft114.8 M Ft 420 513 Ft/m2
6 szoba
273 m2
építés éve:1982

Részletes adatok

Állapot: Felújítandó
Telekméret: 500 m2
Fűtés: Egyéb
Parkolás: Garázs
Energetikai besorolás: Nem adta meg a hirdető
Zenga Premier

Friss hirdetések, amiket nem találsz meg más ingatlankereső portálon.

Fedezd fel elsőként a Zenga Premier címkés eladó ingatlanokat!

További részletek a zenga.hu-n

Az OTP Bank lakáshitel ajánlataFizetett hirdetés

+36 70 269
Göbölyös Judit
referens

Érdekel az OTP Bank kedvezményes lakáshitel ajánlata? *

* A kérdésre „Igen” válasz bejelölése esetén, az „Üzenet küldése” gombra kattintva kijelentem, hogy az OTP Bank Nyrt. Adatkezelési tájékoztatójának tartalmát megismertem és tudomásul vettem.

Eladó családi ház leírása

Több generáció együttélésére alkalmas ingatlan!

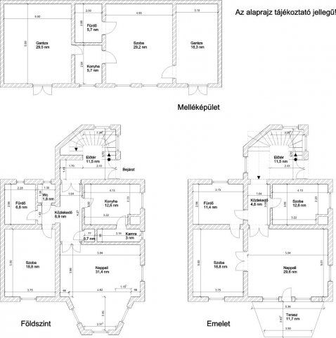
Dunaharaszti óvárosában kínálunk megvételre egy 1982-ben téglából épült, szigetelt, több generáció együttélésére alkalmas nettó 273 nm-es ingatlant, mely egy 184 nm-es kétszintes, önálló családi házból és egy 88 nm-es melléképületből áll, 682 nm-es telken.

A nagyház beosztása:
- Földszint-
- előtér 11,5 nm,
- közlekedő 8,9 nm,
- konyha 12,6 nm,
- fürdőszoba 6,8 nm,
- WC 1,8 nm,
- szoba 18,8 nm,
- szoba 31,4 nm,
- nappali 31,4 nm,
---------------------------
összesen: 95,5 nm.

- Emelet-
- előtér 11,5 nm,
- közlekedő 4,8 nm,
- szoba 12,6 nm,
- fürdőszoba +WC 11,4 nm,
- szoba 18,8 nm,
- nappali 29,6 nm,
---------------------------
összesen: 88,7 nm.
+ terasz: 11,7 nm.
- pincében ( 8 nm ) kazánház.

A melléképület 1978-ban téglából épült, egy 40,6 nm-es lakás és 2 db garázs lett kialakítva benne.

Az ingatlanban 5 db hűtő-fűtő klíma és egy épített cserépkályha biztosítja a fűtést, a melegvíz villanybojlerről megoldott.

Amivel segítjük az Ön ingatlanvásárlását:
- ingyenes hitelügyintézés,
- jogi háttér,
- földhivatali ügyintézés,
- energetikai tanúsítvány,
- a vevő számára az ingatlanközvetítés ingyenes.

Irodánk 30 éves szakmai tapasztalattal áll ügyfelei rendelkezésére!

Várom szíves megkeresését! ...TOVÁBBI, TÖBBEZRES INGATLAN KÍNÁLAT: www.gdn-ingatlan.hu - GDN azonosító: 389385

Hirdetés feltöltve: 2025. 11. 11. Utoljára módosítva: 2025. 11. 11.

Az ingatlan elhelyezkedése

Cím: Dunaharaszti

Eladó családi házak a környékről

Eladó családi ház
Eladó családi ház

Budakeszi, Budakeszi kertváros

229 M Ft
10 szoba
450 m2
Eladó családi ház
Eladó családi ház

Gyál, Gyál út

169.9 M Ft
2 szoba
90 m2
Eladó családi ház
Eladó családi ház

Dunaharaszti

90 M Ft
3 szoba
90 m2
Eladó családi ház
Eladó családi ház

Tápiógyörgye

19.9 M Ft
3 szoba
65 m2
Eladó családi ház
Eladó családi ház

Dunaharaszti

129 M Ft
9 szoba
400 m2
Eladó családi ház
Eladó családi ház

Dunaharaszti

34.99 M Ft
2 + 1 szoba
85 m2
Eladó családi ház
Eladó családi ház

Dunakeszi

250 M Ft
4 szoba
180 m2
Eladó családi ház
Eladó családi ház

Dunaharaszti

204.999 M Ft
6 szoba
192 m2
Eladó családi ház
Eladó családi ház

Sződ, Rátóti utca

149.99 M Ft
11 szoba
270 m2
Eladó családi ház
Eladó családi ház

Budakeszi

130 M Ft
5 szoba
30 m2
Eladó családi ház
Eladó családi ház

Dunaharaszti

150 M Ft
6 szoba
260 m2
Eladó családi ház
Eladó családi ház

Dunaharaszti

109 M Ft
6 szoba
300 m2
Eladó családi ház
Eladó családi ház

Dunaharaszti

52 M Ft
3 szoba
90 m2
Eladó családi ház
Eladó családi ház

Kerepes

81.99 M Ft
5 szoba
102 m2
Eladó családi ház
Eladó családi ház

Budaörs, Odvshegy utca

268.9 M Ft
5 szoba
235 m2
Eladó családi ház
Eladó családi ház

Dunaharaszti

279 M Ft
7 szoba
450 m2
Eladó családi ház
Eladó családi ház

Dunaharaszti

52 M Ft
3 szoba
99 m2
Eladó családi ház
Eladó családi ház

Dunaharaszti

239 M Ft
5 szoba
200 m2
Eladó családi ház
Eladó családi ház

Tápiószele

37.9 M Ft
4 szoba
141 m2
Eladó családi ház
Eladó családi ház

Dunaharaszti

150 M Ft
6 szoba
260 m2
Eladó családi ház
Eladó családi ház

Kerepes

199 M Ft
6 szoba
360 m2
Eladó családi ház
Eladó családi ház

Dunaharaszti, Kétgenerációs ház

114.5 M Ft
5 + 1 szoba
135 m2
Eladó családi ház
Eladó családi ház

Budaörs, Bányász utca

385 M Ft
6 szoba
300 m2
Eladó családi ház
Eladó családi ház

Tápiószentmárton

7.9 M Ft
2 + 1 szoba
86 m2

Falusi CSOK ingatlanok

Eladó családi ház
Eladó családi ház

Mernye

14.9 M Ft
2 szoba
61 m2
Eladó családi ház
Eladó családi ház

Bodonhely

41.49 M Ft
2 szoba
70 m2
Eladó családi ház
Eladó családi ház

Mátyásdomb

11.99 M Ft
3 + 1 szoba
120 m2
Eladó családi ház
Eladó családi ház

Felsőlajos

100 M Ft
4 szoba
140 m2
Eladó családi ház
Eladó családi ház

Balatonfenyves

430 M Ft
4 szoba
274 m2
Eladó családi ház
Eladó családi ház

Kóny, Kazinczy utca

78.9 M Ft
3 szoba
170 m2
Eladó családi ház
Eladó családi ház

Tass

55 M Ft
2 + 1 szoba
65 m2
Eladó családi ház
Eladó családi ház

Magyarkeresztúr

27.5 M Ft
3 szoba
94 m2