City Pearl

Eladó családi ház
Dunaharaszti

+ 17 kép 1/20
177 900 000 Ft177.9 M Ft 808 636 Ft/m2
5 szoba
220 m2
építés éve:2005

Részletes adatok

Telekméret: 1235 m2
Fűtés: Gázkazán
Energetikai besorolás: Nem adta meg a hirdető

Az OTP Bank lakáshitel ajánlataFizetett hirdetés

+36 70 465
Bittera Viktória
Szi-We Otthona Kft

Érdekel az OTP Bank kedvezményes lakáshitel ajánlata? *

* A kérdésre „Igen” válasz bejelölése esetén, az „Üzenet küldése” gombra kattintva kijelentem, hogy az OTP Bank Nyrt. Adatkezelési tájékoztatójának tartalmát megismertem és tudomásul vettem.

Eladó családi ház leírása

Luxus és kényelem Dunaharaszti szívében – Okos Otthon két generáció számára!

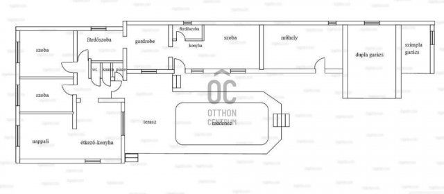
Eladó Dunaharasztin egy 220 nm +90 nm (Műhely, kétállásos garázs, egyállásos garázs,) +60 nm (pince,Terasz, nyári sütügető) , 5 szobás, prémium felszereltségű családi ház 1235 m²-es, körbekerített telken, amely Okos Otthon technológiával és kivételes extrákkal kínál biztonságot akár két generáció számára is.

Okos Otthon vezérlés – applikáción keresztül irányítható:
külső-belső világítás,konnektorok, garázskapuk, szivattyúk, medence vízforgató, klímák, kamera- és riasztórendszer.

Kiemelt extrák:

Napkollektorral fűtött medence

Fedett, kemencés kerti sütögető igényes kialakítással

2 állásos + 1 állásos garázs, műhely

3 hűtő-fűtő klíma, thermó üveges nyílászárók redőnnyel és szúnyoghálóval

Minőségi belső és külső ajtók, 10 cm homlokzati szigetelés, kőzetgyapot tetőtéri szigetelés

Gépesített, modern konyha

Öntöző rendszer

Kaputelefon, füst- és CO-érzékelő, teljes riasztó- és kamerarendszer

Elhelyezkedés és infrastruktúra:
Dunaharaszti Budapesttől mindössze fél órára található, M0, M1, M3, M4, M5, M7 autópályák gyors elérésével. A település kiváló infrastruktúrával rendelkezik: óvodák, iskolák, bevásárlóközpontok (Lidl, Tesco, Aldi, Rossmann, DM), piac, orvosi és magánorvosi rendelők, éttermek, szépségszalonok, valamint a Duna-part közelsége, ahol számos vízi sport és kikapcsolódási lehetőség adott.

Ez a ház a kényelem, a luxus és a modern technológia tökéletes harmóniája – ideális választás, ha egy igazán különleges otthont keres családja számára.

Referencia szám: H505585-ZE

Hirdetés feltöltve: 2025. 10. 16. Utoljára módosítva: 2025. 11. 08.

5 szobás családi házak ára Dunaharasztin

Ebből az összehasonlításból megtudhatod, hogyan viszonyul a lakás ára a környékbeli családi házak átlagos árához. Ez nem azt jelenti, hogy ennyivel olcsóbb vagy drágább, mint amennyit a lakás ér, hanem hogy ennyivel tér el a környékbeli átlagtól.

Ennek a m² ára
Dunaharaszti m² ár
809 e Ft
685 e Ft -18%
Ennek az ára
Dunaharaszti átlagár
177.9 M Ft m Ft
146.5 m Ft -21%

Az ingatlan elhelyezkedése

Cím: Dunaharaszti

Eladó családi házak a környékről

Eladó családi ház
Eladó családi ház

Dunaharaszti

52 M Ft
3 szoba
99 m2
Eladó családi ház
Eladó családi ház

Budakeszi, Makkosmária

100 M Ft
1 szoba
10 m2
Eladó családi ház
Eladó családi ház

Budaörs, Városközpont utca

119.5 M Ft
5 + 1 szoba
140 m2
Eladó családi ház
Eladó családi ház

Dunaharaszti

129 M Ft
9 szoba
400 m2
Eladó családi ház
Eladó családi ház

Dunaharaszti

52 M Ft
3 szoba
90 m2
Eladó családi ház
Eladó családi ház

Budakeszi, Budakeszi kertváros

229 M Ft
10 szoba
450 m2
Eladó családi ház
Eladó családi ház

Tápiószele

32.9 M Ft
4 szoba
200 m2
Eladó családi ház
Eladó családi ház

Remeteszőlős

399.9 M Ft
5 + 2 szoba
260 m2
Eladó családi ház
Eladó családi ház

Dunaharaszti

51.9 M Ft
2 szoba
50 m2
Eladó családi ház
Eladó családi ház

Leányfalu

237 M Ft
9 szoba
800 m2
Eladó családi ház
Eladó családi ház

Szigetszentmiklós, Tököli út közeli utca

120 M Ft
7 szoba
525 m2
Eladó családi ház
Eladó családi ház

Tápiószentmárton

7.9 M Ft
2 + 1 szoba
86 m2
Eladó családi ház
Eladó családi ház

Tápiószele

37.9 M Ft
4 szoba
141 m2
Eladó családi ház
Eladó családi ház

Budaörs, Odvshegy utca

268.9 M Ft
5 szoba
235 m2
Eladó családi ház
Eladó családi ház

Pécel, Reményik Sándor utca

296 M Ft
6 szoba
396 m2
Eladó családi ház
Eladó családi ház

Dunaharaszti

159.99 M Ft
5 szoba
214 m2
Eladó családi ház
Eladó családi ház

Dunaharaszti

279 M Ft
7 szoba
450 m2
Eladó családi ház
Eladó családi ház

Dunaharaszti

204.999 M Ft
6 szoba
192 m2
Eladó családi ház
Eladó családi ház

Dunaharaszti

159.999 M Ft
5 szoba
214 m2
Eladó családi ház
Eladó családi ház

Dunaharaszti

150 M Ft
6 szoba
260 m2
Eladó családi ház
Eladó családi ház

Dunavarsány

46.9 M Ft
3 + 2 szoba
130 m2
Eladó családi ház
Eladó családi ház

Érd

164.9 M Ft
5 szoba
192 m2
Eladó családi ház
Eladó családi ház

Budaörs, Bányász utca

385 M Ft
6 szoba
300 m2
Eladó családi ház
Eladó családi ház

Dunaharaszti

239 M Ft
5 szoba
200 m2

Falusi CSOK ingatlanok

Eladó családi ház
Eladó családi ház

Gáborján

5.5 M Ft
2 szoba
68 m2
Eladó családi ház
Eladó családi ház

Szalánta

149.9 M Ft
10 szoba
301 m2
Eladó családi ház
Eladó családi ház

Mályi

89.9 M Ft
4 szoba
100 m2
Eladó családi ház
Eladó családi ház

Kadarkút

22.9 M Ft
3 szoba
80 m2
Eladó családi ház
Eladó családi ház

Nagybaracska

4.599 M Ft
3 szoba
120 m2
Eladó családi ház
Eladó családi ház

Galgagyörk

69.9 M Ft
3 szoba
110 m2
Eladó családi ház
Eladó családi ház

Tápiószőlős

17 M Ft
2 szoba
60 m2
Eladó családi ház
Eladó családi ház

Onga

46.8 M Ft
4 szoba
103 m2