Oasis Residence

Eladó családi ház
Dömsöd, ÚJ ÉPÍTÉSŰ, TÁROLÓ KAPCSOLATOS IKERHÁZAK

+ 7 kép 1/10
58 000 000 Ft58 M Ft 725 000 Ft/m2
4 szoba
80 m2

Részletes adatok

Telekméret: 400 m2
Fűtés: Egyéb
Közmű: Villany, Csatorna
Energetikai besorolás: Nem adta meg a hirdető

Az OTP Bank lakáshitel ajánlataFizetett hirdetés

+36 70 779
Zsuzsanna Hegedűs
Dream Credit Kft

Érdekel az OTP Bank kedvezményes lakáshitel ajánlata? *

* A kérdésre „Igen” válasz bejelölése esetén, az „Üzenet küldése” gombra kattintva kijelentem, hogy az OTP Bank Nyrt. Adatkezelési tájékoztatójának tartalmát megismertem és tudomásul vettem.

Eladó családi ház leírása

3%-OS OTTHON START HITEL, CSOK+, ILLETÉKMENTESSÉG, ZÖLD-HITEL, ENERGIATAKARÉKOS HÁZAK!!!
VASÚTI KÖZLEKEDÉS BUDAPESTRE A KELETI PÁLYAUDVARRA!!!

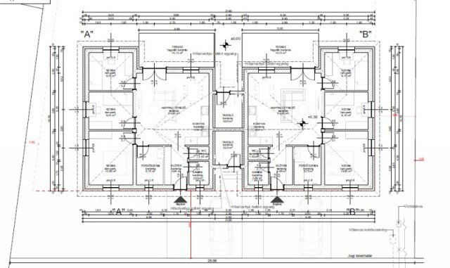
4DB TELEK, 2 FÉLE ALAPRAJZBÓL VÁLSZTHAT!

Megvételre kínálok Dömsödön nyugodt környezetben, 800nm-es telkekre épülő, ÚJ, egyszintes, NAPELEMMEL KOMBINÁLHATÓ, HŐSZIVATTYÚS, padlófűtéses, TÁROLÓ KAPCSOLATOS ikerházakat!!

Saját elkerített telek, külön albetét házanként!!

1.alaprajz
A LAKÁS Nettó 75 nm+ Tároló 5nm Terasz: 14 nm Kert: 400nm
-Előtér 4,84nm
-Amerikaikonyhás-Nappali 28,89nm
-szoba 13nmnm
-szoba 9,1nm-szoba 9,1nm
-fürdő 5,7nm
-wc 1.53nm
-kamra 2,59nm

B LAKÁS Nettó 75 nm+ Tároló 5nm Terasz: 14 nm Kert: 400nm
-Előtér 4,84nm
-Amerikaikonyhás-Nappali 28,89nm
-szoba 13nmnm
-szoba 9,1nm-szoba 9,1nm
-fürdő 5,7nm
-wc 1.53nm
-kamra 2,59nm

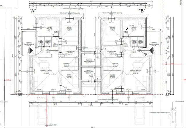
2.alaprajz
A LAKÁS Nettó 73 nm+ Tároló 5nm Terasz: 8,25 nm Kert: 400nm
-Előtér 3,52nm
-Amerikaikonyhás-Nappali 28,83nm
-szoba 11,05nmnm
-szoba 9,25nm-szoba 8,85nm
-fürdő 4,98nm
-wc 1.35nm
-kamra 1,35nm-közlekedő 3,94nm

B LAKÁS Nettó 75 nm+ Tároló 5nm Terasz: 8,25nm Kert: 400nm
-Előtér 3,52nm
-Amerikaikonyhás-Nappali 28,83nm
-szoba 11,05nmnm
-szoba 9,25nm-szoba 8,85nm
-fürdő 4,98nm
-wc 1.35nm
-kamra 1,35nm-közlekedő 3,94nm

Pár műszaki adat 2026-év szabványnak megfelelően:
-Leier 30-as téglából épül, tégla válaszfalakkal,
-külső szigetelése Dryvit rendszerű szigetelés
-fa tetőszerkezet,
-fa födém,
-függesztett gipszkarton mennyezet,
-Bramac cserépfedés
-3rétegű, műanyag hőszigetelt nyílászárók
-A belső burkolatokat a vevő választja.

Bölcsöde, óvoda, iskola, Kultúr és Egészség-Ház, bevásárlási lehetőségek!!

Cégünk INGYENES, iroda és bank-független Hitel ügyintézéssel is rendelkezésére áll, nem csak nálunk vásárolt ingatlanokra!!
Kérdés és-vagy időpont egyeztetés miatt hívjon bátran akár hétvégén is.
Amennyiben nem tudom felvenni visszahívom.

Hirdetés feltöltve: 2026. 02. 05. Utoljára módosítva: 2026. 02. 05.

4 szobás családi házak ára Dömsödön

Ebből az összehasonlításból megtudhatod, hogyan viszonyul a lakás ára a környékbeli családi házak átlagos árához. Ez nem azt jelenti, hogy ennyivel olcsóbb vagy drágább, mint amennyit a lakás ér, hanem hogy ennyivel tér el a környékbeli átlagtól.

Ennek a m² ára
Dömsöd m² ár
725 e Ft
703 e Ft -3%
Ennek az ára
Dömsöd átlagár
58 M Ft m Ft
73.5 m Ft 21%

Az ingatlan elhelyezkedése

Cím: Dömsöd, ÚJ ÉPÍTÉSŰ, TÁROLÓ KAPCSOLATOS IKERHÁZAK

Eladó családi házak a környékről

Eladó családi ház
Eladó családi ház

Kerepes

81.99 M Ft
5 szoba
102 m2
Eladó családi ház
Eladó családi ház

Dömsöd

57.5 M Ft
3 szoba
96 m2
Eladó családi ház
Eladó családi ház

Dömsöd

25.9 M Ft
3 szoba
82 m2
Eladó családi ház
Eladó családi ház

Dömsöd, Öreg Szőlőhegyi út

17 M Ft
3 szoba
49 m2
Eladó családi ház
Eladó családi ház

Budakeszi, Makkosmária

100 M Ft
1 szoba
10 m2
Eladó családi ház
Eladó családi ház

Leányfalu

237 M Ft
9 szoba
800 m2
Eladó családi ház
Eladó családi ház

Tápiószele

32.9 M Ft
4 szoba
200 m2
Eladó családi ház
Eladó családi ház

Dömsöd

92.63 M Ft
4 szoba
126 m2
Eladó családi ház
Eladó családi ház

Tápiószentmárton

48 M Ft
5 szoba
180 m2
Eladó családi ház
Eladó családi ház

Zebegény

69.9 M Ft
6 szoba
245 m2
Eladó családi ház
Eladó családi ház

Tápiógyörgye

19.9 M Ft
3 szoba
65 m2
Eladó családi ház
Eladó családi ház

Tápiószele

18.9 M Ft
4 szoba
68 m2
Eladó családi ház
Eladó családi ház

Budakeszi, Budakeszi kertváros

229 M Ft
10 szoba
450 m2
Eladó családi ház
Eladó családi ház

Kerepes

199 M Ft
6 szoba
360 m2
Eladó családi ház
Eladó családi ház

Tápiószentmárton

16.5 M Ft
3 szoba
50 m2
Eladó családi ház
Eladó családi ház

Pécel, Reményik Sándor utca

296 M Ft
6 szoba
396 m2
Eladó családi ház
Eladó családi ház

Dömsöd

45 M Ft
3 szoba
75 m2
Eladó családi ház
Eladó családi ház

Budakeszi

130 M Ft
5 szoba
30 m2
Eladó családi ház
Eladó családi ház

Érd

164.9 M Ft
5 szoba
192 m2
Eladó családi ház
Eladó családi ház

Dömsöd

30 M Ft
3 szoba
52 m2
Eladó családi ház
Eladó családi ház

Dömsöd

45 M Ft
6 szoba
130 m2
Eladó családi ház
Eladó családi ház

Dömsöd

16 M Ft
2 szoba
97 m2
Eladó családi ház
Eladó családi ház

Dömsöd

69.14 M Ft
4 szoba
91 m2
Eladó családi ház
Eladó családi ház

Dömsöd

79.9 M Ft
3 szoba
150 m2

Falusi CSOK ingatlanok

Eladó családi ház
Eladó családi ház

Pécsvárad

69.9 M Ft
3 szoba
120 m2
Eladó családi ház
Eladó családi ház

Újlengyel

110 M Ft
4 szoba
121 m2
Eladó családi ház
Eladó családi ház

Ádánd

69.9 M Ft
6 szoba
251 m2
Eladó családi ház
Eladó családi ház

Háromfa, Kossuth

22.4 M Ft
139 m2
Eladó panellakás
Eladó panellakás

Pétfürdő

49.9 M Ft
3 szoba
71 m2
Eladó családi ház
Eladó családi ház

Bár

89.5 M Ft
4 + 1 szoba
172 m2
Eladó családi ház
Eladó családi ház

Gégény, Kossuth

15 M Ft
4 szoba
135 m2
Eladó családi ház
Eladó családi ház

Lippó

10 M Ft
2 + 3 szoba
95 m2