City Pearl

Eladó családi ház
Diósd

+ 3 kép 1/6
210 000 000 Ft210 M Ft 1 590 909 Ft/m2
4 szoba
132 m2
építés éve:2026

Részletes adatok

Telekméret: 611 m2
Fűtés: Egyéb
Közmű: Gáz, Villany, Csatorna
Energetikai besorolás: Nem adta meg a hirdető

Az OTP Bank lakáshitel ajánlataFizetett hirdetés

+36 70 465
Bögös Zsolt
referens

Érdekel az OTP Bank kedvezményes lakáshitel ajánlata? *

* A kérdésre „Igen” válasz bejelölése esetén, az „Üzenet küldése” gombra kattintva kijelentem, hogy az OTP Bank Nyrt. Adatkezelési tájékoztatójának tartalmát megismertem és tudomásul vettem.

Eladó családi ház leírása

Egy igazán különleges lehetőséget kínálunk Önnek, amely nemcsak a modern életstílushoz igazodik, hanem a befektetési lehetőségek szempontjából is kiemelkedő.

Diósdon, újépítésű családi ház, mely az Ön izlése szerint még alakítható. Ahol a városi élet nyüzsgése és a természet közelsége harmonikusan találkozik.

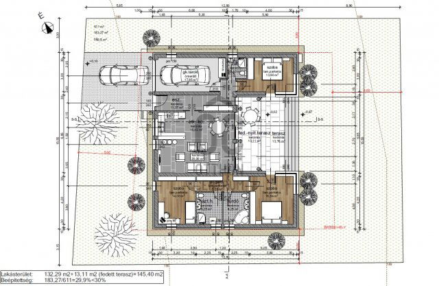
Ingatlan alapterülete 132,29 m2
-Nappali 20,00 m2
-Szoba13,90 m2
-Szoba 14,00 m2
-Szoba 16,84 m2
-Előszoba 11,37 m2
-Étkező - konyha 16,42 m2
-Fürdőszoba 6,25 m2
-Zuhanyzó 3,10 m2
-Gerdrób 6,31 m2
-Tároló 6,25 m2
-GK tároló 17,85 m2
-Terasz 13,11 m2

A ház hőszivattyús H tarifás fűtése modern és energiatakarékos megoldás, amely nemcsak a fenntartási költségeket csökkenti, hanem a környezet védelmét is szolgálja. Az ingatlan minden szobája és a nappalija klimatizált.

Elektromos auto töltő, elektromos redőnyök-, szúnyoghálóval ellátva a magasabb kényelmet biztosítja új tulajdonosa számára. Garázskapu szintén elektromos, e mellett kamera rendszer és riaszt biztosítja a tulajdonosok védelmét.

Budapest autóval 15 perc, közelben iskola, óvoda , bevásárlási lehetőségek, orvosi rendelő, busz meg álló 5 perc seta.

Autópályák gyorsan elérhetőek M6,M0,M7.

Amennyiben felkeltette érdeklődését ez a kivételes ingatlan, ne habozzon kapcsolatba lépni velünk a hét bármely napján! Kérdéseivel és igényeivel bátran kereshet minket, hiszen célunk, hogy a lehető legjobb megoldást nyújtsuk Önnek az ingatlanpiacon. Az Ön új otthona már csak egy lépésnyire

Hirdetés feltöltve: 2025. 10. 02. Utoljára módosítva: 2025. 11. 03.

4 szobás családi házak ára Diósdon

Ebből az összehasonlításból megtudhatod, hogyan viszonyul a lakás ára a környékbeli családi házak átlagos árához. Ez nem azt jelenti, hogy ennyivel olcsóbb vagy drágább, mint amennyit a lakás ér, hanem hogy ennyivel tér el a környékbeli átlagtól.

Ennek a m² ára
Diósd m² ár
1591 e Ft
1095 e Ft -45%
Ennek az ára
Diósd átlagár
210 M Ft m Ft
184.2 m Ft -14%

Az ingatlan elhelyezkedése

Cím: Diósd

Eladó családi házak a környékről

Eladó családi ház
Eladó családi ház

Diósd

429 M Ft
5 szoba
307 m2
Eladó családi ház
Eladó családi ház

Budaörs, Odvshegy utca

268.9 M Ft
5 szoba
235 m2
Eladó családi ház
Eladó családi ház

Diósd

112 M Ft
6 szoba
180 m2
Eladó családi ház
Eladó családi ház

Diósd

690 M Ft
6 szoba
393 m2
Eladó családi ház
Eladó családi ház

Remeteszőlős

399.9 M Ft
5 + 2 szoba
260 m2
Eladó családi ház
Eladó családi ház

Tahitótfalu

188 M Ft
7 szoba
280 m2
Eladó családi ház
Eladó családi ház

Diósd, Diófasor utca

120 M Ft
4 szoba
90 m2
Eladó családi ház
Eladó családi ház

Diósd, Homokos utca

104.9 M Ft
3 szoba
150 m2
Eladó családi ház
Eladó családi ház

Budaörs, Városközpont utca

119.5 M Ft
5 + 1 szoba
140 m2
Eladó családi ház
Eladó családi ház

Gyál, Gyál út

169.9 M Ft
2 szoba
90 m2
Eladó családi ház
Eladó családi ház

Tápiószele

37.9 M Ft
4 szoba
141 m2
Eladó családi ház
Eladó családi ház

Budakeszi, Budakeszi kertváros

140 M Ft
2 szoba
55 m2
Eladó családi ház
Eladó családi ház

Tápiógyörgye

19.9 M Ft
3 szoba
65 m2
Eladó családi ház
Eladó családi ház

Diósd

54.9 M Ft
3 szoba
70 m2
Eladó családi ház
Eladó családi ház

Tápiószentmárton

7.9 M Ft
2 + 1 szoba
86 m2
Eladó családi ház
Eladó családi ház

Diósd

279 M Ft
6 szoba
251 m2
Eladó családi ház
Eladó családi ház

Budaörs, Bányász utca

385 M Ft
6 szoba
300 m2
Eladó családi ház
Eladó családi ház

Szigetszentmiklós, Tököli út közeli utca

120 M Ft
7 szoba
525 m2
Eladó családi ház
Eladó családi ház

Dunavarsány

46.9 M Ft
3 + 2 szoba
130 m2
Eladó családi ház
Eladó családi ház

Érd

164.9 M Ft
5 szoba
192 m2
Eladó családi ház
Eladó családi ház

Diósd

239.9 M Ft
5 szoba
201 m2
Eladó családi ház
Eladó családi ház

Kerepes

199 M Ft
6 szoba
360 m2
Eladó családi ház
Eladó családi ház

Diósd

239.9 M Ft
5 szoba
210 m2
Eladó családi ház
Eladó családi ház

Budakeszi

130 M Ft
5 szoba
30 m2

Falusi CSOK ingatlanok

Eladó családi ház
Eladó családi ház

Szigliget

125 M Ft
2 + 2 szoba
137 m2
Eladó családi ház
Eladó családi ház

Szeremle

18 M Ft
2 szoba
87 m2
Eladó családi ház
Eladó családi ház

Akasztó

13.9 M Ft
3 szoba
103 m2
Eladó családi ház
Eladó családi ház

Mezőfalva

39 M Ft
3 szoba
77 m2
Eladó családi ház
Eladó családi ház

Kocsér

31.9 M Ft
2 + 1 szoba
68 m2
Eladó családi ház
Eladó családi ház

Nagyberény

24.9 M Ft
3 szoba
62 m2
Eladó családi ház
Eladó családi ház

Alattyán

8.5 M Ft
1 + 1 szoba
70 m2
Eladó családi ház
Eladó családi ház

Pusztamonostor

22 M Ft
3 szoba
86 m2